|
|
|
| Larry Stein Oklahoma County Assessor (405) 713-1200 - Public Access System |
|
|
|
|
|
|
| Real Property Display - Screen Produced 4/9/2026 9:49:17 AM | ||||
|---|---|---|---|---|
| Account: R183243180 | Type: Residential | Location: |
1518 TAURUS DR |
|
| Building Name/Occupant: |
|
EDMOND |
||
| Owner Name 1: | QUIAH DOMINIC T & ANGELINA P |
Parcel PIN#: |
4734-18-324-3180 |
|
| Owner Name 2: | 1/4 section #: |
4734 |
||
| Owner Name 3: | Parent Acct: |
|
||
| Billing Address: | 3108 GARDEN VIS | Tax District: |
|
|
| City, State, Zip | EDMOND, OK 73034-8355 | School System: |
Edmond #12 |
|
|
Country: (If noted) |
Land Size: |
0.2335 Acres |
||
|
Land Value: 34,000 |
|
|||
|
Sect 34-T14N-R3W Qtr SE |
VAL GENES KELLY PARK 5
Block
009
Lot
008
|
|||
| Full Legal Description: VAL GENES KELLY PARK 5 009 008 |
| Photo & Sketch (if available) | Comp Sales (ordered by relevancy) |
|
||||||||||||||||||
|
||||||||||||||||||||
| Value History (*The County Treasurer 405-713-1300 posts & collects actual tax amounts. Contact information HERE) | |||||||||||||
|---|---|---|---|---|---|---|---|---|---|---|---|---|---|
| Year | Market Value | Taxable Mkt Value | Gross Assessed | Exemption | Net Assessed | Millage | Est. Tax | Tax Savings | |||||
|
2026 |
250,500 |
214,415 |
23,585 |
0 |
23,585 |
105.16 |
$2,480 |
$417 |
|||||
|
2025 |
246,000 |
204,205 |
22,461 |
0 |
22,461 |
105.16 |
$2,362 |
$483 |
|||||
|
2024 |
237,000 |
194,481 |
21,392 |
0 |
21,392 |
105.03 |
$2,247 |
$491 |
|||||
|
2023 |
225,000 |
185,220 |
20,374 |
0 |
20,374 |
104.24 |
$2,124 |
$456 |
|||||
|
2022 |
196,000 |
176,400 |
19,404 |
0 |
19,404 |
104.64 |
$2,030 |
$226 |
|||||
| Property Account Status/Adjustments/Exemptions | ||
|---|---|---|
| Account # | Exemption Description | Amount |
|
R183243180 |
5% Capped Account |
0 |
| Property Deed Transaction History (Recorded in the County Clerk's Office) | |||||||
|---|---|---|---|---|---|---|---|
| Date | Type | Book | Page | Price | Grantor | Grantee | |
|
8/26/1997 |
|
Historical |
$83,000 |
MORSMAN DORMAN J IV & GAYLA A |
QUIAH DOMINIC T & ANGELINA P |
||
|
12/1/1980 |
|
Historical |
$0 |
|
MORSMAN DORMAN J IV & GAYLA A |
||
| Last Mailed Notice of Value (N.O.V.) Information/History | ||||||||
|---|---|---|---|---|---|---|---|---|
| Year | Date | Market Value | Taxable Market Value | Gross Assessed | Exemption | Net Assessed | ||
|
2026 |
02/06/2026 |
250,500 |
214,415 |
23,585 |
0 |
23,585 |
||
|
2025 |
01/31/2025 |
246,000 |
204,205 |
22,461 |
0 |
22,461 |
||
|
2024 |
01/22/2024 |
237,000 |
194,481 |
21,392 |
0 |
21,392 |
||
|
2023 |
01/23/2023 |
225,000 |
185,220 |
20,374 |
0 |
20,374 |
||
|
2022 |
02/22/2022 |
196,000 |
176,400 |
19,404 |
0 |
19,404 |
||
| Property Building Permit History | |||||||||||
|---|---|---|---|---|---|---|---|---|---|---|---|
| Issued | Permit # | Provided by | Bldg # | Description | Est Construction Cost | Status | |||||
| No Building Permit records returned. | |||||||||||
| Click button on building number to access detailed information: | ||||||
|---|---|---|---|---|---|---|
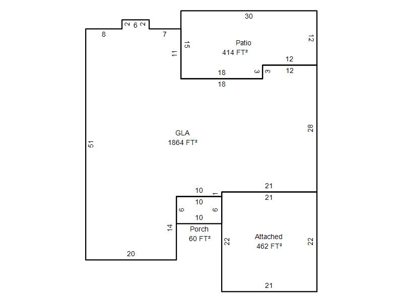
| Bldg # | Vacant/Improved Land | Bldg Description | Year Built | SqFt | # Stories | |
|
1 |
Improved |
Ranch 1 Story |
1980 |
1,864 |
1 Stories |
|