|
|
|
| Larry Stein Oklahoma County Assessor (405) 713-1200 - Public Access System |
|
|
|
|
|
|
| Real Property Display - Screen Produced 4/2/2026 1:50:12 AM | ||||
|---|---|---|---|---|
| Account: R257032110 | Type: Residential | Location: |
10360 W WATERLOO RD |
|
| Building Name/Occupant: |
|
UNINCORPORATED |
||
| Owner Name 1: | DENNIS KENNETH & TIFFANY LIV TRUST |
Parcel PIN#: |
4812-25-703-2110 |
|
| Owner Name 2: | 1/4 section #: |
4812 |
||
| Owner Name 3: | Parent Acct: |
4812-25-703-2000 |
||
| Billing Address: | 10360 W WATERLOO RD | Tax District: |
|
|
| City, State, Zip | EDMOND, OK 73025-9143 | School System: |
Deer Creek #6 |
|
|
Country: (If noted) |
Land Size: |
2.4100 Acres |
||
|
Land Value: 100,256 |
|
|||
|
Sect 3-T14N-R4W Qtr NW |
DEER CREEK TOWNSHIP
Block
000
Lot
000
|
|||
| Full Legal Description: DEER CREEK TOWNSHIP PT NW4 SEC 3 14N 4W BEG 1287.44FT E OF NW/C NW4 TH E151.18FT S698.10FT W150.04FT N698.40FT TO BEG CONT 2.41ACRS MORE OR LESS |
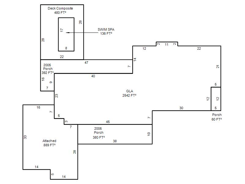
| Photo & Sketch (if available) | Comp Sales (ordered by relevancy) |
|
||||||||||||||||||
|
||||||||||||||||||||
| Value History (*The County Treasurer 405-713-1300 posts & collects actual tax amounts. Contact information HERE) | |||||||||||||
|---|---|---|---|---|---|---|---|---|---|---|---|---|---|
| Year | Market Value | Taxable Mkt Value | Gross Assessed | Exemption | Net Assessed | Millage | Est. Tax | Tax Savings | |||||
|
2026 |
524,000 |
401,614 |
44,176 |
1,000 |
43,176 |
114.35 |
$4,937 |
$1,654 |
|||||
|
2025 |
521,000 |
389,917 |
42,890 |
1,000 |
41,890 |
114.35 |
$4,790 |
$1,763 |
|||||
|
2024 |
496,500 |
376,619 |
41,427 |
1,000 |
40,427 |
116.19 |
$4,697 |
$1,648 |
|||||
|
2023 |
462,500 |
365,650 |
40,221 |
1,000 |
39,221 |
116.77 |
$4,580 |
$1,361 |
|||||
|
2022 |
355,000 |
355,000 |
39,050 |
1,000 |
38,050 |
114.81 |
$4,369 |
$115 |
|||||
| Property Account Status/Adjustments/Exemptions | ||
|---|---|---|
| Account # | Exemption Description | Amount |
|
R257032110 |
Homestead |
1,000 |
|
R257032110 |
3% Cap Homestead |
0 |
| Property Deed Transaction History (Recorded in the County Clerk's Office) | |||||||
|---|---|---|---|---|---|---|---|
| Date | Type | Book | Page | Price | Grantor | Grantee | |
|
11/11/2025 |
|
Deeds |
$0 |
DENNIS KENNETH B & TIFFANY A |
DENNIS KENNETH & TIFFANY LIV TRUST |
||
|
2/28/2005 |
|
Deeds |
$37,500 |
NIZAMI SALEEM & SAMEENA |
DENNIS KENNETH B & TIFFANY A |
||
|
2/15/2005 |
|
Deeds |
$0 |
NIZAMI SALEEM & SAMEENA |
NIZAMI SALEEM & SAMEENA |
||
| Last Mailed Notice of Value (N.O.V.) Information/History | ||||||||
|---|---|---|---|---|---|---|---|---|
| Year | Date | Market Value | Taxable Market Value | Gross Assessed | Exemption | Net Assessed | ||
|
2026 |
02/06/2026 |
524,000 |
401,614 |
44,176 |
1,000 |
43,176 |
||
|
2025 |
03/28/2025 |
521,000 |
389,917 |
42,890 |
1,000 |
41,890 |
||
|
2024 |
01/22/2024 |
496,500 |
376,619 |
41,427 |
1,000 |
40,427 |
||
|
2023 |
01/23/2023 |
462,500 |
365,650 |
40,221 |
1,000 |
39,221 |
||
|
2020 |
02/21/2020 |
384,000 |
375,952 |
41,354 |
0 |
41,354 |
||
| Property Building Permit History | ||||||
|---|---|---|---|---|---|---|
| Issued | Permit # | Provided by | Bldg # | Description | Est Construction Cost | Status |
|
8/14/2024 |
BP-2024-194 |
|
1 |
Swimming Pool |
50,000 |
Inactive |
|
3/22/2005 |
10306741 |
COUNTY |
1 |
Main Dwellin |
156,000 |
Inactive |
| Click button on building number to access detailed information: | ||||||
|---|---|---|---|---|---|---|
| Bldg # | Vacant/Improved Land | Bldg Description | Year Built | SqFt | # Stories | |
|
1 |
Improved |
Ranch 1 Story |
2005 |
2,542 |
1 Stories |
|