|
|
|
| Larry Stein Oklahoma County Assessor (405) 713-1200 - Public Access System |
|
|
|
|
|
|
| Real Property Display - Screen Produced 4/1/2026 1:45:39 PM | ||||
|---|---|---|---|---|
| Account: R257191060 | Type: Residential | Location: |
20001 N COUNCIL RD |
|
| Building Name/Occupant: |
|
UNINCORPORATED |
||
| Owner Name 1: | HENSON WILLIAM C |
Parcel PIN#: |
4873-25-719-1060 |
|
| Owner Name 2: | 1/4 section #: |
4873 |
||
| Owner Name 3: | Parent Acct: |
|
||
| Billing Address: | 20001 N COUNCIL RD | Tax District: |
|
|
| City, State, Zip | EDMOND, OK 73012-9566 | School System: |
Deer Creek #6 |
|
|
Country: (If noted) |
Land Size: |
2.2700 Acres |
||
|
Land Value: 80,839 |
|
|||
|
Sect 19-T14N-R4W Qtr NE |
DEER CREEK TOWNSHIP
Block
000
Lot
000
|
|||
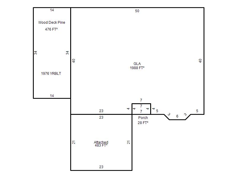
| Full Legal Description: DEER CREEK TOWNSHIP 000 000 UN PT NE4 SEC 19 14N 4W BEG SE/C OF SE4 OF SE4 N200FT W495.41FT S200FT E495.41FT CONT 2.27ACRS MORE OR LESS |
| Photo & Sketch (if available) | Comp Sales (ordered by relevancy) |
|
||||||||||||||||||
|
||||||||||||||||||||
| Value History (*The County Treasurer 405-713-1300 posts & collects actual tax amounts. Contact information HERE) | |||||||||||||
|---|---|---|---|---|---|---|---|---|---|---|---|---|---|
| Year | Market Value | Taxable Mkt Value | Gross Assessed | Exemption | Net Assessed | Millage | Est. Tax | Tax Savings | |||||
|
2026 |
319,500 |
123,867 |
13,625 |
13,625 |
0 |
114.35 |
$0 |
$4,019 |
|||||
|
2025 |
309,500 |
123,867 |
13,625 |
13,625 |
0 |
114.35 |
$0 |
$3,893 |
|||||
|
2024 |
298,500 |
123,867 |
13,625 |
1,000 |
12,625 |
116.19 |
$1,467 |
$2,348 |
|||||
|
2023 |
286,000 |
123,867 |
13,625 |
1,000 |
12,625 |
116.77 |
$1,474 |
$2,199 |
|||||
|
2022 |
252,000 |
123,867 |
13,625 |
1,000 |
12,625 |
114.81 |
$1,450 |
$1,733 |
|||||
| Property Account Status/Adjustments/Exemptions | ||
|---|---|---|
| Account # | Exemption Description | Amount |
|
R257191060 |
100% DAV Exemption |
100 |
|
R257191060 |
DAV Freeze Senior Valuation |
0 |
|
R257191060 |
3% Cap Homestead |
0 |
|
R257191060 |
DAV Homestead |
0 |
| Property Deed Transaction History (Recorded in the County Clerk's Office) | |||||||
|---|---|---|---|---|---|---|---|
| Date | Type | Book | Page | Price | Grantor | Grantee | |
|
3/2/1987 |
|
Historical |
$58,000 |
FEDERAL NATIONAL |
HENSON WILLIAM C |
||
|
8/1/1986 |
|
Historical |
$0 |
COLSON MICHAEL D & PATRICIA A |
FEDERAL NATIONAL |
||
|
1/1/1984 |
|
Historical |
$0 |
|
COLSON MICHAEL D & PATRICIA A |
||
| Last Mailed Notice of Value (N.O.V.) Information/History | ||||||||
|---|---|---|---|---|---|---|---|---|
| Year | Date | Market Value | Taxable Market Value | Gross Assessed | Exemption | Net Assessed | ||
|
2026 |
02/06/2026 |
319,500 |
123,867 |
13,625 |
13,625 |
0 |
||
|
2025 |
01/31/2025 |
309,500 |
123,867 |
13,625 |
1,000 |
12,625 |
||
|
2024 |
01/22/2024 |
298,500 |
123,867 |
13,625 |
1,000 |
12,625 |
||
|
2023 |
01/23/2023 |
286,000 |
123,867 |
13,625 |
1,000 |
12,625 |
||
|
2022 |
02/22/2022 |
252,000 |
123,867 |
13,625 |
1,000 |
12,625 |
||
| Property Building Permit History | |||||||||||
|---|---|---|---|---|---|---|---|---|---|---|---|
| Issued | Permit # | Provided by | Bldg # | Description | Est Construction Cost | Status | |||||
| No Building Permit records returned. | |||||||||||
| Click button on building number to access detailed information: | ||||||
|---|---|---|---|---|---|---|
| Bldg # | Vacant/Improved Land | Bldg Description | Year Built | SqFt | # Stories | |
|
1 |
Improved |
Ranch 1 Story |
1976 |
1,988 |
1 Stories |
|