|
|
|
| Larry Stein Oklahoma County Assessor (405) 713-1200 - Public Access System |
|
|
|
|
|
|
| Real Property Display - Screen Produced 4/1/2026 1:48:25 PM | ||||
|---|---|---|---|---|
| Account: R257191090 | Type: Residential | Location: |
8390 NW 206TH ST |
|
| Building Name/Occupant: |
|
UNINCORPORATED |
||
| Owner Name 1: | FRY ALLEN & KIM |
Parcel PIN#: |
4873-25-719-1090 |
|
| Owner Name 2: | 1/4 section #: |
4873 |
||
| Owner Name 3: | Parent Acct: |
|
||
| Billing Address: | 8390 NW 206TH ST | Tax District: |
|
|
| City, State, Zip | EDMOND, OK 73012 | School System: |
Deer Creek #6 |
|
|
Country: (If noted) |
Land Size: |
4.9000 Acres |
||
|
Land Value: 138,474 |
|
|||
|
Sect 19-T14N-R4W Qtr NE |
DEER CREEK TOWNSHIP
Block
000
Lot
000
|
|||
| Full Legal Description: DEER CREEK TOWNSHIP PT NE4 SEC 19 14N 4W BEG 830FT E NW/C NE4 TH S564.7FT E384.27FT N555.605FT W384.27FT TO BEG |
| Photo & Sketch (if available) | Comp Sales (ordered by relevancy) |
|
||||||||||||||||||
|
||||||||||||||||||||
| Value History (*The County Treasurer 405-713-1300 posts & collects actual tax amounts. Contact information HERE) | |||||||||||||
|---|---|---|---|---|---|---|---|---|---|---|---|---|---|
| Year | Market Value | Taxable Mkt Value | Gross Assessed | Exemption | Net Assessed | Millage | Est. Tax | Tax Savings | |||||
|
2026 |
425,000 |
425,000 |
46,750 |
1,000 |
45,750 |
114.35 |
$5,232 |
$114 |
|||||
|
2025 |
423,000 |
419,210 |
46,113 |
1,000 |
45,113 |
114.35 |
$5,159 |
$162 |
|||||
|
2024 |
407,000 |
407,000 |
44,770 |
1,000 |
43,770 |
116.19 |
$5,086 |
$116 |
|||||
|
2023 |
406,000 |
406,000 |
44,660 |
0 |
44,660 |
116.77 |
$5,215 |
$0 |
|||||
|
2022 |
345,500 |
312,605 |
34,386 |
1,000 |
33,386 |
114.81 |
$3,833 |
$530 |
|||||
| Property Account Status/Adjustments/Exemptions | ||
|---|---|---|
| Account # | Exemption Description | Amount |
|
R257191090 |
3% Cap Homestead |
0 |
|
R257191090 |
Homestead |
1,000 |
| Property Deed Transaction History (Recorded in the County Clerk's Office) | ||||||||||
|---|---|---|---|---|---|---|---|---|---|---|
| Date | Type | Book | Page | Price | Grantor | Grantee | ||||
|
6/24/2022 |
|
Deeds |
$405,000 |
ZHANG MIN & GUOZHEN |
FRY ALLEN & KIM |
|||||
|
1/3/2019 |
|
Deeds |
$306,000 |
FOLEY TERRY L & LISA G |
ZHANG MIN & GUOZHEN |
|||||
|
9/9/2008 |
|
Deeds |
$0 |
FOLEY TERRY L & LISA G |
FOLEY TERRY L |
|||||
|
9/9/2008 |
|
Deeds |
$0 |
FOLEY TERRY L |
FOLEY TERRY L & LISA G |
|||||
|
1/30/2004 |
|
Deeds |
$155,000 |
RAK PROPERTIES INC |
FOLEY TERRY L & LISA G |
|||||
| Last Mailed Notice of Value (N.O.V.) Information/History | ||||||||
|---|---|---|---|---|---|---|---|---|
| Year | Date | Market Value | Taxable Market Value | Gross Assessed | Exemption | Net Assessed | ||
|
2026 |
02/06/2026 |
425,000 |
425,000 |
46,750 |
1,000 |
45,750 |
||
|
2025 |
01/31/2025 |
423,000 |
419,210 |
46,113 |
1,000 |
45,113 |
||
|
2024 |
01/22/2024 |
407,000 |
407,000 |
44,770 |
0 |
44,770 |
||
|
2023 |
01/23/2023 |
406,000 |
406,000 |
44,660 |
0 |
44,660 |
||
|
2022 |
02/22/2022 |
345,500 |
312,605 |
34,386 |
1,000 |
33,386 |
||
| Property Building Permit History | |||||||||||
|---|---|---|---|---|---|---|---|---|---|---|---|
| Issued | Permit # | Provided by | Bldg # | Description | Est Construction Cost | Status | |||||
| No Building Permit records returned. | |||||||||||
| Click button on building number to access detailed information: | ||||||
|---|---|---|---|---|---|---|
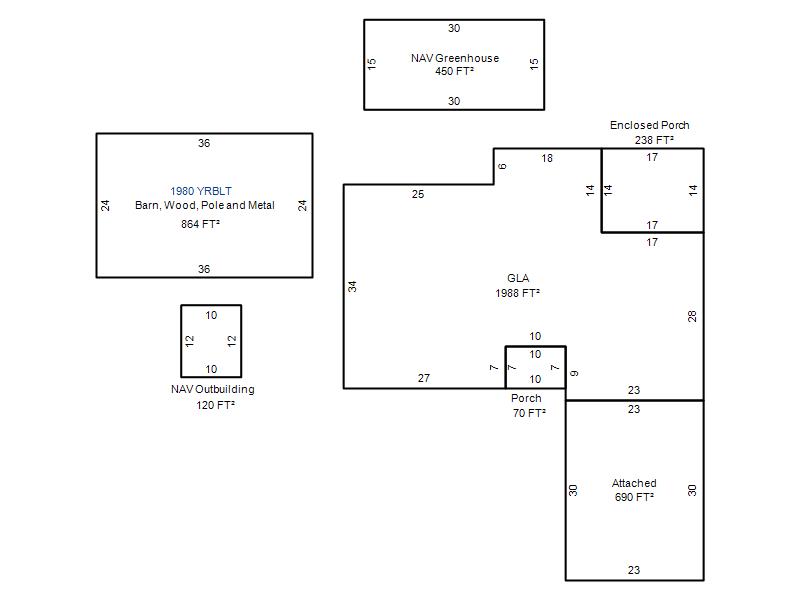
| Bldg # | Vacant/Improved Land | Bldg Description | Year Built | SqFt | # Stories | |
|
1 |
Improved |
Ranch 1 Story |
1980 |
1,988 |
1 Stories |
|