|
|
|
| Larry Stein Oklahoma County Assessor (405) 713-1200 - Public Access System |
|
|
|
|
|
|
| Real Property Display - Screen Produced 4/3/2026 11:20:13 AM | ||||
|---|---|---|---|---|
| Account: R210641130 | Type: Residential | Location: |
15929 CAPRI LN |
|
| Building Name/Occupant: |
|
OKLAHOMA CITY |
||
| Owner Name 1: | CHEN WEI |
Parcel PIN#: |
3813-21-064-1130 |
|
| Owner Name 2: | 1/4 section #: |
3813 |
||
| Owner Name 3: | Parent Acct: |
3813-16-868-0307 |
||
| Billing Address: | 2512 NW 196TH ST | Tax District: |
|
|
| City, State, Zip | EDMOND, OK 73012 | School System: |
Deer Creek #6 |
|
|
Country: (If noted) |
UNITED STATES |
Land Size: |
0.1607 Acres |
|
|
Land Value: 43,759 |
|
|||
|
Sect 4-T13N-R4W Qtr NE |
DEER CREEK PARK SEC 1
Block
002
Lot
002
|
|||
| Full Legal Description: DEER CREEK PARK SEC 1 BLK 002 LOT 002 EX S5FT |
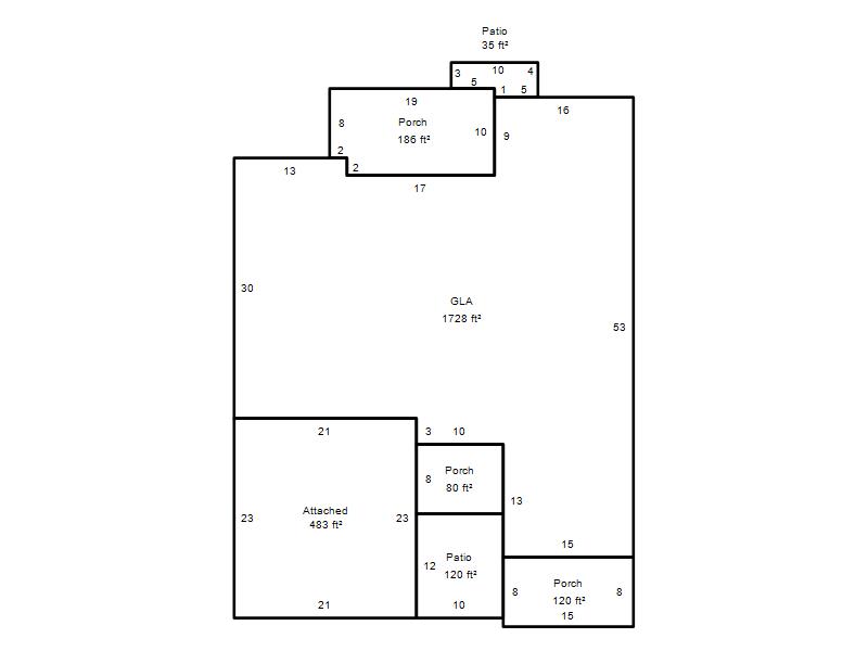
| Photo & Sketch (if available) | Comp Sales (ordered by relevancy) |
|
||||||||||||||||||
|
||||||||||||||||||||
| Value History (*The County Treasurer 405-713-1300 posts & collects actual tax amounts. Contact information HERE) | |||||||||||||
|---|---|---|---|---|---|---|---|---|---|---|---|---|---|
| Year | Market Value | Taxable Mkt Value | Gross Assessed | Exemption | Net Assessed | Millage | Est. Tax | Tax Savings | |||||
|
2026 |
348,500 |
348,500 |
38,335 |
0 |
38,335 |
129.51 |
$4,965 |
$0 |
|||||
|
2025 |
348,000 |
346,185 |
38,080 |
0 |
38,080 |
129.51 |
$4,932 |
$26 |
|||||
|
2024 |
337,500 |
329,700 |
36,267 |
0 |
36,267 |
131.12 |
$4,755 |
$113 |
|||||
|
2023 |
314,000 |
314,000 |
34,540 |
0 |
34,540 |
131.55 |
$4,544 |
$0 |
|||||
|
2022 |
7,088 |
7,088 |
779 |
0 |
779 |
130.27 |
$102 |
$0 |
|||||
| Property Account Status/Adjustments/Exemptions | ||
|---|---|---|
| Account # | Exemption Description | Amount |
|
R210641130 |
5% Capped Account |
0 |
| Property Deed Transaction History (Recorded in the County Clerk's Office) | |||||||
|---|---|---|---|---|---|---|---|
| Date | Type | Book | Page | Price | Grantor | Grantee | |
|
1/31/2022 |
|
Deeds |
$310,000 |
WESTPOINT GROUP LLC |
CHEN WEI |
||
|
1/5/2021 |
|
Hmstd Off & |
$0 |
DEER CREEK PARK LLC |
WESTPOINT GROUP LLC |
||
|
11/12/2020 |
|
Hmstd Off & |
$0 |
DEER CREEK PARK LLC |
DEER CREEK PARK LLC |
||
|
6/21/2011 |
|
Hmstd Off & |
$0 |
DEER CREEK VILLAGE LLC |
DEER CREEK PARK LLC |
||
| Last Mailed Notice of Value (N.O.V.) Information/History | ||||||
|---|---|---|---|---|---|---|
| Year | Date | Market Value | Taxable Market Value | Gross Assessed | Exemption | Net Assessed |
|
2026 |
02/23/2026 |
348,500 |
348,500 |
38,335 |
0 |
38,335 |
|
2025 |
02/14/2025 |
348,000 |
346,185 |
38,080 |
0 |
38,080 |
|
2024 |
02/13/2024 |
337,500 |
329,700 |
36,267 |
0 |
36,267 |
|
2023 |
02/14/2023 |
314,000 |
314,000 |
34,540 |
0 |
34,540 |
|
2012 |
04/06/2012 |
8,378 |
8,378 |
921 |
0 |
921 |
| Property Building Permit History | ||||||
|---|---|---|---|---|---|---|
| Issued | Permit # | Provided by | Bldg # | Description | Est Construction Cost | Status |
|
3/25/2021 |
BLDR-2020-08465 |
|
|
Main Dwellin |
75,000 |
Inactive |
| Click button on building number to access detailed information: | ||||||
|---|---|---|---|---|---|---|
| Bldg # | Vacant/Improved Land | Bldg Description | Year Built | SqFt | # Stories | |
|
1 |
Improved |
Ranch 1 Story |
2021 |
1,728 |
1 Stories |
|