|
|
|
| Larry Stein Oklahoma County Assessor (405) 713-1200 - Public Access System |
|
|
|
|
|
|
| Real Property Display - Screen Produced 4/3/2026 1:59:56 PM | ||||
|---|---|---|---|---|
| Account: R143521700 | Type: Residential | Location: |
4720 S KAREN DR |
|
| Building Name/Occupant: |
|
OKLAHOMA CITY |
||
| Owner Name 1: | BROWN MICHAEL A |
Parcel PIN#: |
1473-14-352-1700 |
|
| Owner Name 2: | GARRETT GOLDIE J | 1/4 section #: |
1473 |
|
| Owner Name 3: | Parent Acct: |
|
||
| Billing Address: | 3717 WOODLARK RD | Tax District: |
|
|
| City, State, Zip | CLOVIS , NM 88101 | School System: |
Mid-Del #52 |
|
|
Country: (If noted) |
UNITED STATES |
Land Size: |
0.1523 Acres |
|
|
Land Value: 14,595 |
|
|||
|
Sect 19-T11N-R2W Qtr NE |
ROBERTS SOUTH HIGHLAND
Block
003
Lot
016
|
|||
| Full Legal Description: ROBERTS SOUTH HIGHLAND 003 016 |
| Photo & Sketch (if available) | Comp Sales (ordered by relevancy) |
|
||||||||||||||||||
|
||||||||||||||||||||
| Value History (*The County Treasurer 405-713-1300 posts & collects actual tax amounts. Contact information HERE) | |||||||||||||
|---|---|---|---|---|---|---|---|---|---|---|---|---|---|
| Year | Market Value | Taxable Mkt Value | Gross Assessed | Exemption | Net Assessed | Millage | Est. Tax | Tax Savings | |||||
|
2026 |
119,500 |
83,084 |
9,139 |
0 |
9,139 |
126.46 |
$1,156 |
$507 |
|||||
|
2025 |
124,500 |
79,128 |
8,703 |
0 |
8,703 |
126.46 |
$1,101 |
$631 |
|||||
|
2024 |
115,000 |
75,360 |
8,288 |
0 |
8,288 |
128.51 |
$1,065 |
$560 |
|||||
|
2023 |
97,000 |
71,772 |
7,894 |
0 |
7,894 |
122.94 |
$971 |
$341 |
|||||
|
2022 |
84,500 |
68,355 |
7,519 |
0 |
7,519 |
122.11 |
$918 |
$217 |
|||||
| Property Account Status/Adjustments/Exemptions | ||
|---|---|---|
| Account # | Exemption Description | Amount |
|
R143521700 |
5% Capped Account |
0 |
| Property Deed Transaction History (Recorded in the County Clerk's Office) | |||||||
|---|---|---|---|---|---|---|---|
| Date | Type | Book | Page | Price | Grantor | Grantee | |
|
4/29/2005 |
|
Deeds |
$67,000 |
WATRAL MARGARET A |
BROWN MICHAEL A |
||
|
12/31/1997 |
|
Historical |
$38,500 |
KIDD DOROTHY SUE |
WATRAL MARGARET A |
||
|
5/6/1996 |
|
Historical |
$0 |
KIDD FRED V & DOROTHY SUE |
KIDD DOROTHY SUE |
||
|
1/1/1986 |
|
Historical |
$0 |
|
KIDD FRED V & DOROTHY SUE |
||
| Last Mailed Notice of Value (N.O.V.) Information/History | ||||||||
|---|---|---|---|---|---|---|---|---|
| Year | Date | Market Value | Taxable Market Value | Gross Assessed | Exemption | Net Assessed | ||
|
2026 |
02/06/2026 |
119,500 |
83,084 |
9,139 |
0 |
9,139 |
||
|
2025 |
01/31/2025 |
124,500 |
79,128 |
8,703 |
0 |
8,703 |
||
|
2024 |
01/22/2024 |
115,000 |
75,360 |
8,288 |
0 |
8,288 |
||
|
2023 |
01/23/2023 |
97,000 |
71,772 |
7,894 |
0 |
7,894 |
||
|
2022 |
02/22/2022 |
84,500 |
68,355 |
7,519 |
0 |
7,519 |
||
| Property Building Permit History | |||||||||||
|---|---|---|---|---|---|---|---|---|---|---|---|
| Issued | Permit # | Provided by | Bldg # | Description | Est Construction Cost | Status | |||||
| No Building Permit records returned. | |||||||||||
| Click button on building number to access detailed information: | ||||||
|---|---|---|---|---|---|---|
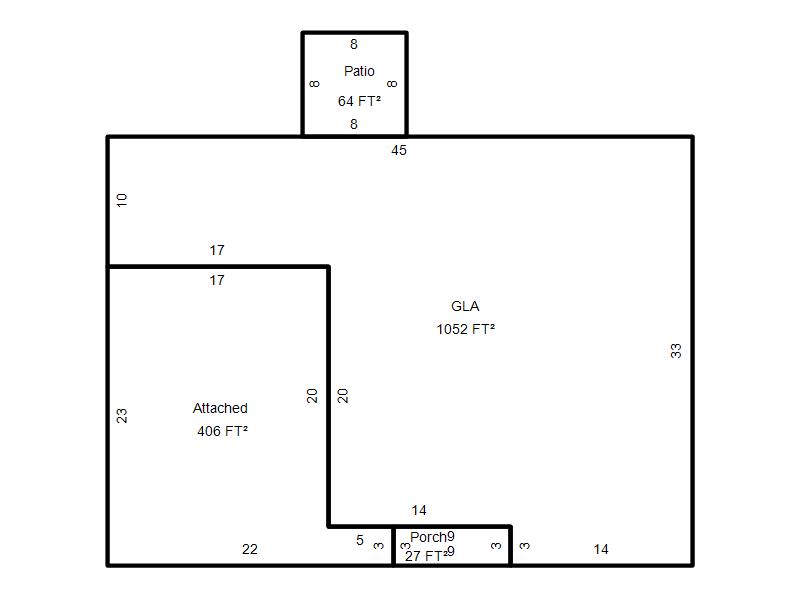
| Bldg # | Vacant/Improved Land | Bldg Description | Year Built | SqFt | # Stories | |
|
1 |
Improved |
Ranch 1 Story |
1967 |
1,052 |
1 Stories |
|