|
|
|
| Larry Stein Oklahoma County Assessor (405) 713-1200 - Public Access System |
|
|
|
|
|
|
| Real Property Display - Screen Produced 4/3/2026 9:40:23 AM | ||||
|---|---|---|---|---|
| Account: R210951220 | Type: Residential | Location: |
18208 HASLEMERE LN |
|
| Building Name/Occupant: |
|
OKLAHOMA CITY |
||
| Owner Name 1: | GAGLIARDI KYLE & JILL |
Parcel PIN#: |
4898-21-095-1220 |
|
| Owner Name 2: | 1/4 section #: |
4898 |
||
| Owner Name 3: | Parent Acct: |
4898-14-368-5000 |
||
| Billing Address: | 18208 HASLEMERE LN | Tax District: |
|
|
| City, State, Zip | EDMOND, OK 73012-5505 | School System: |
Deer Creek #6 |
|
|
Country: (If noted) |
Land Size: |
0.2174 Acres |
||
|
Land Value: 64,876 |
|
|||
|
Sect 25-T14N-R4W Qtr SE |
THE GROVE SOUTH PH 2
Block
007
Lot
003
|
|||
| Full Legal Description: THE GROVE SOUTH PH 2 007 003 |
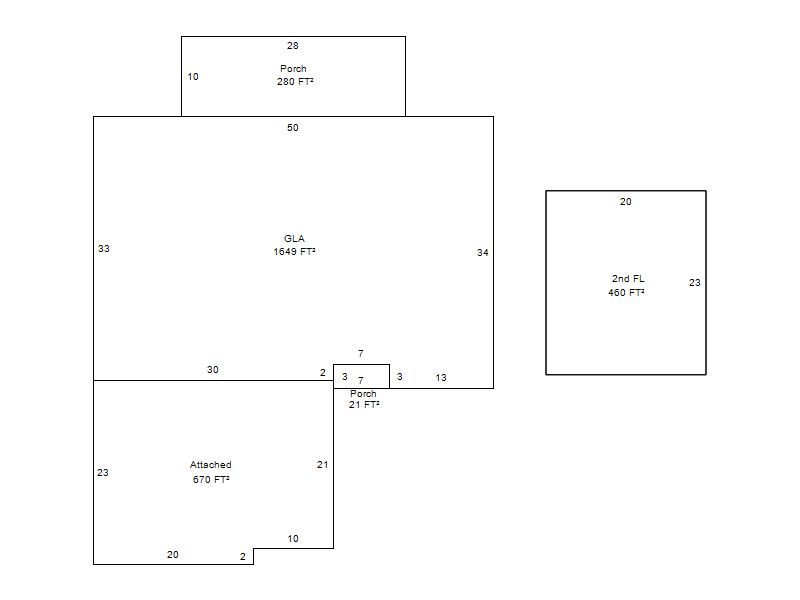
| Photo & Sketch (if available) | Comp Sales (ordered by relevancy) |
|
||||||||||||||||||
|
||||||||||||||||||||
| Value History (*The County Treasurer 405-713-1300 posts & collects actual tax amounts. Contact information HERE) | |||||||||||||
|---|---|---|---|---|---|---|---|---|---|---|---|---|---|
| Year | Market Value | Taxable Mkt Value | Gross Assessed | Exemption | Net Assessed | Millage | Est. Tax | Tax Savings | |||||
|
2026 |
403,000 |
348,004 |
38,279 |
1,000 |
37,279 |
129.51 |
$4,828 |
$913 |
|||||
|
2025 |
412,500 |
337,868 |
37,165 |
1,000 |
36,165 |
129.51 |
$4,684 |
$1,193 |
|||||
|
2024 |
403,000 |
328,028 |
36,082 |
1,000 |
35,082 |
131.12 |
$4,600 |
$1,212 |
|||||
|
2023 |
387,000 |
318,474 |
35,031 |
1,000 |
34,031 |
131.55 |
$4,477 |
$1,123 |
|||||
|
2022 |
342,000 |
309,199 |
34,011 |
1,000 |
33,011 |
130.27 |
$4,300 |
$600 |
|||||
| Property Account Status/Adjustments/Exemptions | ||
|---|---|---|
| Account # | Exemption Description | Amount |
|
R210951220 |
Homestead |
1,000 |
|
R210951220 |
3% Cap Homestead |
0 |
| Property Deed Transaction History (Recorded in the County Clerk's Office) | |||||||
|---|---|---|---|---|---|---|---|
| Date | Type | Book | Page | Price | Grantor | Grantee | |
|
7/26/2013 |
|
Deeds |
$247,000 |
DOCKERY ASHLEY |
GAGLIARDI KYLE & JILL |
||
|
7/30/2012 |
|
Deeds |
$230,000 |
SHAWN FORTH INC DBA SHAWN FORTH CUSTOM HOMES INC |
DOCKERY ASHLEY |
||
|
11/1/2011 |
|
Deeds |
$33,000 |
CALIBER DEVELOPMENT COMPANY LLC |
DODSON CUSTOM HOMES LLC |
||
|
11/1/2011 |
|
Deeds |
$41,000 |
DODSON CUSTOM HOMES LLC |
SHAWN FORTH INC DBA SHAWN FORTH CUSTOM HOMES INC |
||
| Last Mailed Notice of Value (N.O.V.) Information/History | ||||||||
|---|---|---|---|---|---|---|---|---|
| Year | Date | Market Value | Taxable Market Value | Gross Assessed | Exemption | Net Assessed | ||
|
2026 |
02/06/2026 |
403,000 |
348,004 |
38,279 |
1,000 |
37,279 |
||
|
2025 |
01/31/2025 |
412,500 |
337,868 |
37,165 |
1,000 |
36,165 |
||
|
2024 |
01/22/2024 |
403,000 |
328,028 |
36,082 |
1,000 |
35,082 |
||
|
2023 |
01/23/2023 |
387,000 |
318,474 |
35,031 |
1,000 |
34,031 |
||
|
2022 |
02/22/2022 |
342,000 |
309,199 |
34,011 |
1,000 |
33,011 |
||
| Property Building Permit History | ||||||
|---|---|---|---|---|---|---|
| Issued | Permit # | Provided by | Bldg # | Description | Est Construction Cost | Status |
|
9/13/2021 |
POOL-2021-00211 |
|
1 |
Swimming Pool |
42,000 |
Inactive |
|
2/8/2012 |
10439301 |
OKLAHOMA CITY |
1 |
Main Dwellin |
190,000 |
Inactive |
| Click button on building number to access detailed information: | ||||||
|---|---|---|---|---|---|---|
| Bldg # | Vacant/Improved Land | Bldg Description | Year Built | SqFt | # Stories | |
|
1 |
Improved |
1½ Story Fin |
2012 |
2,109 |
1.5 Stories |
|