|
|
|
| Larry Stein Oklahoma County Assessor (405) 713-1200 - Public Access System |
|
|
|
|
|
|
| Real Property Display - Screen Produced 4/12/2026 6:07:41 PM | ||||
|---|---|---|---|---|
| Account: R064141075 | Type: Residential | Location: |
1309 N VILLA AVE |
|
| Building Name/Occupant: |
|
OKLAHOMA CITY |
||
| Owner Name 1: | 1309 N VILLA AVENUE SERIES |
Parcel PIN#: |
2719-06-414-1075 |
|
| Owner Name 2: | 1/4 section #: |
2719 |
||
| Owner Name 3: | Parent Acct: |
2719-06-414-1070 |
||
| Billing Address: | 14816 SERENITA AVE | Tax District: |
|
|
| City, State, Zip | OKLAHOMA CITY, OK 73134 | School System: |
Oklahoma City #89 |
|
|
Country: (If noted) |
Land Size: |
0.0758 Acres |
||
|
Land Value: 14,355 |
|
|||
|
Sect 30-T12N-R3W Qtr SW |
MILLERS BOULEVARD
Block
004
Lot
000
|
|||
| Full Legal Description: MILLERS BOULEVARD 004 000 N66FT OF E50FT OF LOT 16 |
| Photo & Sketch (if available) | Comp Sales (ordered by relevancy) |
|
||||||||||||||||||
|
||||||||||||||||||||
| Value History (*The County Treasurer 405-713-1300 posts & collects actual tax amounts. Contact information HERE) | |||||||||||||
|---|---|---|---|---|---|---|---|---|---|---|---|---|---|
| Year | Market Value | Taxable Mkt Value | Gross Assessed | Exemption | Net Assessed | Millage | Est. Tax | Tax Savings | |||||
|
2026 |
144,000 |
126,412 |
13,905 |
0 |
13,905 |
122.90 |
$1,709 |
$238 |
|||||
|
2025 |
140,500 |
120,393 |
13,242 |
0 |
13,242 |
122.90 |
$1,628 |
$272 |
|||||
|
2024 |
135,500 |
114,660 |
12,612 |
0 |
12,612 |
123.89 |
$1,563 |
$284 |
|||||
|
2023 |
134,000 |
109,200 |
12,012 |
0 |
12,012 |
122.82 |
$1,475 |
$335 |
|||||
|
2022 |
104,000 |
104,000 |
11,440 |
0 |
11,440 |
117.63 |
$1,346 |
$0 |
|||||
| Property Account Status/Adjustments/Exemptions | ||
|---|---|---|
| Account # | Exemption Description | Amount |
|
R064141075 |
5% Capped Account |
0 |
| Property Deed Transaction History (Recorded in the County Clerk's Office) | |||||||
|---|---|---|---|---|---|---|---|
| Date | Type | Book | Page | Price | Grantor | Grantee | |
|
12/7/2021 |
|
Hmstd Off & |
$0 |
CKC HOLDINGS LLC |
1309 N VILLA AVENUE SERIES |
||
|
9/23/2021 |
|
Deeds |
$108,000 |
BARROW ROBERT SHANNON TRS |
CKC HOLDINGS LLC |
||
|
10/8/2015 |
|
Hmstd Off & |
$0 |
RSB VIKING LLC |
BARROW ROBERT SHANNON TRS |
||
|
2/26/2014 |
|
Deeds |
$0 |
RSB VIKING LLC |
RSB VIKING LLC |
||
| Last Mailed Notice of Value (N.O.V.) Information/History | ||||||||
|---|---|---|---|---|---|---|---|---|
| Year | Date | Market Value | Taxable Market Value | Gross Assessed | Exemption | Net Assessed | ||
|
2026 |
02/23/2026 |
144,000 |
126,412 |
13,905 |
0 |
13,905 |
||
|
2025 |
02/14/2025 |
140,500 |
120,393 |
13,242 |
0 |
13,242 |
||
|
2024 |
02/13/2024 |
135,500 |
114,660 |
12,612 |
0 |
12,612 |
||
|
2023 |
02/14/2023 |
134,000 |
109,200 |
12,012 |
0 |
12,012 |
||
|
2022 |
03/15/2022 |
104,000 |
104,000 |
11,440 |
0 |
11,440 |
||
| Property Building Permit History | |||||||||||
|---|---|---|---|---|---|---|---|---|---|---|---|
| Issued | Permit # | Provided by | Bldg # | Description | Est Construction Cost | Status | |||||
| No Building Permit records returned. | |||||||||||
| Click button on building number to access detailed information: | ||||||
|---|---|---|---|---|---|---|
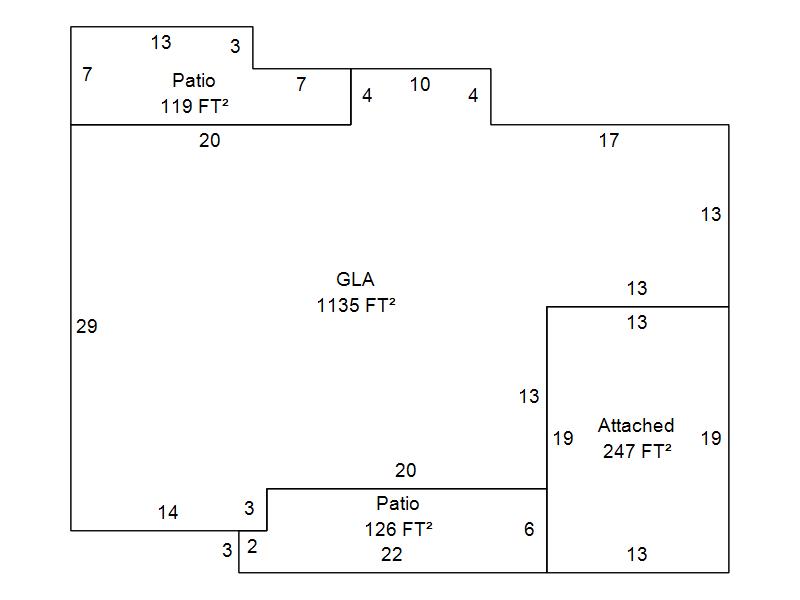
| Bldg # | Vacant/Improved Land | Bldg Description | Year Built | SqFt | # Stories | |
|
1 |
Improved |
Ranch 1 Story |
1948 |
1,135 |
1 Stories |
|