|
|
|
| Larry Stein Oklahoma County Assessor (405) 713-1200 - Public Access System |
|
|
|
|
|
|
| Real Property Display - Screen Produced 4/3/2026 1:50:52 AM | ||||
|---|---|---|---|---|
| Account: R214171070 | Type: Residential | Location: |
18705 BAJO DR |
|
| Building Name/Occupant: |
|
OKLAHOMA CITY |
||
| Owner Name 1: | MATHEW GEORGE |
Parcel PIN#: |
4720-21-417-1070 |
|
| Owner Name 2: | GEORGE SOSAMMA | 1/4 section #: |
4720 |
|
| Owner Name 3: | Parent Acct: |
4717-18-669-1960 |
||
| Billing Address: | 18705 BAJO DR | Tax District: |
|
|
| City, State, Zip | EDMOND , OK 73012 | School System: |
Deer Creek #6 |
|
|
Country: (If noted) |
Land Size: |
0.1791 Acres |
||
|
Land Value: 63,570 |
|
|||
|
Sect 30-T14N-R3W Qtr N/2 |
VALENCIA PARK SEC 14
Block
061
Lot
008
|
|||
| Full Legal Description: VALENCIA PARK SEC 14 061 008 |
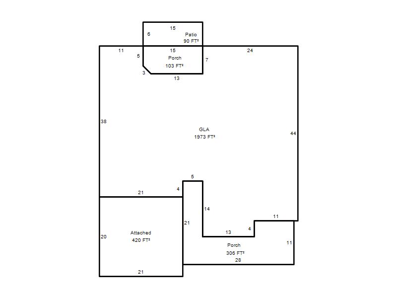
| Photo & Sketch (if available) | Comp Sales (ordered by relevancy) |
|
||||||||||||||||||
|
||||||||||||||||||||
| Value History (*The County Treasurer 405-713-1300 posts & collects actual tax amounts. Contact information HERE) | |||||||||||||
|---|---|---|---|---|---|---|---|---|---|---|---|---|---|
| Year | Market Value | Taxable Mkt Value | Gross Assessed | Exemption | Net Assessed | Millage | Est. Tax | Tax Savings | |||||
|
2026 |
364,000 |
333,107 |
36,640 |
0 |
36,640 |
129.51 |
$4,745 |
$440 |
|||||
|
2025 |
362,500 |
317,245 |
34,896 |
0 |
34,896 |
129.51 |
$4,520 |
$645 |
|||||
|
2024 |
355,000 |
302,139 |
33,234 |
0 |
33,234 |
131.12 |
$4,358 |
$762 |
|||||
|
2023 |
336,000 |
287,752 |
31,652 |
0 |
31,652 |
131.55 |
$4,164 |
$698 |
|||||
|
2022 |
294,000 |
274,050 |
30,145 |
0 |
30,145 |
130.27 |
$3,927 |
$286 |
|||||
| Property Account Status/Adjustments/Exemptions | ||
|---|---|---|
| Account # | Exemption Description | Amount |
|
R214171070 |
5% Capped Account |
0 |
| Property Deed Transaction History (Recorded in the County Clerk's Office) | |||||||
|---|---|---|---|---|---|---|---|
| Date | Type | Book | Page | Price | Grantor | Grantee | |
|
12/31/2018 |
|
Deeds |
$250,000 |
IDEAL HOMES OF NORMAN LP |
MATHEW GEORGE |
||
|
6/13/2017 |
|
Deeds |
$40,500 |
VALENCIA LAND LLC |
IDEAL HOMES OF NORMAN LP |
||
| Last Mailed Notice of Value (N.O.V.) Information/History | ||||||||
|---|---|---|---|---|---|---|---|---|
| Year | Date | Market Value | Taxable Market Value | Gross Assessed | Exemption | Net Assessed | ||
|
2026 |
02/06/2026 |
364,000 |
333,107 |
36,640 |
0 |
36,640 |
||
|
2025 |
01/31/2025 |
362,500 |
317,245 |
34,896 |
0 |
34,896 |
||
|
2024 |
01/22/2024 |
355,000 |
302,139 |
33,234 |
0 |
33,234 |
||
|
2023 |
01/23/2023 |
336,000 |
287,752 |
31,652 |
0 |
31,652 |
||
|
2022 |
02/22/2022 |
294,000 |
274,050 |
30,145 |
0 |
30,145 |
||
| Property Building Permit History | ||||||
|---|---|---|---|---|---|---|
| Issued | Permit # | Provided by | Bldg # | Description | Est Construction Cost | Status |
|
6/21/2017 |
10494955 |
OKLAHOMA CITY |
1 |
Main Dwellin |
0 |
Inactive |
| Click button on building number to access detailed information: | ||||||
|---|---|---|---|---|---|---|
| Bldg # | Vacant/Improved Land | Bldg Description | Year Built | SqFt | # Stories | |
|
1 |
Improved |
Ranch 1 Story |
2017 |
1,973 |
1 Stories |
|