|
|
|
| Larry Stein Oklahoma County Assessor (405) 713-1200 - Public Access System |
|
|
|
|
|
|
| Real Property Display - Screen Produced 4/8/2026 5:55:36 AM | ||||
|---|---|---|---|---|
| Account: R217491350 | Type: Residential | Location: |
16428 BURGUNDY EAST DR |
|
| Building Name/Occupant: |
|
OKLAHOMA CITY |
||
| Owner Name 1: | MTM FAMILY REV TRUST |
Parcel PIN#: |
3617-21-749-1350 |
|
| Owner Name 2: | 1/4 section #: |
3617 |
||
| Owner Name 3: | Parent Acct: |
3617-14-400-3920 |
||
| Billing Address: | 16428 BURGUNDY EAST DR | Tax District: |
|
|
| City, State, Zip | EDMOND, OK 73013-1084 | School System: |
Edmond #12 |
|
|
Country: (If noted) |
Land Size: |
0.1351 Acres |
||
|
Land Value: 126,822 |
|
|||
|
Sect 5-T13N-R3W Qtr NE |
THE VINTAGES AT CAMDEN PARK SEC 2
Block
010
Lot
001
|
|||
| Full Legal Description: THE VINTAGES AT CAMDEN PARK SEC 2 BLK 010 LOT 001 |
| Photo & Sketch (if available) | Comp Sales (ordered by relevancy) |
|
||||||||||||||||||
|
||||||||||||||||||||
| Value History (*The County Treasurer 405-713-1300 posts & collects actual tax amounts. Contact information HERE) | |||||||||||||
|---|---|---|---|---|---|---|---|---|---|---|---|---|---|
| Year | Market Value | Taxable Mkt Value | Gross Assessed | Exemption | Net Assessed | Millage | Est. Tax | Tax Savings | |||||
|
2026 |
670,500 |
670,500 |
73,755 |
1,000 |
72,755 |
120.32 |
$8,754 |
$120 |
|||||
|
2025 |
14,678 |
14,678 |
1,614 |
0 |
1,614 |
120.32 |
$194 |
$0 |
|||||
|
2024 |
14,678 |
14,678 |
1,614 |
0 |
1,614 |
119.96 |
$194 |
$0 |
|||||
|
2023 |
14,678 |
14,678 |
1,614 |
0 |
1,614 |
119.02 |
$192 |
$0 |
|||||
|
2022 |
14,678 |
14,678 |
1,614 |
0 |
1,614 |
120.10 |
$194 |
$0 |
|||||
| Property Account Status/Adjustments/Exemptions | ||
|---|---|---|
| Account # | Exemption Description | Amount |
|
R217491350 |
Homestead |
1,000 |
| Property Deed Transaction History (Recorded in the County Clerk's Office) | |||||||
|---|---|---|---|---|---|---|---|
| Date | Type | Book | Page | Price | Grantor | Grantee | |
|
9/15/2025 |
|
Deeds |
$708,000 |
BILL ROBERTS CUSTOM HOMES LLC |
MTM FAMILY REV TRUST |
||
|
11/14/2024 |
|
Deeds |
$89,500 |
OTBR LLC |
BILL ROBERTS CUSTOM HOMES LLC |
||
|
12/29/2023 |
|
Mult Parcel |
$1,010,000 |
G&W PROPERTY GROUP LLC |
OTBR LLC |
||
|
9/6/2019 |
|
Hmstd Off & |
$0 |
G&W LAND LLC |
G&W PROPERTY GROUP LLC |
||
| Last Mailed Notice of Value (N.O.V.) Information/History | ||||||
|---|---|---|---|---|---|---|
| Year | Date | Market Value | Taxable Market Value | Gross Assessed | Exemption | Net Assessed |
|
2026 |
02/23/2026 |
670,500 |
670,500 |
73,755 |
1,000 |
72,755 |
|
2021 |
03/19/2021 |
14,678 |
14,678 |
1,614 |
0 |
1,614 |
| Property Building Permit History | ||||||
|---|---|---|---|---|---|---|
| Issued | Permit # | Provided by | Bldg # | Description | Est Construction Cost | Status |
|
12/2/2024 |
BLDR-2024-06228 |
|
1 |
Main Dwellin |
500,000 |
Inactive |
| Click button on building number to access detailed information: | ||||||
|---|---|---|---|---|---|---|
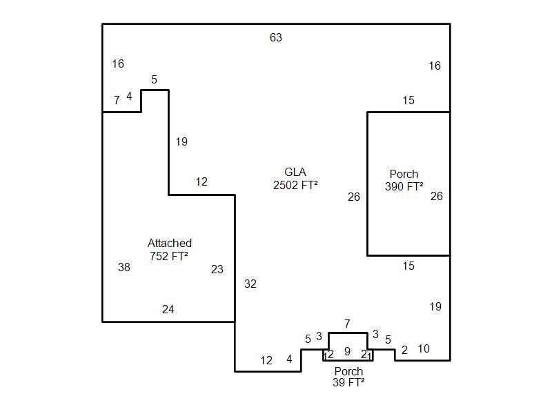
| Bldg # | Vacant/Improved Land | Bldg Description | Year Built | SqFt | # Stories | |
|
1 |
Improved |
Ranch 1 Story |
2024 |
2,502 |
1 Stories |
|