|
|
|
| Larry Stein Oklahoma County Assessor (405) 713-1200 - Public Access System |
|
|
|
|
|
|
| Real Property Display - Screen Produced 4/5/2026 11:05:10 PM | ||||
|---|---|---|---|---|
| Account: R218121070 | Type: Residential | Location: |
8141 JENNY LN |
|
| Building Name/Occupant: |
|
EDMOND |
||
| Owner Name 1: | ARZOO & ASSOCIATES LLC |
Parcel PIN#: |
4442-21-812-1070 |
|
| Owner Name 2: | 1/4 section #: |
4442 |
||
| Owner Name 3: | Parent Acct: |
4442-16-863-1100 |
||
| Billing Address: | PO BOX 6115 | Tax District: |
|
|
| City, State, Zip | EDMOND, OK 73083-6115 | School System: |
Edmond #12 |
|
|
Country: (If noted) |
Land Size: |
0.1865 Acres |
||
|
Land Value: 98,313 |
|
|||
|
Sect 11-T14N-R2W Qtr SE |
RIDGE CREEK SOUTH PH II
Block
006
Lot
006
|
|||
| Full Legal Description: RIDGE CREEK SOUTH PH II BLK 006 LOT 006 |
| Photo & Sketch (if available) | Comp Sales (ordered by relevancy) |
|
||||||||||||||||||
|
||||||||||||||||||||
| Value History (*The County Treasurer 405-713-1300 posts & collects actual tax amounts. Contact information HERE) | ||||||||
|---|---|---|---|---|---|---|---|---|
| Year | Market Value | Taxable Mkt Value | Gross Assessed | Exemption | Net Assessed | Millage | Est. Tax | Tax Savings |
|
2026 |
531,000 |
411,034 |
45,212 |
0 |
45,212 |
105.16 |
$4,755 |
$1,388 |
|
2025 |
197,523 |
160,335 |
17,636 |
0 |
17,636 |
105.16 |
$1,855 |
$430 |
|
2024 |
152,700 |
152,700 |
16,797 |
0 |
16,797 |
105.03 |
$1,764 |
$0 |
|
2023 |
7,519 |
7,519 |
827 |
0 |
827 |
104.24 |
$86 |
$0 |
|
2022 |
7,519 |
7,519 |
827 |
0 |
827 |
104.64 |
$87 |
$0 |
| Property Account Status/Adjustments/Exemptions | ||
|---|---|---|
| Account # | Exemption Description | Amount |
|
R218121070 |
5% Capped Account |
0 |
| Property Deed Transaction History (Recorded in the County Clerk's Office) | |||||||
|---|---|---|---|---|---|---|---|
| Date | Type | Book | Page | Price | Grantor | Grantee | |
|
11/13/2025 |
|
Hmstd Off & |
$0 |
STK CONSTRUCTION LLC |
ARZOO & ASSOCIATES LLC |
||
|
5/18/2021 |
|
Mult Parcel |
$1,160,000 |
DOUGLAS PARTNERS LLC |
STK CONSTRUCTION LLC |
||
|
4/27/2016 |
|
Deeds |
$1,061,000 |
DOUGLAS PARTNERS LLC |
DOUGLAS PARTNERS LLC |
||
| Last Mailed Notice of Value (N.O.V.) Information/History | ||||||
|---|---|---|---|---|---|---|
| Year | Date | Market Value | Taxable Market Value | Gross Assessed | Exemption | Net Assessed |
|
2026 |
03/30/2026 |
531,000 |
411,034 |
45,212 |
0 |
45,212 |
|
2025 |
01/31/2025 |
197,523 |
160,335 |
17,636 |
0 |
17,636 |
|
2024 |
03/01/2024 |
152,700 |
152,700 |
16,797 |
0 |
16,797 |
|
2022 |
02/22/2022 |
7,519 |
7,519 |
827 |
0 |
827 |
| Property Building Permit History | ||||||
|---|---|---|---|---|---|---|
| Issued | Permit # | Provided by | Bldg # | Description | Est Construction Cost | Status |
|
1/14/2022 |
B21-01194 |
|
|
Main Dwellin |
372,400 |
Inactive |
| Click button on building number to access detailed information: | ||||||
|---|---|---|---|---|---|---|
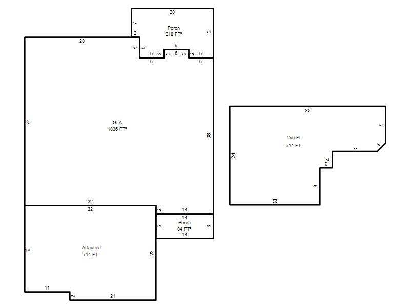
| Bldg # | Vacant/Improved Land | Bldg Description | Year Built | SqFt | # Stories | |
|
1 |
Improved |
1½ Story Fin |
2022 |
2,550 |
1.5 Stories |
|