|
|
|
| Larry Stein Oklahoma County Assessor (405) 713-1200 - Public Access System |
|
|
|
|
|
|
| Real Property Display - Screen Produced 4/1/2026 7:14:22 PM | ||||
|---|---|---|---|---|
| Account: R206111010 | Type: Residential | Location: |
8121 WOODBEND DR |
|
| Building Name/Occupant: |
|
OKLAHOMA CITY |
||
| Owner Name 1: | ESKINA DEBORAH TRS |
Parcel PIN#: |
1525-20-611-1010 |
|
| Owner Name 2: | ESKINA MICHAEL & DEBORAH FAMILY TRUST | 1/4 section #: |
1525 |
|
| Owner Name 3: | Parent Acct: |
1525-14-367-6000 |
||
| Billing Address: | 1508 WILDFIRE ST | Tax District: |
|
|
| City, State, Zip | MOORE, OK 73160 | School System: |
Mid-Del #52 |
|
|
Country: (If noted) |
Land Size: |
0.3591 Acres |
||
|
Land Value: 38,180 |
|
|||
|
Sect 32-T11N-R2W Qtr NE |
WIND WOOD NORTH SEC 3
Block
013
Lot
002
|
|||
| Full Legal Description: WIND WOOD NORTH SEC 3 013 002 |
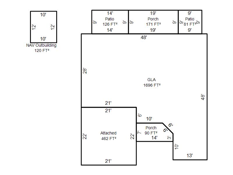
| Photo & Sketch (if available) | Comp Sales (ordered by relevancy) |
|
||||||||||||||||||
|
||||||||||||||||||||
| Value History (*The County Treasurer 405-713-1300 posts & collects actual tax amounts. Contact information HERE) | |||||||||||||
|---|---|---|---|---|---|---|---|---|---|---|---|---|---|
| Year | Market Value | Taxable Mkt Value | Gross Assessed | Exemption | Net Assessed | Millage | Est. Tax | Tax Savings | |||||
|
2026 |
258,000 |
196,772 |
21,644 |
0 |
21,644 |
126.46 |
$2,737 |
$852 |
|||||
|
2025 |
251,000 |
187,402 |
20,614 |
2,000 |
18,614 |
126.46 |
$2,354 |
$1,138 |
|||||
|
2024 |
246,000 |
187,402 |
20,614 |
2,000 |
18,614 |
128.51 |
$2,392 |
$1,085 |
|||||
|
2023 |
237,000 |
187,402 |
20,613 |
2,000 |
18,613 |
122.94 |
$2,288 |
$917 |
|||||
|
2022 |
203,500 |
181,944 |
20,012 |
1,000 |
19,012 |
122.11 |
$2,322 |
$412 |
|||||
| Property Account Status/Adjustments/Exemptions | ||
|---|---|---|
| Account # | Exemption Description | Amount |
|
R206111010 |
5% Capped Account |
0 |
| Property Deed Transaction History (Recorded in the County Clerk's Office) | ||||||||||
|---|---|---|---|---|---|---|---|---|---|---|
| Date | Type | Book | Page | Price | Grantor | Grantee | ||||
|
6/3/2025 |
|
Hmstd Off & |
$0 |
ESKINA DEBBIE |
ESKINA DEBORAH TRS |
|||||
|
4/14/2025 |
|
Deeds |
$0 |
SNADER ANN |
DECKER MARIAN |
|||||
|
4/14/2025 |
|
Deeds |
$0 |
DECKER MARIAN |
ESKINA DEBBIE |
|||||
|
4/25/2016 |
|
Deeds |
$0 |
SNADER ANN |
SNADER ANN |
|||||
|
11/13/2014 |
|
Deeds |
$0 |
SNADER KENNETH R SNADER ANN |
SNADER ANN |
|||||
| Last Mailed Notice of Value (N.O.V.) Information/History | ||||||||
|---|---|---|---|---|---|---|---|---|
| Year | Date | Market Value | Taxable Market Value | Gross Assessed | Exemption | Net Assessed | ||
|
2026 |
02/06/2026 |
258,000 |
196,772 |
21,644 |
0 |
21,644 |
||
|
2025 |
01/31/2025 |
251,000 |
187,402 |
20,614 |
2,000 |
18,614 |
||
|
2024 |
01/22/2024 |
246,000 |
187,402 |
20,614 |
2,000 |
18,614 |
||
|
2023 |
01/23/2023 |
237,000 |
187,402 |
20,613 |
1,000 |
19,613 |
||
|
2022 |
02/22/2022 |
203,500 |
181,944 |
20,012 |
1,000 |
19,012 |
||
| Property Building Permit History | ||||||
|---|---|---|---|---|---|---|
| Issued | Permit # | Provided by | Bldg # | Description | Est Construction Cost | Status |
|
8/6/2007 |
10341016 |
OKLAHOMA CITY |
1 |
Storage Buil |
5,000 |
Inactive |
|
11/23/2005 |
10314639 |
OKLAHOMA CITY |
1 |
Main Dwellin |
105,000 |
Inactive |
| Click button on building number to access detailed information: | ||||||
|---|---|---|---|---|---|---|
| Bldg # | Vacant/Improved Land | Bldg Description | Year Built | SqFt | # Stories | |
|
1 |
Improved |
Ranch 1 Story |
2005 |
1,696 |
1 Stories |
|