|
|
|
| Larry Stein Oklahoma County Assessor (405) 713-1200 - Public Access System |
|
|
|
|
|
|
| Real Property Display - Screen Produced 4/1/2026 7:04:50 PM | ||||
|---|---|---|---|---|
| Account: R206111460 | Type: Residential | Location: |
5112 SE 79TH ST |
|
| Building Name/Occupant: |
|
OKLAHOMA CITY |
||
| Owner Name 1: | PHAM PETER THONG |
Parcel PIN#: |
1525-20-611-1460 |
|
| Owner Name 2: | VU LINH THUY | 1/4 section #: |
1525 |
|
| Owner Name 3: | Parent Acct: |
1525-14-367-6000 |
||
| Billing Address: | 5112 SE 79TH ST. | Tax District: |
|
|
| City, State, Zip | OKLAHOMA CITY, OK 73135 | School System: |
Mid-Del #52 |
|
|
Country: (If noted) |
UNITED STATES |
Land Size: |
0.1612 Acres |
|
|
Land Value: 29,484 |
|
|||
|
Sect 32-T11N-R2W Qtr NE |
WIND WOOD NORTH SEC 3
Block
015
Lot
010
|
|||
| Full Legal Description: WIND WOOD NORTH SEC 3 015 010 |
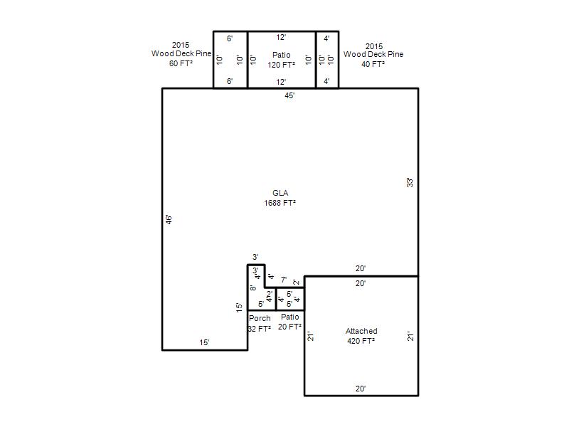
| Photo & Sketch (if available) | Comp Sales (ordered by relevancy) |
|
||||||||||||||||||
|
||||||||||||||||||||
| Value History (*The County Treasurer 405-713-1300 posts & collects actual tax amounts. Contact information HERE) | |||||||||||||
|---|---|---|---|---|---|---|---|---|---|---|---|---|---|
| Year | Market Value | Taxable Mkt Value | Gross Assessed | Exemption | Net Assessed | Millage | Est. Tax | Tax Savings | |||||
|
2026 |
242,000 |
242,000 |
26,620 |
1,000 |
25,620 |
126.46 |
$3,240 |
$126 |
|||||
|
2025 |
238,000 |
238,000 |
26,180 |
0 |
26,180 |
126.46 |
$3,311 |
$0 |
|||||
|
2024 |
234,500 |
180,643 |
19,870 |
19,870 |
0 |
128.51 |
$0 |
$3,315 |
|||||
|
2023 |
224,000 |
175,382 |
19,291 |
19,291 |
0 |
122.94 |
$0 |
$3,029 |
|||||
|
2022 |
191,500 |
170,274 |
18,729 |
18,729 |
0 |
122.11 |
$0 |
$2,572 |
|||||
| Property Account Status/Adjustments/Exemptions | ||
|---|---|---|
| Account # | Exemption Description | Amount |
|
R206111460 |
3% Cap Homestead |
0 |
|
R206111460 |
Homestead |
1,000 |
| Property Deed Transaction History (Recorded in the County Clerk's Office) | |||||||
|---|---|---|---|---|---|---|---|
| Date | Type | Book | Page | Price | Grantor | Grantee | |
|
6/13/2024 |
|
Deeds |
$234,000 |
MACKLIN FAMILY REV TRUST |
PHAM PETER THONG |
||
|
9/12/2022 |
|
Deeds |
$0 |
MACKLIN CARLA LAVERNE |
MACKLIN FAMILY REV TRUST |
||
|
11/29/2010 |
|
Deeds |
$142,000 |
LEONHARDT ENTERPRISES INC |
MACKLIN CARLA LAVERNE |
||
|
7/29/2005 |
|
Mult Parcel |
$580,500 |
ERC LAND DEVELOPMENT GROUP LLC |
LEONHARDT ENTERPRISES INC |
||
| Last Mailed Notice of Value (N.O.V.) Information/History | ||||||||
|---|---|---|---|---|---|---|---|---|
| Year | Date | Market Value | Taxable Market Value | Gross Assessed | Exemption | Net Assessed | ||
|
2026 |
02/06/2026 |
242,000 |
242,000 |
26,620 |
0 |
26,620 |
||
|
2025 |
01/31/2025 |
238,000 |
238,000 |
26,180 |
0 |
26,180 |
||
|
2024 |
01/22/2024 |
234,500 |
180,643 |
19,870 |
19,870 |
0 |
||
|
2023 |
01/23/2023 |
224,000 |
175,382 |
19,291 |
19,291 |
0 |
||
|
2022 |
02/22/2022 |
191,500 |
170,274 |
18,729 |
18,729 |
0 |
||
| Property Building Permit History | ||||||
|---|---|---|---|---|---|---|
| Issued | Permit # | Provided by | Bldg # | Description | Est Construction Cost | Status |
|
4/29/2008 |
10353929 |
OKLAHOMA CITY |
1 |
Main Dwellin |
119,000 |
Inactive |
| Click button on building number to access detailed information: | ||||||
|---|---|---|---|---|---|---|
| Bldg # | Vacant/Improved Land | Bldg Description | Year Built | SqFt | # Stories | |
|
1 |
Improved |
Ranch 1 Story |
2009 |
1,688 |
1 Stories |
|