|
|
|
| Larry Stein Oklahoma County Assessor (405) 713-1200 - Public Access System |
|
|
|
|
|
|
| Real Property Display - Screen Produced 4/3/2026 9:40:24 AM | ||||
|---|---|---|---|---|
| Account: R129701380 | Type: Residential | Location: |
8525 WOODBEND DR |
|
| Building Name/Occupant: |
|
OKLAHOMA CITY |
||
| Owner Name 1: | SODERLUND DAVID A |
Parcel PIN#: |
1526-12-970-1380 |
|
| Owner Name 2: | 1/4 section #: |
1526 |
||
| Owner Name 3: | Parent Acct: |
|
||
| Billing Address: | 8525 WOODBEND DR | Tax District: |
|
|
| City, State, Zip | DEL CITY, OK 73135-6188 | School System: |
Moore #2 |
|
|
Country: (If noted) |
Land Size: |
0.1940 Acres |
||
|
Land Value: 34,392 |
|
|||
|
Sect 32-T11N-R2W Qtr SE |
WIND WOOD ESTATES SEC 9
Block
045
Lot
001
|
|||
| Full Legal Description: WIND WOOD ESTATES SEC 9 045 001 |
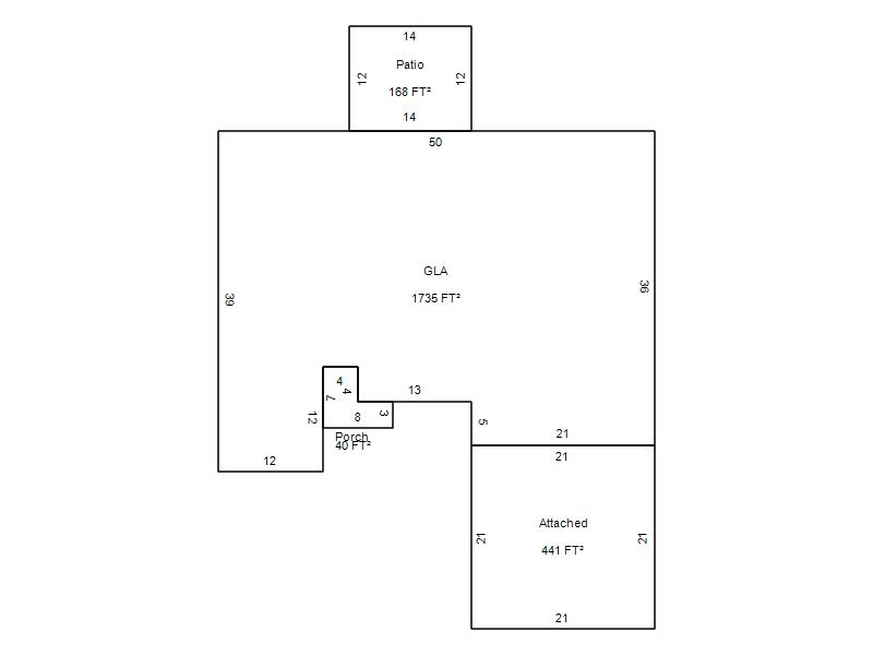
| Photo & Sketch (if available) | Comp Sales (ordered by relevancy) |
|
||||||||||||||||||
|
||||||||||||||||||||
| Value History (*The County Treasurer 405-713-1300 posts & collects actual tax amounts. Contact information HERE) | |||||||||||||
|---|---|---|---|---|---|---|---|---|---|---|---|---|---|
| Year | Market Value | Taxable Mkt Value | Gross Assessed | Exemption | Net Assessed | Millage | Est. Tax | Tax Savings | |||||
|
2026 |
244,500 |
185,673 |
20,423 |
1,000 |
19,423 |
123.20 |
$2,393 |
$920 |
|||||
|
2025 |
129,946 |
129,946 |
14,294 |
1,000 |
13,294 |
123.20 |
$1,638 |
$123 |
|||||
|
2024 |
129,946 |
129,946 |
14,294 |
1,000 |
13,294 |
122.28 |
$1,626 |
$122 |
|||||
|
2023 |
215,500 |
169,918 |
18,690 |
1,000 |
17,690 |
121.63 |
$2,152 |
$731 |
|||||
|
2022 |
186,500 |
164,969 |
18,146 |
1,000 |
17,146 |
124.33 |
$2,132 |
$419 |
|||||
| Property Account Status/Adjustments/Exemptions | ||
|---|---|---|
| Account # | Exemption Description | Amount |
|
R129701380 |
Homestead |
1,000 |
|
R129701380 |
3% Cap Homestead |
0 |
| Property Deed Transaction History (Recorded in the County Clerk's Office) | |||||||
|---|---|---|---|---|---|---|---|
| Date | Type | Book | Page | Price | Grantor | Grantee | |
|
3/30/2005 |
|
Deeds |
$0 |
SODERLUND DAVID A & FRANCES L |
SODERLUND DAVID A |
||
|
9/16/1999 |
|
Deeds |
$95,000 |
LEONHARDT ENTERPRISES INC |
SODERLUND DAVID A & FRANCES L |
||
|
10/23/1998 |
|
Historical |
$0 |
SOUTHWICK COMPANY LLC |
LEONHARDT ENTERPRISES INC |
||
|
8/14/1996 |
|
Historical |
$0 |
|
SOUTHWICK COMPANY LLC |
||
| Last Mailed Notice of Value (N.O.V.) Information/History | ||||||||
|---|---|---|---|---|---|---|---|---|
| Year | Date | Market Value | Taxable Market Value | Gross Assessed | Exemption | Net Assessed | ||
|
2026 |
03/30/2026 |
244,500 |
185,673 |
20,423 |
1,000 |
19,423 |
||
|
2024 |
01/22/2024 |
225,500 |
175,015 |
19,250 |
1,000 |
18,250 |
||
|
2023 |
01/23/2023 |
215,500 |
169,918 |
18,690 |
1,000 |
17,690 |
||
|
2022 |
02/22/2022 |
186,500 |
164,969 |
18,146 |
1,000 |
17,146 |
||
|
2021 |
02/24/2021 |
168,500 |
160,165 |
17,618 |
1,000 |
16,618 |
||
| Property Building Permit History | ||||||
|---|---|---|---|---|---|---|
| Issued | Permit # | Provided by | Bldg # | Description | Est Construction Cost | Status |
|
12/5/2024 |
|
|
|
Remodeled |
|
Inactive |
|
10/26/1998 |
10226536 |
OKLAHOMA CITY |
1 |
Main Dwellin |
79,500 |
Inactive |
| Click button on building number to access detailed information: | ||||||
|---|---|---|---|---|---|---|
| Bldg # | Vacant/Improved Land | Bldg Description | Year Built | SqFt | # Stories | |
|
1 |
Improved |
Ranch 1 Story |
1999 |
1,735 |
1 Stories |
|