|
|
|
| Larry Stein Oklahoma County Assessor (405) 713-1200 - Public Access System |
|
|
|
|
|
|
| Real Property Display - Screen Produced 4/9/2026 7:56:46 AM | ||||
|---|---|---|---|---|
| Account: R130811090 | Type: Residential | Location: |
6101 LILLIAN LN |
|
| Building Name/Occupant: |
|
OKLAHOMA CITY |
||
| Owner Name 1: | HAMILTON VESTER LEE & ELLEN P CO TRS |
Parcel PIN#: |
1105-13-081-1090 |
|
| Owner Name 2: | HAMILTON LEE & ELLEN REV TRUST | 1/4 section #: |
1105 |
|
| Owner Name 3: | Parent Acct: |
|
||
| Billing Address: | 6101 LILLIAN LN | Tax District: |
|
|
| City, State, Zip | NEWALLA, OK 74857 | School System: |
Harrah #7 |
|
|
Country: (If noted) |
Land Size: |
1.7000 Acres |
||
|
Land Value: 41,735 |
|
|||
|
Sect 27-T11N-R1E Qtr NE |
EDENDALE ESTATES
Block
002
Lot
001
|
|||
| Full Legal Description: EDENDALE ESTATES 002 001 |
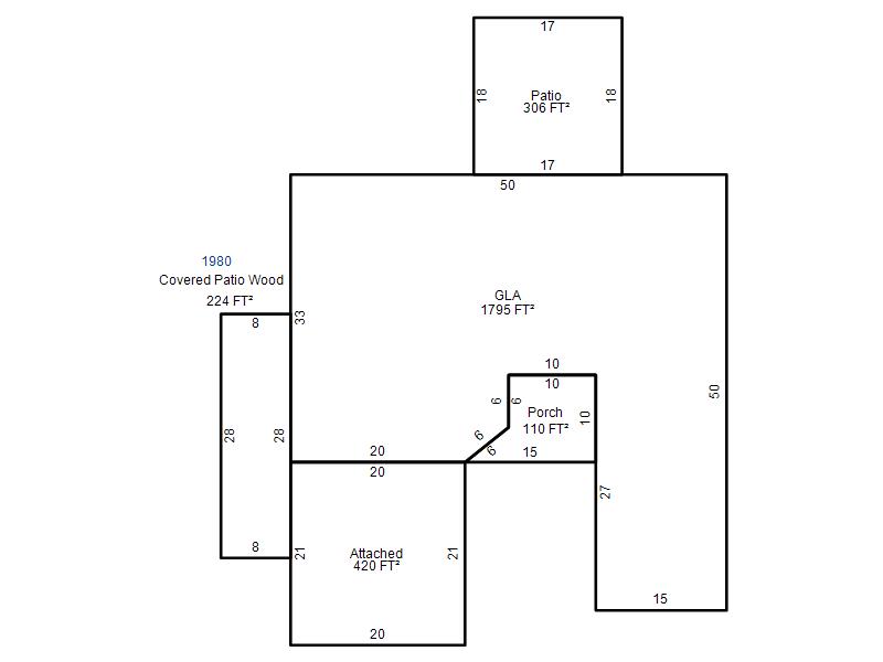
| Photo & Sketch (if available) | Comp Sales (ordered by relevancy) |
|
||||||||||||||||||
|
||||||||||||||||||||
| Value History (*The County Treasurer 405-713-1300 posts & collects actual tax amounts. Contact information HERE) | |||||||||||||
|---|---|---|---|---|---|---|---|---|---|---|---|---|---|
| Year | Market Value | Taxable Mkt Value | Gross Assessed | Exemption | Net Assessed | Millage | Est. Tax | Tax Savings | |||||
|
2026 |
278,000 |
229,951 |
25,293 |
1,000 |
24,293 |
122.70 |
$2,981 |
$771 |
|||||
|
2025 |
279,000 |
223,254 |
24,557 |
1,000 |
23,557 |
122.70 |
$2,891 |
$875 |
|||||
|
2024 |
272,500 |
216,752 |
23,842 |
1,000 |
22,842 |
125.55 |
$2,868 |
$895 |
|||||
|
2023 |
270,500 |
210,439 |
23,148 |
1,000 |
22,148 |
112.66 |
$2,495 |
$857 |
|||||
|
2022 |
233,000 |
204,310 |
22,473 |
1,000 |
21,473 |
114.96 |
$2,469 |
$478 |
|||||
| Property Account Status/Adjustments/Exemptions | ||
|---|---|---|
| Account # | Exemption Description | Amount |
|
R130811090 |
3% Cap Homestead |
0 |
|
R130811090 |
Homestead |
1,000 |
| Property Deed Transaction History (Recorded in the County Clerk's Office) | |||||||
|---|---|---|---|---|---|---|---|
| Date | Type | Book | Page | Price | Grantor | Grantee | |
|
4/22/2022 |
|
Deeds |
$0 |
HAMILTON VESTER LEE & ELLEN P |
HAMILTON VESTER LEE & ELLEN P CO TRS |
||
|
11/2/1989 |
|
Historical |
$70,500 |
TURNER WELDON REED & PATSY S |
HAMILTON VESTER LEE & ELLEN P |
||
|
9/1/1985 |
|
Historical |
$81,000 |
|
TURNER WELDON REED & PATSY S |
||
| Last Mailed Notice of Value (N.O.V.) Information/History | ||||||||
|---|---|---|---|---|---|---|---|---|
| Year | Date | Market Value | Taxable Market Value | Gross Assessed | Exemption | Net Assessed | ||
|
2026 |
02/06/2026 |
278,000 |
229,951 |
25,293 |
1,000 |
24,293 |
||
|
2025 |
01/31/2025 |
279,000 |
223,254 |
24,557 |
1,000 |
23,557 |
||
|
2024 |
01/22/2024 |
272,500 |
216,752 |
23,842 |
1,000 |
22,842 |
||
|
2023 |
01/23/2023 |
270,500 |
210,439 |
23,148 |
1,000 |
22,148 |
||
|
2022 |
02/22/2022 |
233,000 |
204,310 |
22,473 |
1,000 |
21,473 |
||
| Property Building Permit History | |||||||||||
|---|---|---|---|---|---|---|---|---|---|---|---|
| Issued | Permit # | Provided by | Bldg # | Description | Est Construction Cost | Status | |||||
| No Building Permit records returned. | |||||||||||
| Click button on building number to access detailed information: | ||||||
|---|---|---|---|---|---|---|
| Bldg # | Vacant/Improved Land | Bldg Description | Year Built | SqFt | # Stories | |
|
1 |
Improved |
Ranch 1 Story |
1983 |
1,795 |
1 Stories |
|