|
|
|
| Larry Stein Oklahoma County Assessor (405) 713-1200 - Public Access System |
|
|
|
|
|
|
| Real Property Display - Screen Produced 4/6/2026 7:44:27 AM | ||||
|---|---|---|---|---|
| Account: R107980360 | Type: Residential | Location: |
1329 SW 26TH ST |
|
| Building Name/Occupant: |
|
OKLAHOMA CITY |
||
| Owner Name 1: | FULL COURT SHOT PROPERTIES LLC |
Parcel PIN#: |
1631-10-798-0360 |
|
| Owner Name 2: | 1/4 section #: |
1631 |
||
| Owner Name 3: | Parent Acct: |
|
||
| Billing Address: | 1108 W COMANCHE ST | Tax District: |
|
|
| City, State, Zip | NORMAN, OK 73069-5427 | School System: |
Oklahoma City #89 |
|
|
Country: (If noted) |
Land Size: |
0.1607 Acres |
||
|
Land Value: 13,300 |
|
|||
|
Sect 8-T11N-R3W Qtr SW |
INDUSTRIAL ADDITION
Block
004
Lot
000
|
|||
| Full Legal Description: INDUSTRIAL ADDITION 004 000 LOTS 33 & 34 |
| Photo & Sketch (if available) | Comp Sales (ordered by relevancy) |
|
||||||||||||||||||
|
||||||||||||||||||||
| Value History (*The County Treasurer 405-713-1300 posts & collects actual tax amounts. Contact information HERE) | |||||||||||||
|---|---|---|---|---|---|---|---|---|---|---|---|---|---|
| Year | Market Value | Taxable Mkt Value | Gross Assessed | Exemption | Net Assessed | Millage | Est. Tax | Tax Savings | |||||
|
2026 |
106,000 |
32,542 |
3,579 |
0 |
3,579 |
119.02 |
$426 |
$962 |
|||||
|
2025 |
109,000 |
30,993 |
3,408 |
0 |
3,408 |
119.02 |
$406 |
$1,021 |
|||||
|
2024 |
130,500 |
29,518 |
3,246 |
0 |
3,246 |
119.70 |
$389 |
$1,330 |
|||||
|
2023 |
89,500 |
28,113 |
3,092 |
0 |
3,092 |
118.33 |
$366 |
$799 |
|||||
|
2022 |
72,500 |
26,775 |
2,945 |
0 |
2,945 |
112.69 |
$332 |
$567 |
|||||
| Property Account Status/Adjustments/Exemptions | ||
|---|---|---|
| Account # | Exemption Description | Amount |
|
R107980360 |
5% Capped Account |
0 |
| Property Deed Transaction History (Recorded in the County Clerk's Office) | |||||||
|---|---|---|---|---|---|---|---|
| Date | Type | Book | Page | Price | Grantor | Grantee | |
|
7/18/2024 |
|
Hmstd Off & |
$0 |
SL GRAY LLC |
FULL COURT SHOT PROPERTIES LLC |
||
|
3/7/2005 |
|
Other |
$0 |
GRAY CURTIS LEE |
SL GRAY LLC |
||
|
4/27/2000 |
|
Deeds |
$27,500 |
THORP L D SR & LILLIAN CO TRS THORP TRUST |
GRAY CURTIS L & DANIELLE |
||
|
3/22/1991 |
|
Historical |
$0 |
THORP LONNIE D SR & LILLIAN |
THORP L D SR & LILLIAN CO TRS |
||
|
8/1/1978 |
|
Historical |
$0 |
|
THORP LONNIE D SR & LILLIAN |
||
| Last Mailed Notice of Value (N.O.V.) Information/History | ||||||||
|---|---|---|---|---|---|---|---|---|
| Year | Date | Market Value | Taxable Market Value | Gross Assessed | Exemption | Net Assessed | ||
|
2026 |
02/06/2026 |
106,000 |
32,542 |
3,579 |
0 |
3,579 |
||
|
2025 |
01/31/2025 |
109,000 |
30,993 |
3,408 |
0 |
3,408 |
||
|
2024 |
01/22/2024 |
130,500 |
29,518 |
3,246 |
0 |
3,246 |
||
|
2023 |
01/23/2023 |
89,500 |
28,113 |
3,092 |
0 |
3,092 |
||
|
2022 |
02/22/2022 |
72,500 |
26,775 |
2,945 |
0 |
2,945 |
||
| Property Building Permit History | |||||||||||
|---|---|---|---|---|---|---|---|---|---|---|---|
| Issued | Permit # | Provided by | Bldg # | Description | Est Construction Cost | Status | |||||
| No Building Permit records returned. | |||||||||||
| Click button on building number to access detailed information: | ||||||
|---|---|---|---|---|---|---|
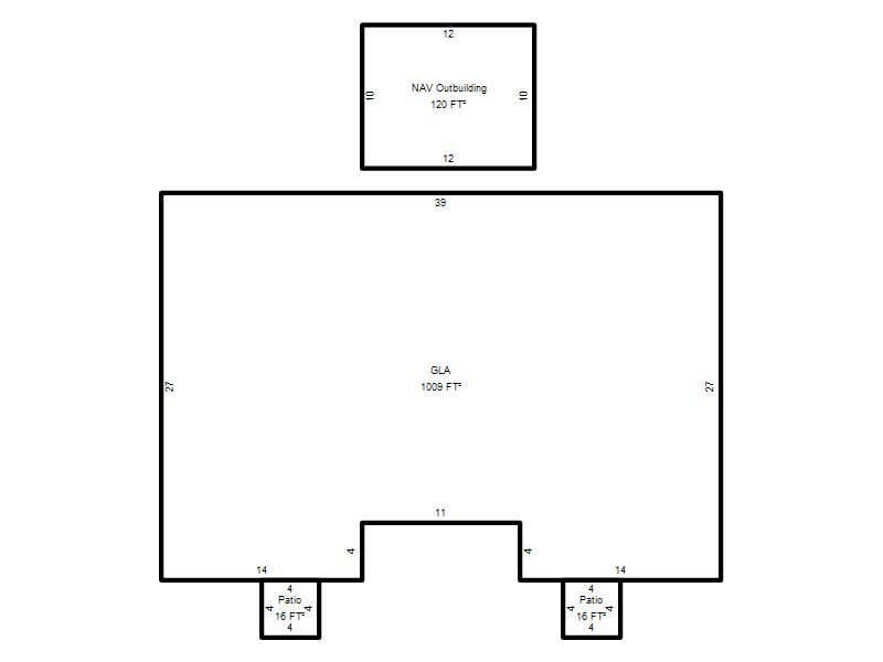
| Bldg # | Vacant/Improved Land | Bldg Description | Year Built | SqFt | # Stories | |
|
1 |
Improved |
Duplex One Story |
1950 |
1,009 |
1 Stories |
|