|
|
|
| Larry Stein Oklahoma County Assessor (405) 713-1200 - Public Access System |
|
|
|
|
|
|
| Real Property Display - Screen Produced 4/2/2026 4:37:36 PM | ||||
|---|---|---|---|---|
| Account: R197521550 | Type: Residential | Location: |
15226 FALCON WAY |
|
| Building Name/Occupant: |
|
CHOCTAW |
||
| Owner Name 1: | GREEN KATHRYN |
Parcel PIN#: |
1204-19-752-1550 |
|
| Owner Name 2: | 1/4 section #: |
1204 |
||
| Owner Name 3: | Parent Acct: |
|
||
| Billing Address: | 15226 FALCON WAY | Tax District: |
|
|
| City, State, Zip | CHOCTAW, OK 73020-7069 | School System: |
Choctaw #4 |
|
|
Country: (If noted) |
UNITED STATES |
Land Size: |
1.0000 Acres |
|
|
Land Value: 51,960 |
|
|||
|
Sect 1-T11N-R1W Qtr NW |
POINTONS PHEASANT RUN
Block
005
Lot
008
|
|||
| Full Legal Description: POINTONS PHEASANT RUN 005 008 |
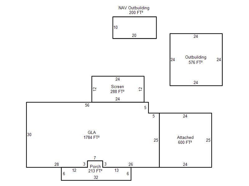
| Photo & Sketch (if available) | Comp Sales (ordered by relevancy) |
|
|||||||||||||||
|
|||||||||||||||||
| Value History (*The County Treasurer 405-713-1300 posts & collects actual tax amounts. Contact information HERE) | |||||||||||||
|---|---|---|---|---|---|---|---|---|---|---|---|---|---|
| Year | Market Value | Taxable Mkt Value | Gross Assessed | Exemption | Net Assessed | Millage | Est. Tax | Tax Savings | |||||
|
2026 |
288,000 |
288,000 |
31,680 |
0 |
31,680 |
117.21 |
$3,713 |
$0 |
|||||
|
2025 |
278,000 |
278,000 |
30,580 |
0 |
30,580 |
117.21 |
$3,584 |
$0 |
|||||
|
2024 |
250,000 |
209,066 |
22,997 |
0 |
22,997 |
116.35 |
$2,676 |
$524 |
|||||
|
2023 |
241,000 |
199,111 |
21,901 |
0 |
21,901 |
118.06 |
$2,586 |
$544 |
|||||
|
2022 |
212,500 |
189,630 |
20,859 |
0 |
20,859 |
116.14 |
$2,423 |
$292 |
|||||
| Property Account Status/Adjustments/Exemptions | ||
|---|---|---|
| Account # | Exemption Description | Amount |
|
R197521550 |
5% Capped Account |
0 |
| Property Deed Transaction History (Recorded in the County Clerk's Office) | ||||||||||
|---|---|---|---|---|---|---|---|---|---|---|
| Date | Type | Book | Page | Price | Grantor | Grantee | ||||
|
8/30/2024 |
|
Deeds |
$285,000 |
WHEELER DOROTHY |
GREEN KATHRYN |
|||||
|
6/23/2017 |
|
Deeds |
$170,000 |
MCDANIEL BRIAN M OLDHAM SARAH E |
WHEELER DOROTHY |
|||||
|
3/25/2011 |
|
Deeds |
$135,000 |
MCDANIEL DANNY L |
MCDANIEL BRIAN M OLDHAM SARAH E |
|||||
|
2/20/1997 |
|
Historical |
$0 |
MCDANIEL DANNY L & MICHELLE D |
MCDANIEL DANNY L |
|||||
|
9/21/1989 |
|
Historical |
$0 |
ENNIS HARVEY A JR & EMMY |
MCDANIEL DANNY L & MICHELLE D |
|||||
| Last Mailed Notice of Value (N.O.V.) Information/History | ||||||||
|---|---|---|---|---|---|---|---|---|
| Year | Date | Market Value | Taxable Market Value | Gross Assessed | Exemption | Net Assessed | ||
|
2026 |
02/06/2026 |
288,000 |
288,000 |
31,680 |
0 |
31,680 |
||
|
2025 |
01/31/2025 |
278,000 |
278,000 |
30,580 |
0 |
30,580 |
||
|
2024 |
01/22/2024 |
250,000 |
209,066 |
22,997 |
0 |
22,997 |
||
|
2023 |
01/23/2023 |
241,000 |
199,111 |
21,901 |
0 |
21,901 |
||
|
2022 |
02/22/2022 |
212,500 |
189,630 |
20,859 |
0 |
20,859 |
||
| Property Building Permit History | ||||||
|---|---|---|---|---|---|---|
| Issued | Permit # | Provided by | Bldg # | Description | Est Construction Cost | Status |
|
3/19/2004 |
10290160 |
CHOCTAW |
1 |
Storage Buil |
7,000 |
Inactive |
| Click button on building number to access detailed information: | ||||||
|---|---|---|---|---|---|---|
| Bldg # | Vacant/Improved Land | Bldg Description | Year Built | SqFt | # Stories | |
|
1 |
Improved |
Ranch 1 Story |
1979 |
1,784 |
1 Stories |
|