|
|
|
| Larry Stein Oklahoma County Assessor (405) 713-1200 - Public Access System |
|
|
|
|
|
|
| Real Property Display - Screen Produced 4/2/2026 10:45:35 AM | ||||
|---|---|---|---|---|
| Account: R093433380 | Type: Residential | Location: |
312 SW 31ST ST |
|
| Building Name/Occupant: |
|
OKLAHOMA CITY |
||
| Owner Name 1: | LOPEZ LETICIA |
Parcel PIN#: |
1661-09-343-3380 |
|
| Owner Name 2: | LOPEZ GUMERCINDO & INEZ E | 1/4 section #: |
1661 |
|
| Owner Name 3: | Parent Acct: |
|
||
| Billing Address: | 312 SW 31ST ST | Tax District: |
|
|
| City, State, Zip | OKLAHOMA CITY, OK 73109-6305 | School System: |
Oklahoma City #89 |
|
|
Country: (If noted) |
Land Size: |
0.1607 Acres |
||
|
Land Value: 11,200 |
|
|||
|
Sect 16-T11N-R3W Qtr NE |
OLIVER PARK ADDITION
Block
014
Lot
000
|
|||
| Full Legal Description: OLIVER PARK ADDITION 014 000 LOTS 33 & 34 |
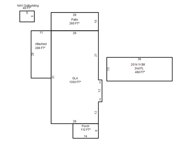
| Photo & Sketch (if available) | Comp Sales (ordered by relevancy) |
|
||||||||||||||||||
|
||||||||||||||||||||
| Value History (*The County Treasurer 405-713-1300 posts & collects actual tax amounts. Contact information HERE) | |||||||||||||
|---|---|---|---|---|---|---|---|---|---|---|---|---|---|
| Year | Market Value | Taxable Mkt Value | Gross Assessed | Exemption | Net Assessed | Millage | Est. Tax | Tax Savings | |||||
|
2026 |
130,500 |
75,691 |
8,325 |
1,000 |
7,325 |
119.02 |
$872 |
$837 |
|||||
|
2025 |
124,500 |
73,487 |
8,083 |
1,000 |
7,083 |
119.02 |
$843 |
$787 |
|||||
|
2024 |
115,000 |
71,347 |
7,847 |
1,000 |
6,847 |
119.70 |
$820 |
$694 |
|||||
|
2023 |
104,500 |
69,269 |
7,618 |
1,000 |
6,618 |
118.33 |
$783 |
$577 |
|||||
|
2022 |
92,500 |
67,252 |
7,397 |
0 |
7,397 |
112.69 |
$834 |
$313 |
|||||
| Property Account Status/Adjustments/Exemptions | ||
|---|---|---|
| Account # | Exemption Description | Amount |
|
R093433380 |
Homestead |
1,000 |
|
R093433380 |
3% Cap Homestead |
0 |
| Property Deed Transaction History (Recorded in the County Clerk's Office) | |||||||
|---|---|---|---|---|---|---|---|
| Date | Type | Book | Page | Price | Grantor | Grantee | |
|
10/18/2011 |
|
Deeds |
$0 |
LOPEZ GUMERSINDO L |
LOPEZ LETICIA |
||
|
11/13/2006 |
|
Deeds |
$23,000 |
ETC CUSTODIAN FBO CHERYL MANGASARIAN IRA |
LOPEZ GUMERSINDO L |
||
|
6/1/2005 |
|
Deeds |
$0 |
MOONEY RUTH E |
ETC CUSTODIAN FBO CHERYL MANGASARIAN IRA |
||
|
4/13/2005 |
|
Other |
$0 |
MOONEY LORA L |
ETC CUSTODIAN FBO CHERYL MANGASARIAN IRA |
||
|
5/1/1976 |
|
Historical |
$0 |
|
MOONEY LORA L |
||
| Last Mailed Notice of Value (N.O.V.) Information/History | ||||||||
|---|---|---|---|---|---|---|---|---|
| Year | Date | Market Value | Taxable Market Value | Gross Assessed | Exemption | Net Assessed | ||
|
2026 |
02/06/2026 |
130,500 |
75,691 |
8,325 |
1,000 |
7,325 |
||
|
2025 |
01/31/2025 |
124,500 |
73,487 |
8,083 |
1,000 |
7,083 |
||
|
2024 |
01/22/2024 |
115,000 |
71,347 |
7,847 |
1,000 |
6,847 |
||
|
2023 |
01/23/2023 |
104,500 |
69,269 |
7,618 |
1,000 |
6,618 |
||
|
2022 |
02/22/2022 |
92,500 |
67,252 |
7,397 |
0 |
7,397 |
||
| Property Building Permit History | ||||||
|---|---|---|---|---|---|---|
| Issued | Permit # | Provided by | Bldg # | Description | Est Construction Cost | Status |
|
10/4/2011 |
10435174 |
OKLAHOMA CITY |
1 |
Add On |
7,000 |
Inactive |
| Click button on building number to access detailed information: | ||||||
|---|---|---|---|---|---|---|
| Bldg # | Vacant/Improved Land | Bldg Description | Year Built | SqFt | # Stories | |
|
1 |
Improved |
1½ Story Fin |
1922 |
1,818 |
1.5 Stories |
|