|
|
|
| Larry Stein Oklahoma County Assessor (405) 713-1200 - Public Access System |
|
|
|
|
|
|
| Real Property Display - Screen Produced 4/2/2026 10:45:36 AM | ||||
|---|---|---|---|---|
| Account: R093433540 | Type: Residential | Location: |
423 SW 32ND ST |
|
| Building Name/Occupant: |
|
OKLAHOMA CITY |
||
| Owner Name 1: | HERNANDEZ MARCELINO |
Parcel PIN#: |
1661-09-343-3540 |
|
| Owner Name 2: | HERNANDEZ MARIA I | 1/4 section #: |
1661 |
|
| Owner Name 3: | Parent Acct: |
|
||
| Billing Address: | 423 SW 32ND ST | Tax District: |
|
|
| City, State, Zip | OKLAHOMA CITY, OK 73109-6318 | School System: |
Oklahoma City #89 |
|
|
Country: (If noted) |
Land Size: |
0.1511 Acres |
||
|
Land Value: 10,528 |
|
|||
|
Sect 16-T11N-R3W Qtr NE |
OLIVER PARK ADDITION
Block
015
Lot
000
|
|||
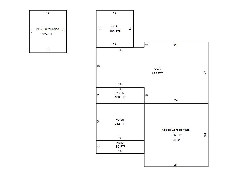
| Full Legal Description: OLIVER PARK ADDITION 015 000 LOT 18 & W22FT OF LOT 19 |
| Photo & Sketch (if available) | Comp Sales (ordered by relevancy) |
|
||||||||||||||||||
|
||||||||||||||||||||
| Value History (*The County Treasurer 405-713-1300 posts & collects actual tax amounts. Contact information HERE) | |||||||||||||
|---|---|---|---|---|---|---|---|---|---|---|---|---|---|
| Year | Market Value | Taxable Mkt Value | Gross Assessed | Exemption | Net Assessed | Millage | Est. Tax | Tax Savings | |||||
|
2026 |
84,000 |
32,361 |
3,559 |
1,000 |
2,559 |
119.02 |
$305 |
$795 |
|||||
|
2025 |
76,500 |
31,419 |
3,455 |
1,000 |
2,455 |
119.02 |
$292 |
$709 |
|||||
|
2024 |
68,000 |
30,504 |
3,354 |
1,000 |
2,354 |
119.70 |
$282 |
$613 |
|||||
|
2023 |
57,500 |
29,616 |
3,256 |
1,000 |
2,256 |
118.33 |
$267 |
$481 |
|||||
|
2022 |
52,000 |
28,754 |
3,162 |
1,000 |
2,162 |
112.69 |
$244 |
$401 |
|||||
| Property Account Status/Adjustments/Exemptions | ||
|---|---|---|
| Account # | Exemption Description | Amount |
|
R093433540 |
Homestead |
1,000 |
|
R093433540 |
3% Cap Homestead |
0 |
| Property Deed Transaction History (Recorded in the County Clerk's Office) | ||||||||||
|---|---|---|---|---|---|---|---|---|---|---|
| Date | Type | Book | Page | Price | Grantor | Grantee | ||||
|
8/11/2000 |
|
Deeds |
$18,000 |
CASEY VERNA L |
HERNANDEZ MARCELINO |
|||||
|
9/27/1993 |
|
Historical |
$0 |
CASEY VERNA |
HERNANDEZ MARCELINO |
|||||
|
3/1/1991 |
|
Historical |
$0 |
CASEY GAINES M & VERNA L |
CASEY VERNA |
|||||
|
7/9/1990 |
|
Historical |
$0 |
HOLDERBEE DAVID |
CASEY MONROE |
|||||
|
10/4/1989 |
|
Historical |
$0 |
CASEY G M & VERNA |
HOLDERBEE DAVID |
|||||
| Last Mailed Notice of Value (N.O.V.) Information/History | ||||||||
|---|---|---|---|---|---|---|---|---|
| Year | Date | Market Value | Taxable Market Value | Gross Assessed | Exemption | Net Assessed | ||
|
2026 |
02/06/2026 |
84,000 |
32,361 |
3,559 |
1,000 |
2,559 |
||
|
2025 |
01/31/2025 |
76,500 |
31,419 |
3,455 |
1,000 |
2,455 |
||
|
2024 |
01/22/2024 |
68,000 |
30,504 |
3,354 |
1,000 |
2,354 |
||
|
2023 |
01/23/2023 |
57,500 |
29,616 |
3,256 |
1,000 |
2,256 |
||
|
2022 |
02/22/2022 |
52,000 |
28,754 |
3,162 |
1,000 |
2,162 |
||
| Property Building Permit History | |||||||||||
|---|---|---|---|---|---|---|---|---|---|---|---|
| Issued | Permit # | Provided by | Bldg # | Description | Est Construction Cost | Status | |||||
| No Building Permit records returned. | |||||||||||
| Click button on building number to access detailed information: | ||||||
|---|---|---|---|---|---|---|
| Bldg # | Vacant/Improved Land | Bldg Description | Year Built | SqFt | # Stories | |
|
1 |
Improved |
Ranch 1 Story |
1924 |
1,018 |
1 Stories |
|