|
|
|
| Larry Stein Oklahoma County Assessor (405) 713-1200 - Public Access System |
|
|
|
|
|
|
| Real Property Display - Screen Produced 4/3/2026 4:03:52 AM | ||||
|---|---|---|---|---|
| Account: R074150400 | Type: Residential | Location: |
1509 SW 37TH ST |
|
| Building Name/Occupant: |
|
OKLAHOMA CITY |
||
| Owner Name 1: | CEJA SANDRA DEL CARMEN GIL |
Parcel PIN#: |
1667-07-415-0400 |
|
| Owner Name 2: | SANCHEZ GILBERTO CHIQUITO | 1/4 section #: |
1667 |
|
| Owner Name 3: | Parent Acct: |
|
||
| Billing Address: | 1509 SW 37TH ST | Tax District: |
|
|
| City, State, Zip | OKLAHOMA CITY, OK 73119-3818 | School System: |
Oklahoma City #89 |
|
|
Country: (If noted) |
Land Size: |
0.1377 Acres |
||
|
Land Value: 11,700 |
|
|||
|
Sect 17-T11N-R3W Qtr SW |
REDINGS RANCHO VILLAGE
Block
001
Lot
013
|
|||
| Full Legal Description: REDINGS RANCHO VILLAGE 001 013 |
| Photo & Sketch (if available) | Comp Sales (ordered by relevancy) |
|
||||||||||||||||||
|
||||||||||||||||||||
| Value History (*The County Treasurer 405-713-1300 posts & collects actual tax amounts. Contact information HERE) | |||||||||||||
|---|---|---|---|---|---|---|---|---|---|---|---|---|---|
| Year | Market Value | Taxable Mkt Value | Gross Assessed | Exemption | Net Assessed | Millage | Est. Tax | Tax Savings | |||||
| No PropertyValuation records returned. | |||||||||||||
| Property Account Status/Adjustments/Exemptions | ||
|---|---|---|
| Account # | Exemption Description | Amount |
|
R074150400 |
5% Capped Account |
0 |
| Property Deed Transaction History (Recorded in the County Clerk's Office) | ||||||||||
|---|---|---|---|---|---|---|---|---|---|---|
| Date | Type | Book | Page | Price | Grantor | Grantee | ||||
|
12/4/2024 |
|
Deeds |
$58,000 |
KINNEY ENTERPRISES 12 LLC |
CEJA SANDRA DEL CARMEN GIL |
|||||
|
12/11/2020 |
|
Deeds |
$47,500 |
BROTHERTON ROBERT MARK IRREV TRUST |
KINNEY ENTERPRISES 12 LLC |
|||||
|
4/12/2018 |
|
Other |
$0 |
BROTHERTON SHIRLEY E TRS |
BROTHERTON ROBERT MARK IRREV TRUST |
|||||
|
8/8/2014 |
|
Deeds |
$0 |
BROTHERTON SHIRLEY |
BROTHERTON SHIRLEY E TRS |
|||||
|
6/25/2014 |
|
Deeds |
$0 |
BROTHERTON JAMES R |
BROTHERTON SHIRLEY |
|||||
| Last Mailed Notice of Value (N.O.V.) Information/History | ||||||||
|---|---|---|---|---|---|---|---|---|
| Year | Date | Market Value | Taxable Market Value | Gross Assessed | Exemption | Net Assessed | ||
| No Notice of Value N.O.V. records returned. | ||||||||
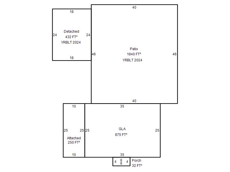
| Property Building Permit History | ||||||
|---|---|---|---|---|---|---|
| Issued | Permit # | Provided by | Bldg # | Description | Est Construction Cost | Status |
|
8/22/2024 |
BLDR-2024-02879 |
|
1 |
Storage Buil |
9,000 |
Inactive |
| Click button on building number to access detailed information: | ||||||
|---|---|---|---|---|---|---|
| Bldg # | Vacant/Improved Land | Bldg Description | Year Built | SqFt | # Stories | |
|
1 |
Improved |
Ranch 1 Story |
1948 |
875 |
1 Stories |
|