|
|
|
| Larry Stein Oklahoma County Assessor (405) 713-1200 - Public Access System |
|
|
|
|
|
|
| Real Property Display - Screen Produced 4/5/2026 11:15:49 PM | ||||
|---|---|---|---|---|
| Account: R200961120 | Type: Residential | Location: |
68 STONEGATE DR |
|
| Building Name/Occupant: |
|
CHOCTAW |
||
| Owner Name 1: | DEAN ARERELL SHARMAYNE |
Parcel PIN#: |
1021-20-096-1120 |
|
| Owner Name 2: | 1/4 section #: |
1021 |
||
| Owner Name 3: | Parent Acct: |
|
||
| Billing Address: | 68 STONEGATE DR | Tax District: |
|
|
| City, State, Zip | CHOCTAW, OK 73020 | School System: |
Choctaw #4 |
|
|
Country: (If noted) |
Land Size: |
1.3400 Acres |
||
|
Land Value: 101,840 |
|
|||
|
Sect 6-T11N-R1E Qtr NE |
STONEGATE CROSSING SEC 1
Block
002
Lot
001
|
|||
| Full Legal Description: STONEGATE CROSSING SEC 1 BLK 002 LOT 001 |
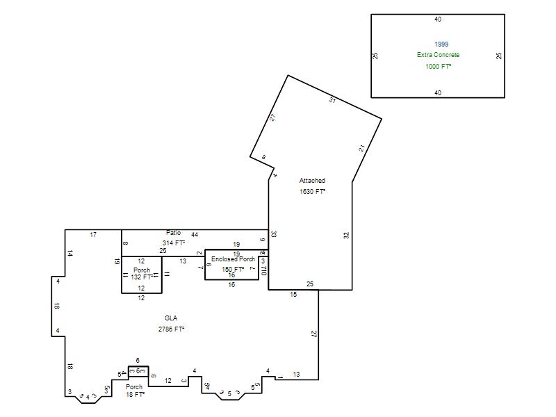
| Photo & Sketch (if available) | Comp Sales (ordered by relevancy) |
|
||||||||||||||||||
|
||||||||||||||||||||
| Value History (*The County Treasurer 405-713-1300 posts & collects actual tax amounts. Contact information HERE) | |||||||||||||
|---|---|---|---|---|---|---|---|---|---|---|---|---|---|
| Year | Market Value | Taxable Mkt Value | Gross Assessed | Exemption | Net Assessed | Millage | Est. Tax | Tax Savings | |||||
|
2026 |
584,000 |
553,661 |
60,902 |
0 |
60,902 |
117.21 |
$7,138 |
$391 |
|||||
|
2025 |
553,000 |
527,297 |
58,002 |
0 |
58,002 |
117.21 |
$6,798 |
$331 |
|||||
|
2024 |
540,000 |
502,188 |
55,240 |
0 |
55,240 |
116.35 |
$6,427 |
$484 |
|||||
|
2023 |
544,500 |
478,275 |
52,610 |
0 |
52,610 |
118.06 |
$6,211 |
$860 |
|||||
|
2022 |
455,500 |
455,500 |
50,105 |
0 |
50,105 |
116.14 |
$5,819 |
$0 |
|||||
| Property Account Status/Adjustments/Exemptions | ||
|---|---|---|
| Account # | Exemption Description | Amount |
|
R200961120 |
5% Capped Account |
0 |
| Property Deed Transaction History (Recorded in the County Clerk's Office) | ||||||||||
|---|---|---|---|---|---|---|---|---|---|---|
| Date | Type | Book | Page | Price | Grantor | Grantee | ||||
|
6/28/2021 |
|
Deeds |
$446,000 |
BRADY MICHAEL D TRS & LIV TRUST |
DEAN ARERELL SHARMAYNE |
|||||
|
8/30/2019 |
|
Deeds |
$390,000 |
WINTERS DAVID W & GAY R |
BRADY MICHAEL D TRS & LIV TRUST |
|||||
|
3/31/2004 |
|
Deeds |
$332,500 |
SIGMAN JIMMY G & SUE ANN |
WINTERS DAVID W & GAY R |
|||||
|
7/29/1999 |
|
Hmstd Off & |
$0 |
SWM & SONS INC |
SIGMAN JIMMY G & SUE ANN |
|||||
|
3/10/1999 |
|
Historical |
$0 |
SWM & SONS INC |
SWM & SONS INC |
|||||
| Last Mailed Notice of Value (N.O.V.) Information/History | ||||||||
|---|---|---|---|---|---|---|---|---|
| Year | Date | Market Value | Taxable Market Value | Gross Assessed | Exemption | Net Assessed | ||
|
2026 |
02/06/2026 |
584,000 |
553,661 |
60,902 |
0 |
60,902 |
||
|
2025 |
01/31/2025 |
553,000 |
527,297 |
58,002 |
0 |
58,002 |
||
|
2024 |
01/22/2024 |
540,000 |
502,188 |
55,240 |
0 |
55,240 |
||
|
2023 |
01/23/2023 |
544,500 |
478,275 |
52,610 |
0 |
52,610 |
||
|
2022 |
02/22/2022 |
455,500 |
455,500 |
50,105 |
0 |
50,105 |
||
| Property Building Permit History | ||||||
|---|---|---|---|---|---|---|
| Issued | Permit # | Provided by | Bldg # | Description | Est Construction Cost | Status |
|
1/27/2000 |
10268330 |
CHOCTAW |
1 |
Main Dwellin |
0 |
Inactive |
|
7/8/1999 |
10268331 |
CHOCTAW |
1 |
Swimming Pool |
0 |
Inactive |
| Click button on building number to access detailed information: | ||||||
|---|---|---|---|---|---|---|
| Bldg # | Vacant/Improved Land | Bldg Description | Year Built | SqFt | # Stories | |
|
1 |
Improved |
Ranch 1 Story |
1999 |
2,786 |
1 Stories |
|