|
|
|
| Larry Stein Oklahoma County Assessor (405) 713-1200 - Public Access System |
|
|
|
|
|
|
| Real Property Display - Screen Produced 4/5/2026 11:18:57 PM | ||||
|---|---|---|---|---|
| Account: R200961170 | Type: Residential | Location: |
16651 COBBLESTONE CIR |
|
| Building Name/Occupant: |
|
CHOCTAW |
||
| Owner Name 1: | RHOADES BILLY D III & KRISTI |
Parcel PIN#: |
1021-20-096-1170 |
|
| Owner Name 2: | 1/4 section #: |
1021 |
||
| Owner Name 3: | Parent Acct: |
|
||
| Billing Address: | 16651 COBBLESTONE CIR | Tax District: |
|
|
| City, State, Zip | CHOCTAW, OK 73020-6953 | School System: |
Choctaw #4 |
|
|
Country: (If noted) |
Land Size: |
1.2100 Acres |
||
|
Land Value: 91,960 |
|
|||
|
Sect 6-T11N-R1E Qtr NE |
STONEGATE CROSSING SEC 1
Block
002
Lot
006
|
|||
| Full Legal Description: STONEGATE CROSSING SEC 1 BLK 002 LOT 006 |
| Photo & Sketch (if available) | Comp Sales (ordered by relevancy) |
|
||||||||||||||||||
|
||||||||||||||||||||
| Value History (*The County Treasurer 405-713-1300 posts & collects actual tax amounts. Contact information HERE) | |||||||||||||
|---|---|---|---|---|---|---|---|---|---|---|---|---|---|
| Year | Market Value | Taxable Mkt Value | Gross Assessed | Exemption | Net Assessed | Millage | Est. Tax | Tax Savings | |||||
|
2026 |
484,000 |
369,193 |
40,610 |
0 |
40,610 |
117.21 |
$4,760 |
$1,480 |
|||||
|
2025 |
463,500 |
351,613 |
38,676 |
0 |
38,676 |
117.21 |
$4,533 |
$1,443 |
|||||
|
2024 |
447,500 |
334,870 |
36,835 |
0 |
36,835 |
116.35 |
$4,286 |
$1,441 |
|||||
|
2023 |
443,000 |
318,924 |
35,081 |
0 |
35,081 |
118.06 |
$4,142 |
$1,611 |
|||||
|
2022 |
331,000 |
303,738 |
33,411 |
0 |
33,411 |
116.14 |
$3,880 |
$348 |
|||||
| Property Account Status/Adjustments/Exemptions | ||
|---|---|---|
| Account # | Exemption Description | Amount |
|
R200961170 |
5% Capped Account |
0 |
| Property Deed Transaction History (Recorded in the County Clerk's Office) | |||||||
|---|---|---|---|---|---|---|---|
| Date | Type | Book | Page | Price | Grantor | Grantee | |
|
6/30/2006 |
|
Deeds |
$228,000 |
HAMLIN MICHAEL D & RHONDA K |
RHOADES BILLY D III & KRISTI |
||
|
7/16/2003 |
|
Hmstd Off & |
$0 |
HAMLIN MICHAEL D & RHONDA K JEFF MOORE HOMES INC |
HAMLIN MICHAEL D & RHONDA K |
||
|
12/13/2002 |
|
Deeds |
$26,000 |
ROYALE DEVELOPERS LLC |
HAMLIN MICHAEL D & RHONDA K JEFF MOORE HOMES INC |
||
|
8/21/1998 |
|
Historical |
$0 |
|
ROYALE DEVELOPERS LLC |
||
| Last Mailed Notice of Value (N.O.V.) Information/History | ||||||||
|---|---|---|---|---|---|---|---|---|
| Year | Date | Market Value | Taxable Market Value | Gross Assessed | Exemption | Net Assessed | ||
|
2026 |
02/06/2026 |
484,000 |
369,193 |
40,610 |
0 |
40,610 |
||
|
2025 |
01/31/2025 |
463,500 |
351,613 |
38,676 |
0 |
38,676 |
||
|
2024 |
01/22/2024 |
447,500 |
334,870 |
36,835 |
0 |
36,835 |
||
|
2023 |
01/23/2023 |
443,000 |
318,924 |
35,081 |
0 |
35,081 |
||
|
2022 |
02/22/2022 |
331,000 |
303,738 |
33,411 |
0 |
33,411 |
||
| Property Building Permit History | ||||||
|---|---|---|---|---|---|---|
| Issued | Permit # | Provided by | Bldg # | Description | Est Construction Cost | Status |
|
12/27/2002 |
10268341 |
CHOCTAW |
1 |
Main Dwellin |
165,000 |
Inactive |
| Click button on building number to access detailed information: | ||||||
|---|---|---|---|---|---|---|
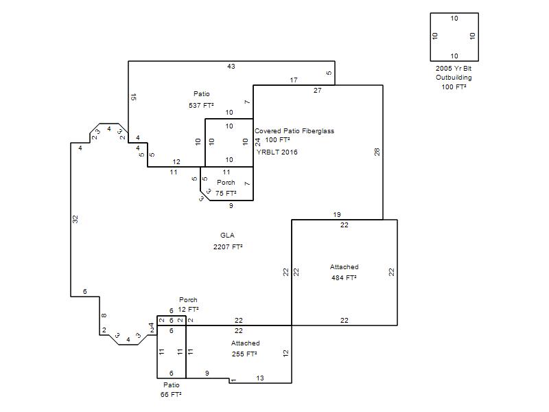
| Bldg # | Vacant/Improved Land | Bldg Description | Year Built | SqFt | # Stories | |
|
1 |
Improved |
Ranch 1 Story |
2003 |
2,207 |
1 Stories |
|