|
|
|
| Larry Stein Oklahoma County Assessor (405) 713-1200 - Public Access System |
|
|
|
|
|
|
| Real Property Display - Screen Produced 4/3/2026 6:01:38 AM | ||||
|---|---|---|---|---|
| Account: R123971260 | Type: Residential | Location: |
10508 HONEYSUCKLE LN |
|
| Building Name/Occupant: |
|
MIDWEST CITY |
||
| Owner Name 1: | DAMICO JOHN JR & ANITA KAY CO TRS |
Parcel PIN#: |
1225-12-397-1260 |
|
| Owner Name 2: | DAMICO JOHN JR & ANITA KAY REV TRUST | 1/4 section #: |
1225 |
|
| Owner Name 3: | Parent Acct: |
|
||
| Billing Address: | 10508 HONEYSUCKLE LN | Tax District: |
|
|
| City, State, Zip | MIDWEST CITY, OK 73130-7007 | School System: |
Choctaw #4 |
|
|
Country: (If noted) |
Land Size: |
0.1848 Acres |
||
|
Land Value: 42,665 |
|
|||
|
Sect 7-T11N-R1W Qtr NE |
WINDSONG TO MWC
Block
003
Lot
006
|
|||
| Full Legal Description: WINDSONG TO MWC 003 006 |
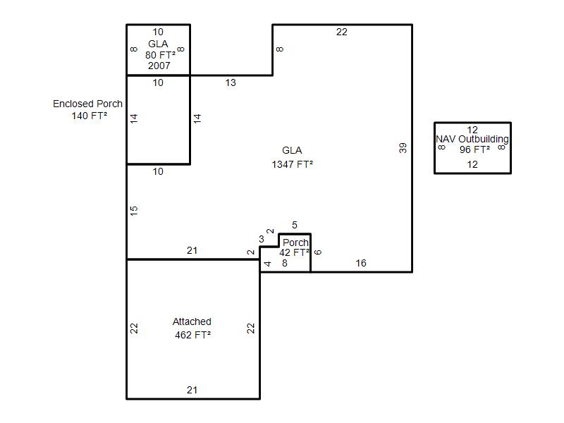
| Photo & Sketch (if available) | Comp Sales (ordered by relevancy) |
|
||||||||||||||||||
|
||||||||||||||||||||
| Value History (*The County Treasurer 405-713-1300 posts & collects actual tax amounts. Contact information HERE) | |||||||||||||
|---|---|---|---|---|---|---|---|---|---|---|---|---|---|
| Year | Market Value | Taxable Mkt Value | Gross Assessed | Exemption | Net Assessed | Millage | Est. Tax | Tax Savings | |||||
|
2026 |
209,500 |
142,140 |
15,635 |
1,000 |
14,635 |
127.03 |
$1,859 |
$1,068 |
|||||
|
2025 |
210,000 |
142,140 |
15,635 |
1,000 |
14,635 |
127.03 |
$1,859 |
$1,075 |
|||||
|
2024 |
203,500 |
142,140 |
15,635 |
1,000 |
14,635 |
127.00 |
$1,859 |
$984 |
|||||
|
2023 |
194,000 |
142,140 |
15,635 |
1,000 |
14,635 |
128.50 |
$1,881 |
$862 |
|||||
|
2022 |
170,500 |
142,140 |
15,635 |
1,000 |
14,635 |
127.22 |
$1,862 |
$524 |
|||||
| Property Account Status/Adjustments/Exemptions | ||
|---|---|---|
| Account # | Exemption Description | Amount |
|
R123971260 |
Freeze Senior Valuation |
0 |
|
R123971260 |
Homestead |
1,000 |
|
R123971260 |
3% Cap Homestead |
0 |
| Property Deed Transaction History (Recorded in the County Clerk's Office) | |||||||
|---|---|---|---|---|---|---|---|
| Date | Type | Book | Page | Price | Grantor | Grantee | |
|
1/1/2013 |
|
Deeds |
$0 |
DAMICO ANITA KAY & JOHN JR |
DAMICO JOHN JR & ANITA KAY CO TRS |
||
|
11/23/1994 |
|
Historical |
$73,500 |
ROBERTSON BILLY GENE |
DAMICO ANITA KAY & JOHN JR |
||
|
7/21/1993 |
|
Historical |
$0 |
ROBERTSON BILLY GENE |
ROBERTSON BILLY GENE |
||
|
4/1/1986 |
|
Historical |
$73,000 |
|
ROBERTSON BILLY GENE |
||
| Last Mailed Notice of Value (N.O.V.) Information/History | ||||||||
|---|---|---|---|---|---|---|---|---|
| Year | Date | Market Value | Taxable Market Value | Gross Assessed | Exemption | Net Assessed | ||
|
2025 |
01/31/2025 |
210,000 |
142,140 |
15,635 |
1,000 |
14,635 |
||
|
2024 |
01/22/2024 |
203,500 |
142,140 |
15,635 |
1,000 |
14,635 |
||
|
2023 |
01/23/2023 |
194,000 |
142,140 |
15,635 |
1,000 |
14,635 |
||
|
2022 |
02/22/2022 |
170,500 |
142,140 |
15,635 |
1,000 |
14,635 |
||
|
2021 |
02/24/2021 |
150,000 |
142,140 |
15,635 |
1,000 |
14,635 |
||
| Property Building Permit History | |||||||||||
|---|---|---|---|---|---|---|---|---|---|---|---|
| Issued | Permit # | Provided by | Bldg # | Description | Est Construction Cost | Status | |||||
| No Building Permit records returned. | |||||||||||
| Click button on building number to access detailed information: | ||||||
|---|---|---|---|---|---|---|
| Bldg # | Vacant/Improved Land | Bldg Description | Year Built | SqFt | # Stories | |
|
1 |
Improved |
Ranch 1 Story |
1985 |
1,427 |
1 Stories |
|