|
|
|
| Larry Stein Oklahoma County Assessor (405) 713-1200 - Public Access System |
|
|
|
|
|
|
| Real Property Display - Screen Produced 4/8/2026 7:26:44 AM | ||||
|---|---|---|---|---|
| Account: R074531085 | Type: Residential | Location: |
2109 SW 63RD ST |
|
| Building Name/Occupant: |
|
OKLAHOMA CITY |
||
| Owner Name 1: | S W REAL ESTATE LLC |
Parcel PIN#: |
1717-07-453-1085 |
|
| Owner Name 2: | 1/4 section #: |
1717 |
||
| Owner Name 3: | C/O DON WILKERSON | Parent Acct: |
|
|
| Billing Address: | 2405 SW 139TH ST | Tax District: |
|
|
| City, State, Zip | OKLAHOMA CITY, OK 73170 | School System: |
Oklahoma City #89 |
|
|
Country: (If noted) |
Land Size: |
0.1639 Acres |
||
|
Land Value: 21,777 |
|
|||
|
Sect 30-T11N-R3W Qtr NE |
HILLCREST HEIGHTS 5TH ADD
Block
010
Lot
020
|
|||
| Full Legal Description: HILLCREST HEIGHTS 5TH ADD 010 020 |
| Photo & Sketch (if available) | Comp Sales (ordered by relevancy) |
|
||||||||||||||||||
|
||||||||||||||||||||
| Value History (*The County Treasurer 405-713-1300 posts & collects actual tax amounts. Contact information HERE) | |||||||||||||
|---|---|---|---|---|---|---|---|---|---|---|---|---|---|
| Year | Market Value | Taxable Mkt Value | Gross Assessed | Exemption | Net Assessed | Millage | Est. Tax | Tax Savings | |||||
|
2026 |
116,000 |
90,453 |
9,949 |
0 |
9,949 |
119.02 |
$1,184 |
$334 |
|||||
|
2025 |
113,500 |
86,146 |
9,475 |
0 |
9,475 |
119.02 |
$1,128 |
$358 |
|||||
|
2024 |
104,500 |
82,044 |
9,024 |
0 |
9,024 |
119.70 |
$1,080 |
$296 |
|||||
|
2023 |
96,000 |
78,138 |
8,594 |
0 |
8,594 |
118.33 |
$1,017 |
$232 |
|||||
|
2022 |
85,500 |
74,418 |
8,185 |
0 |
8,185 |
112.69 |
$922 |
$137 |
|||||
| Property Account Status/Adjustments/Exemptions | ||
|---|---|---|
| Account # | Exemption Description | Amount |
|
R074531085 |
5% Capped Account |
0 |
| Property Deed Transaction History (Recorded in the County Clerk's Office) | |||||||
|---|---|---|---|---|---|---|---|
| Date | Type | Book | Page | Price | Grantor | Grantee | |
|
7/14/2006 |
|
Hmstd Off & |
$0 |
WILKERSON DON L |
S W REAL ESTATE LLC |
||
|
11/15/2002 |
|
|
$0 |
WILKERSON DON L |
S W REAL ESTATE LLC |
||
|
8/17/1999 |
|
Deeds |
$35,500 |
ZUMWALT COY EUGENE JR |
WILKERSON DON L |
||
|
4/22/1994 |
|
Historical |
$31,500 |
MCMANAMAN MARY F |
ZUMWALT COY EUGENE JR |
||
|
8/1/1980 |
|
Historical |
$0 |
|
MCMANAMAN MARY F |
||
| Last Mailed Notice of Value (N.O.V.) Information/History | ||||||||
|---|---|---|---|---|---|---|---|---|
| Year | Date | Market Value | Taxable Market Value | Gross Assessed | Exemption | Net Assessed | ||
|
2026 |
02/06/2026 |
116,000 |
90,453 |
9,949 |
0 |
9,949 |
||
|
2025 |
01/31/2025 |
113,500 |
86,146 |
9,475 |
0 |
9,475 |
||
|
2024 |
01/22/2024 |
104,500 |
82,044 |
9,024 |
0 |
9,024 |
||
|
2023 |
01/23/2023 |
96,000 |
78,138 |
8,594 |
0 |
8,594 |
||
|
2022 |
02/22/2022 |
85,500 |
74,418 |
8,185 |
0 |
8,185 |
||
| Property Building Permit History | |||||||||||
|---|---|---|---|---|---|---|---|---|---|---|---|
| Issued | Permit # | Provided by | Bldg # | Description | Est Construction Cost | Status | |||||
| No Building Permit records returned. | |||||||||||
| Click button on building number to access detailed information: | ||||||
|---|---|---|---|---|---|---|
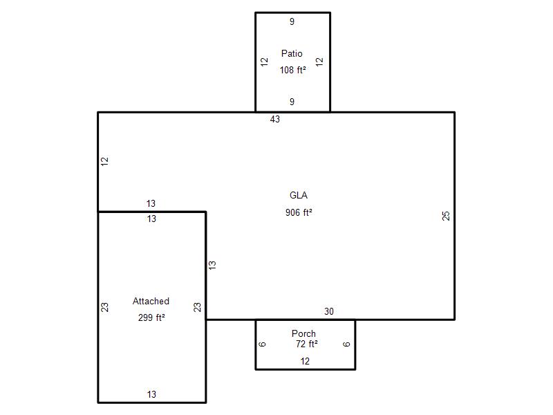
| Bldg # | Vacant/Improved Land | Bldg Description | Year Built | SqFt | # Stories | |
|
1 |
Improved |
Ranch 1 Story |
1954 |
906 |
1 Stories |
|