|
|
|
| Larry Stein Oklahoma County Assessor (405) 713-1200 - Public Access System |
|
|
|
|
|
|
| Real Property Display - Screen Produced 4/8/2026 7:26:45 AM | ||||
|---|---|---|---|---|
| Account: R074531115 | Type: Residential | Location: |
2100 SW 63RD ST |
|
| Building Name/Occupant: |
|
OKLAHOMA CITY |
||
| Owner Name 1: | VALENCIA ROBERTO ZAMBRANO |
Parcel PIN#: |
1717-07-453-1115 |
|
| Owner Name 2: | 1/4 section #: |
1717 |
||
| Owner Name 3: | Parent Acct: |
|
||
| Billing Address: | 2100 SW 63RD ST | Tax District: |
|
|
| City, State, Zip | OKLAHOMA CITY, OK 73159 | School System: |
Oklahoma City #89 |
|
|
Country: (If noted) |
Land Size: |
0.1765 Acres |
||
|
Land Value: 23,442 |
|
|||
|
Sect 30-T11N-R3W Qtr NE |
HILLCREST HEIGHTS 5TH ADD
Block
014
Lot
001
|
|||
| Full Legal Description: HILLCREST HEIGHTS 5TH ADD 014 001 |
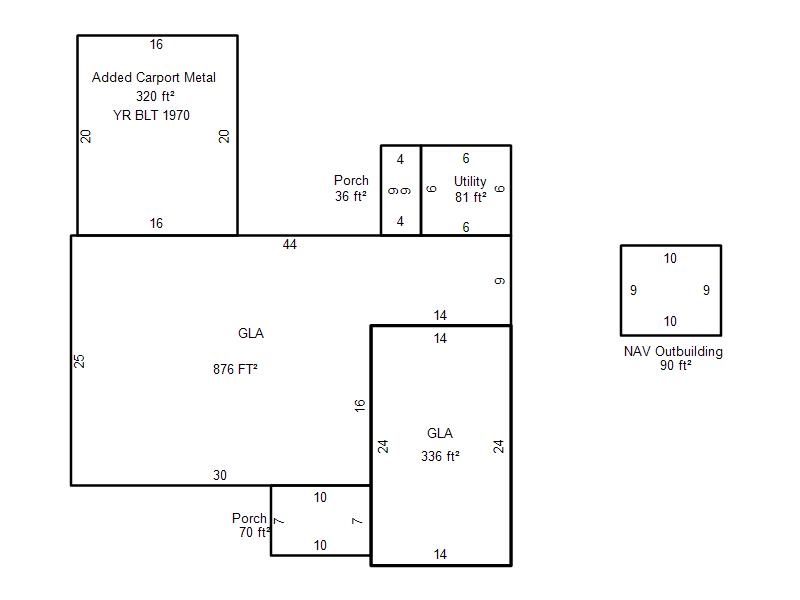
| Photo & Sketch (if available) | Comp Sales (ordered by relevancy) |
|
||||||||||||||||||
|
||||||||||||||||||||
| Value History (*The County Treasurer 405-713-1300 posts & collects actual tax amounts. Contact information HERE) | |||||||||||||
|---|---|---|---|---|---|---|---|---|---|---|---|---|---|
| Year | Market Value | Taxable Mkt Value | Gross Assessed | Exemption | Net Assessed | Millage | Est. Tax | Tax Savings | |||||
|
2026 |
133,500 |
95,143 |
10,465 |
0 |
10,465 |
119.02 |
$1,246 |
$502 |
|||||
|
2025 |
132,500 |
90,613 |
9,966 |
0 |
9,966 |
119.02 |
$1,186 |
$548 |
|||||
|
2024 |
123,500 |
86,299 |
9,492 |
0 |
9,492 |
119.70 |
$1,136 |
$490 |
|||||
|
2023 |
110,500 |
82,190 |
9,040 |
0 |
9,040 |
118.33 |
$1,070 |
$368 |
|||||
|
2022 |
92,500 |
78,277 |
8,610 |
0 |
8,610 |
112.69 |
$970 |
$176 |
|||||
| Property Account Status/Adjustments/Exemptions | ||
|---|---|---|
| Account # | Exemption Description | Amount |
|
R074531115 |
5% Capped Account |
0 |
| Property Deed Transaction History (Recorded in the County Clerk's Office) | |||||||
|---|---|---|---|---|---|---|---|
| Date | Type | Book | Page | Price | Grantor | Grantee | |
|
9/18/2020 |
|
Hmstd Off & |
$0 |
ZAMBRANO BELINDA |
VALENCIA ROBERTO ZAMBRANO |
||
|
7/29/2011 |
|
Deeds |
$62,000 |
MORGAN GRACE E |
ZAMBRANO BELINDA |
||
|
7/27/2011 |
|
Hmstd Off & |
$0 |
MITCHELL EDITH F MORGAN GRACE E |
MORGAN GRACE E |
||
|
12/1/1978 |
|
Historical |
$0 |
|
MITCHELL EDITH F |
||
| Last Mailed Notice of Value (N.O.V.) Information/History | ||||||||
|---|---|---|---|---|---|---|---|---|
| Year | Date | Market Value | Taxable Market Value | Gross Assessed | Exemption | Net Assessed | ||
|
2026 |
02/06/2026 |
133,500 |
95,143 |
10,465 |
0 |
10,465 |
||
|
2025 |
01/31/2025 |
132,500 |
90,613 |
9,966 |
0 |
9,966 |
||
|
2024 |
01/22/2024 |
123,500 |
86,299 |
9,492 |
0 |
9,492 |
||
|
2023 |
01/23/2023 |
110,500 |
82,190 |
9,040 |
0 |
9,040 |
||
|
2022 |
02/22/2022 |
92,500 |
78,277 |
8,610 |
0 |
8,610 |
||
| Property Building Permit History | |||||||||||
|---|---|---|---|---|---|---|---|---|---|---|---|
| Issued | Permit # | Provided by | Bldg # | Description | Est Construction Cost | Status | |||||
| No Building Permit records returned. | |||||||||||
| Click button on building number to access detailed information: | ||||||
|---|---|---|---|---|---|---|
| Bldg # | Vacant/Improved Land | Bldg Description | Year Built | SqFt | # Stories | |
|
1 |
Improved |
Ranch 1 Story |
1954 |
1,212 |
1 Stories |
|