|
|
|
| Larry Stein Oklahoma County Assessor (405) 713-1200 - Public Access System |
|
|
|
|
|
|
| Real Property Display - Screen Produced 4/8/2026 7:26:44 AM | ||||
|---|---|---|---|---|
| Account: R074531265 | Type: Residential | Location: |
2121 SW 64TH ST |
|
| Building Name/Occupant: |
|
OKLAHOMA CITY |
||
| Owner Name 1: | LEIRD DONNA E |
Parcel PIN#: |
1717-07-453-1265 |
|
| Owner Name 2: | 1/4 section #: |
1717 |
||
| Owner Name 3: | Parent Acct: |
|
||
| Billing Address: | 2121 SW 64TH ST | Tax District: |
|
|
| City, State, Zip | OKLAHOMA CITY, OK 73159-2917 | School System: |
Oklahoma City #89 |
|
|
Country: (If noted) |
Land Size: |
0.2273 Acres |
||
|
Land Value: 30,195 |
|
|||
|
Sect 30-T11N-R3W Qtr NE |
HILLCREST HEIGHTS 5TH ADD
Block
014
Lot
016
|
|||
| Full Legal Description: HILLCREST HEIGHTS 5TH ADD 014 016 |
| Photo & Sketch (if available) | Comp Sales (ordered by relevancy) |
|
||||||||||||||||||
|
||||||||||||||||||||
| Value History (*The County Treasurer 405-713-1300 posts & collects actual tax amounts. Contact information HERE) | |||||||||||||
|---|---|---|---|---|---|---|---|---|---|---|---|---|---|
| Year | Market Value | Taxable Mkt Value | Gross Assessed | Exemption | Net Assessed | Millage | Est. Tax | Tax Savings | |||||
|
2026 |
149,500 |
109,254 |
12,017 |
1,000 |
11,017 |
119.02 |
$1,311 |
$646 |
|||||
|
2025 |
144,500 |
106,072 |
11,667 |
1,000 |
10,667 |
119.02 |
$1,270 |
$622 |
|||||
|
2024 |
137,500 |
102,983 |
11,327 |
1,000 |
10,327 |
119.70 |
$1,236 |
$574 |
|||||
|
2023 |
128,000 |
99,984 |
10,997 |
1,000 |
9,997 |
118.33 |
$1,183 |
$483 |
|||||
|
2022 |
114,500 |
97,072 |
10,676 |
1,000 |
9,676 |
112.69 |
$1,091 |
$329 |
|||||
| Property Account Status/Adjustments/Exemptions | ||
|---|---|---|
| Account # | Exemption Description | Amount |
|
R074531265 |
3% Cap Homestead |
0 |
|
R074531265 |
Homestead |
1,000 |
| Property Deed Transaction History (Recorded in the County Clerk's Office) | |||||||
|---|---|---|---|---|---|---|---|
| Date | Type | Book | Page | Price | Grantor | Grantee | |
|
11/30/1998 |
|
Historical |
$60,000 |
JUSTICE DONALD & ROBBIENELLE |
LEIRD DONNA E |
||
|
11/15/1995 |
|
Historical |
$0 |
JUSTICE DAVE W & D |
JUSTICE DONALD & ROBBIENELLE |
||
|
11/11/1911 |
|
Historical |
$0 |
|
JUSTICE DAVE W & D |
||
| Last Mailed Notice of Value (N.O.V.) Information/History | ||||||||
|---|---|---|---|---|---|---|---|---|
| Year | Date | Market Value | Taxable Market Value | Gross Assessed | Exemption | Net Assessed | ||
|
2026 |
02/06/2026 |
149,500 |
109,254 |
12,017 |
1,000 |
11,017 |
||
|
2025 |
01/31/2025 |
144,500 |
106,072 |
11,667 |
1,000 |
10,667 |
||
|
2024 |
01/22/2024 |
137,500 |
102,983 |
11,327 |
1,000 |
10,327 |
||
|
2023 |
01/23/2023 |
128,000 |
99,984 |
10,997 |
1,000 |
9,997 |
||
|
2022 |
02/22/2022 |
114,500 |
97,072 |
10,676 |
1,000 |
9,676 |
||
| Property Building Permit History | |||||||||||
|---|---|---|---|---|---|---|---|---|---|---|---|
| Issued | Permit # | Provided by | Bldg # | Description | Est Construction Cost | Status | |||||
| No Building Permit records returned. | |||||||||||
| Click button on building number to access detailed information: | ||||||
|---|---|---|---|---|---|---|
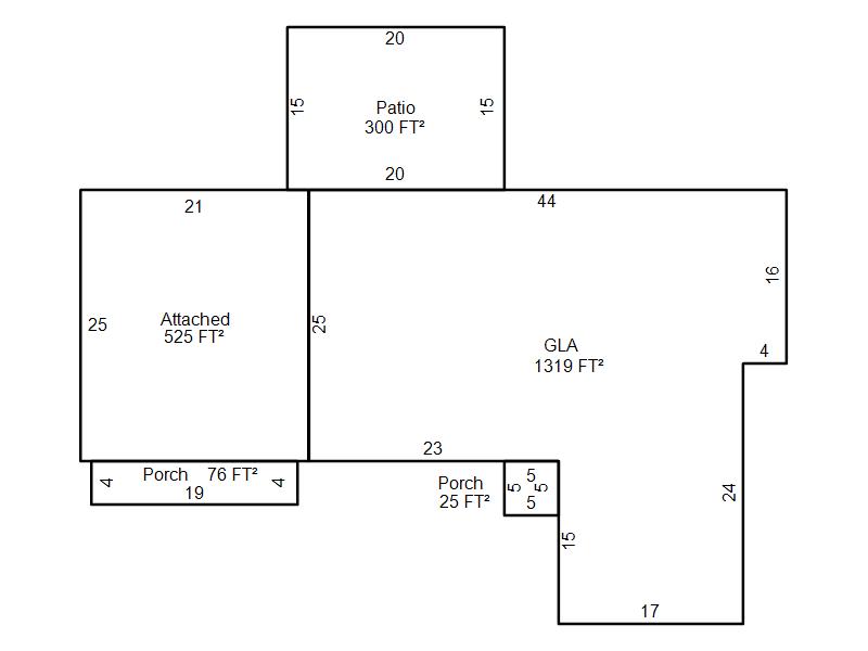
| Bldg # | Vacant/Improved Land | Bldg Description | Year Built | SqFt | # Stories | |
|
1 |
Improved |
Ranch 1 Story |
1955 |
1,319 |
1 Stories |
|