|
|
|
| Larry Stein Oklahoma County Assessor (405) 713-1200 - Public Access System |
|
|
|
|
|
|
| Real Property Display - Screen Produced 4/8/2026 7:26:45 AM | ||||
|---|---|---|---|---|
| Account: R074531505 | Type: Residential | Location: |
2105 SW 65TH ST |
|
| Building Name/Occupant: |
|
OKLAHOMA CITY |
||
| Owner Name 1: | SERVIN JOSE CRUZ OLVERA TRS |
Parcel PIN#: |
1717-07-453-1505 |
|
| Owner Name 2: | SMITH ANGELA M TRS | 1/4 section #: |
1717 |
|
| Owner Name 3: | OLVERA SERVIN FAMILY TRUST | Parent Acct: |
|
|
| Billing Address: | 2105 SW 65TH ST | Tax District: |
|
|
| City, State, Zip | OKLAHOMA CITY, OK 73159-2921 | School System: |
Oklahoma City #89 |
|
|
Country: (If noted) |
Land Size: |
0.1791 Acres |
||
|
Land Value: 23,790 |
|
|||
|
Sect 30-T11N-R3W Qtr NE |
HILLCREST HEIGHTS 5TH ADD
Block
015
Lot
019
|
|||
| Full Legal Description: HILLCREST HEIGHTS 5TH ADD 015 019 |
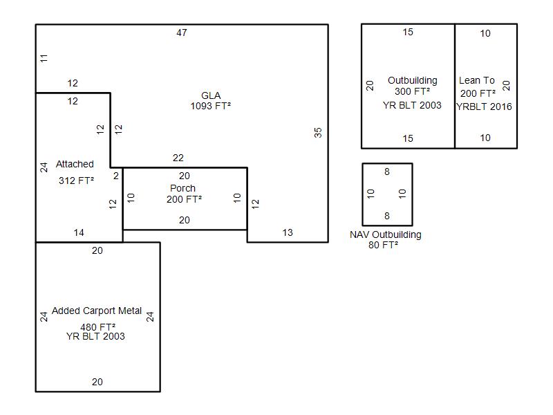
| Photo & Sketch (if available) | Comp Sales (ordered by relevancy) |
|
||||||||||||||||||
|
||||||||||||||||||||
| Value History (*The County Treasurer 405-713-1300 posts & collects actual tax amounts. Contact information HERE) | |||||||||||||
|---|---|---|---|---|---|---|---|---|---|---|---|---|---|
| Year | Market Value | Taxable Mkt Value | Gross Assessed | Exemption | Net Assessed | Millage | Est. Tax | Tax Savings | |||||
|
2026 |
130,500 |
92,536 |
10,178 |
1,000 |
9,178 |
119.02 |
$1,092 |
$616 |
|||||
|
2025 |
128,500 |
89,841 |
9,881 |
1,000 |
8,881 |
119.02 |
$1,057 |
$625 |
|||||
|
2024 |
118,000 |
87,225 |
9,594 |
1,000 |
8,594 |
119.70 |
$1,029 |
$525 |
|||||
|
2023 |
110,500 |
84,685 |
9,315 |
1,000 |
8,315 |
118.33 |
$984 |
$454 |
|||||
|
2022 |
98,000 |
82,219 |
9,043 |
1,000 |
8,043 |
112.69 |
$906 |
$308 |
|||||
| Property Account Status/Adjustments/Exemptions | ||
|---|---|---|
| Account # | Exemption Description | Amount |
|
R074531505 |
3% Cap Homestead |
0 |
|
R074531505 |
Homestead |
1,000 |
| Property Deed Transaction History (Recorded in the County Clerk's Office) | |||||||
|---|---|---|---|---|---|---|---|
| Date | Type | Book | Page | Price | Grantor | Grantee | |
|
1/17/2011 |
|
Deeds |
$0 |
SERVIN JOSE CRUZ OLVERA SMITH ANGELA |
SERVIN JOSE CRUZ OLVERA TRS |
||
|
4/17/1998 |
|
Historical |
$48,000 |
YOUNG DAVID E & NANCY D |
SERVIN JOSE CRUZ OLVERA |
||
|
12/29/1997 |
|
Historical |
$43,000 |
STANDARD MITCH |
YOUNG DAVID E & NANCY D |
||
|
9/12/1997 |
|
Historical |
$46,000 |
BRYANT BRENDA GAIL |
STANDARD MITCH |
||
|
6/1/1982 |
|
Historical |
$0 |
|
BRYANT BRENDA GAIL |
||
| Last Mailed Notice of Value (N.O.V.) Information/History | ||||||||
|---|---|---|---|---|---|---|---|---|
| Year | Date | Market Value | Taxable Market Value | Gross Assessed | Exemption | Net Assessed | ||
|
2026 |
02/06/2026 |
130,500 |
92,536 |
10,178 |
1,000 |
9,178 |
||
|
2025 |
01/31/2025 |
128,500 |
89,841 |
9,881 |
1,000 |
8,881 |
||
|
2024 |
01/22/2024 |
118,000 |
87,225 |
9,594 |
1,000 |
8,594 |
||
|
2023 |
01/23/2023 |
110,500 |
84,685 |
9,315 |
1,000 |
8,315 |
||
|
2022 |
02/22/2022 |
98,000 |
82,219 |
9,043 |
1,000 |
8,043 |
||
| Property Building Permit History | ||||||
|---|---|---|---|---|---|---|
| Issued | Permit # | Provided by | Bldg # | Description | Est Construction Cost | Status |
|
7/17/2015 |
10475289 |
OKLAHOMA CITY |
1 |
Main Dwellin |
234,990 |
Inactive |
|
7/17/2015 |
10475288 |
OKLAHOMA CITY |
1 |
Remodeled |
1,500 |
Inactive |
|
11/25/2002 |
10196644 |
OKLAHOMA CITY |
1 |
Storage Buil |
2,800 |
Inactive |
| Click button on building number to access detailed information: | ||||||
|---|---|---|---|---|---|---|
| Bldg # | Vacant/Improved Land | Bldg Description | Year Built | SqFt | # Stories | |
|
1 |
Improved |
Ranch 1 Story |
1954 |
1,093 |
1 Stories |
|