|
|
|
| Larry Stein Oklahoma County Assessor (405) 713-1200 - Public Access System |
|
|
|
|
|
|
| Real Property Display - Screen Produced 4/1/2026 7:12:15 PM | ||||
|---|---|---|---|---|
| Account: R113621215 | Type: Residential | Location: |
2701 SW 68TH ST |
|
| Building Name/Occupant: |
|
OKLAHOMA CITY |
||
| Owner Name 1: | PRAIRIE PROPERTY SOLUTIONS LLC |
Parcel PIN#: |
1719-11-362-1215 |
|
| Owner Name 2: | 1/4 section #: |
1719 |
||
| Owner Name 3: | Parent Acct: |
|
||
| Billing Address: | PO BOX 515 | Tax District: |
|
|
| City, State, Zip | OKLAHOMA CITY, OK 73101 | School System: |
Oklahoma City #89 |
|
|
Country: (If noted) |
Land Size: |
0.1661 Acres |
||
|
Land Value: 26,773 |
|
|||
|
Sect 30-T11N-R3W Qtr SW |
MADOLES COUNTRY ESTATE 2ND
Block
004
Lot
001
|
|||
| Full Legal Description: MADOLES COUNTRY ESTATE 2ND 004 001 |
| Photo & Sketch (if available) | Comp Sales (ordered by relevancy) |
|
||||||||||||||||||
|
||||||||||||||||||||
| Value History (*The County Treasurer 405-713-1300 posts & collects actual tax amounts. Contact information HERE) | |||||||||||||
|---|---|---|---|---|---|---|---|---|---|---|---|---|---|
| Year | Market Value | Taxable Mkt Value | Gross Assessed | Exemption | Net Assessed | Millage | Est. Tax | Tax Savings | |||||
|
2026 |
137,500 |
137,500 |
15,125 |
0 |
15,125 |
119.02 |
$1,800 |
$0 |
|||||
|
2025 |
141,000 |
131,197 |
14,431 |
0 |
14,431 |
119.02 |
$1,718 |
$128 |
|||||
|
2024 |
134,000 |
124,950 |
13,744 |
0 |
13,744 |
119.70 |
$1,645 |
$119 |
|||||
|
2023 |
119,000 |
119,000 |
13,090 |
0 |
13,090 |
118.33 |
$1,549 |
$0 |
|||||
|
2022 |
108,000 |
88,200 |
9,702 |
0 |
9,702 |
112.69 |
$1,093 |
$245 |
|||||
| Property Account Status/Adjustments/Exemptions | ||
|---|---|---|
| Account # | Exemption Description | Amount |
|
R113621215 |
5% Capped Account |
0 |
| Property Deed Transaction History (Recorded in the County Clerk's Office) | ||||||||||
|---|---|---|---|---|---|---|---|---|---|---|
| Date | Type | Book | Page | Price | Grantor | Grantee | ||||
|
11/3/2022 |
|
Mult Parcel |
$1,020,500 |
LEGACY INVESTMENT HOLDINGS LLC |
PRAIRIE PROPERTY SOLUTIONS LLC |
|||||
|
8/16/2022 |
|
Mult Parcel |
$910,000 |
DOUBLEH LLC |
LEGACY INVESTMENT HOLDINGS LLC |
|||||
|
8/10/2017 |
|
Mult Parcel |
$251,000 |
CLH2 LLC |
DOUBLEH LLC |
|||||
|
5/9/2016 |
|
Deeds |
$44,000 |
WAZZAN PROPERTIES LLC |
CLH2 LLC |
|||||
|
5/5/2016 |
|
Deeds |
$38,000 |
GRISSOM GENA RAE |
WAZZAN PROPERTIES LLC |
|||||
| Last Mailed Notice of Value (N.O.V.) Information/History | ||||||||
|---|---|---|---|---|---|---|---|---|
| Year | Date | Market Value | Taxable Market Value | Gross Assessed | Exemption | Net Assessed | ||
|
2026 |
02/06/2026 |
137,500 |
137,500 |
15,125 |
0 |
15,125 |
||
|
2025 |
01/31/2025 |
141,000 |
131,197 |
14,431 |
0 |
14,431 |
||
|
2024 |
01/22/2024 |
134,000 |
124,950 |
13,744 |
0 |
13,744 |
||
|
2023 |
01/23/2023 |
119,000 |
119,000 |
13,090 |
0 |
13,090 |
||
|
2022 |
02/22/2022 |
108,000 |
88,200 |
9,702 |
0 |
9,702 |
||
| Property Building Permit History | |||||||||||
|---|---|---|---|---|---|---|---|---|---|---|---|
| Issued | Permit # | Provided by | Bldg # | Description | Est Construction Cost | Status | |||||
| No Building Permit records returned. | |||||||||||
| Click button on building number to access detailed information: | ||||||
|---|---|---|---|---|---|---|
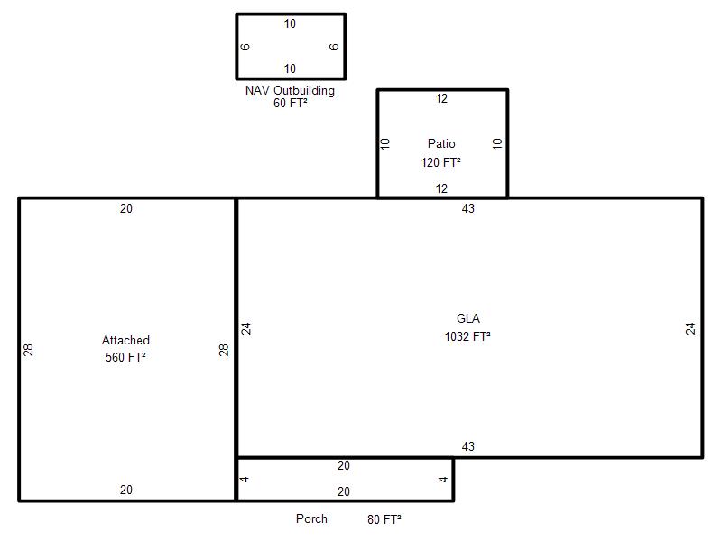
| Bldg # | Vacant/Improved Land | Bldg Description | Year Built | SqFt | # Stories | |
|
1 |
Improved |
Ranch 1 Story |
1963 |
1,032 |
1 Stories |
|