|
|
|
| Larry Stein Oklahoma County Assessor (405) 713-1200 - Public Access System |
|
|
|
|
|
|
| Real Property Display - Screen Produced 4/5/2026 11:16:53 PM | ||||
|---|---|---|---|---|
| Account: R200961020 | Type: Residential | Location: |
16401 COBBLESTONE CIR |
|
| Building Name/Occupant: |
|
CHOCTAW |
||
| Owner Name 1: | SIMMONS BUDDY L & ANITA G |
Parcel PIN#: |
1024-20-096-1020 |
|
| Owner Name 2: | 1/4 section #: |
1024 |
||
| Owner Name 3: | Parent Acct: |
|
||
| Billing Address: | 16401 COBBLESTONE CIR | Tax District: |
|
|
| City, State, Zip | CHOCTAW, OK 73020-6953 | School System: |
Choctaw #4 |
|
|
Country: (If noted) |
Land Size: |
1.0000 Acres |
||
|
Land Value: 76,000 |
|
|||
|
Sect 6-T11N-R1E Qtr NW |
STONEGATE CROSSING SEC 1
Block
001
Lot
003
|
|||
| Full Legal Description: STONEGATE CROSSING SEC 1 BLK 001 LOT 003 |
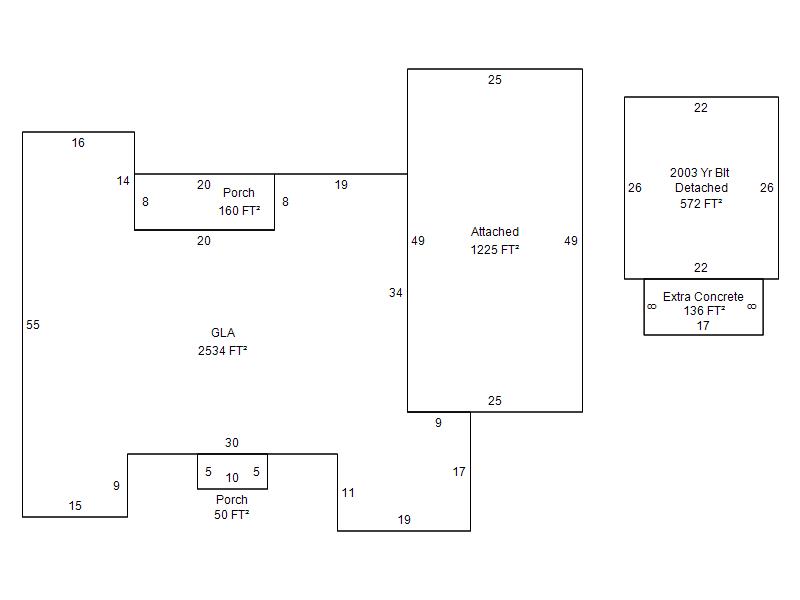
| Photo & Sketch (if available) | Comp Sales (ordered by relevancy) |
|
||||||||||||||||||
|
||||||||||||||||||||
| Value History (*The County Treasurer 405-713-1300 posts & collects actual tax amounts. Contact information HERE) | |||||||||||||
|---|---|---|---|---|---|---|---|---|---|---|---|---|---|
| Year | Market Value | Taxable Mkt Value | Gross Assessed | Exemption | Net Assessed | Millage | Est. Tax | Tax Savings | |||||
|
2026 |
517,500 |
405,379 |
44,590 |
1,000 |
43,590 |
117.21 |
$5,109 |
$1,563 |
|||||
|
2025 |
485,000 |
393,572 |
43,291 |
1,000 |
42,291 |
117.21 |
$4,957 |
$1,296 |
|||||
|
2024 |
471,500 |
382,109 |
42,031 |
1,000 |
41,031 |
116.35 |
$4,774 |
$1,260 |
|||||
|
2023 |
472,000 |
370,980 |
40,807 |
1,000 |
39,807 |
118.06 |
$4,700 |
$1,430 |
|||||
|
2022 |
396,000 |
360,175 |
39,618 |
1,000 |
38,618 |
116.14 |
$4,485 |
$574 |
|||||
| Property Account Status/Adjustments/Exemptions | ||
|---|---|---|
| Account # | Exemption Description | Amount |
|
R200961020 |
3% Cap Homestead |
0 |
|
R200961020 |
Homestead |
1,000 |
| Property Deed Transaction History (Recorded in the County Clerk's Office) | |||||||
|---|---|---|---|---|---|---|---|
| Date | Type | Book | Page | Price | Grantor | Grantee | |
|
11/1/1999 |
|
Hmstd Off & |
$0 |
SIMMONS BUDDY & ANITA SWM & SONS INC |
SIMMONS BUDDY L & ANITA G |
||
|
3/23/1999 |
|
Historical |
$23,000 |
ROYALE DEVELOPERS LLC |
SIMMONS BUDDY & ANITA |
||
|
8/21/1998 |
|
Historical |
$0 |
|
ROYALE DEVELOPERS LLC |
||
| Last Mailed Notice of Value (N.O.V.) Information/History | ||||||||
|---|---|---|---|---|---|---|---|---|
| Year | Date | Market Value | Taxable Market Value | Gross Assessed | Exemption | Net Assessed | ||
|
2026 |
02/06/2026 |
517,500 |
405,379 |
44,590 |
1,000 |
43,590 |
||
|
2025 |
01/31/2025 |
485,000 |
393,572 |
43,291 |
1,000 |
42,291 |
||
|
2024 |
01/22/2024 |
471,500 |
382,109 |
42,031 |
1,000 |
41,031 |
||
|
2023 |
01/23/2023 |
472,000 |
370,980 |
40,807 |
1,000 |
39,807 |
||
|
2022 |
02/22/2022 |
396,000 |
360,175 |
39,618 |
1,000 |
38,618 |
||
| Property Building Permit History | ||||||
|---|---|---|---|---|---|---|
| Issued | Permit # | Provided by | Bldg # | Description | Est Construction Cost | Status |
|
6/22/2005 |
10309832 |
CHOCTAW |
1 |
Swimming Pool |
23,000 |
Inactive |
|
7/1/2003 |
10280460 |
CHOCTAW |
1 |
Garage |
18,000 |
Inactive |
|
3/8/1999 |
10268312 |
CHOCTAW |
1 |
Main Dwellin |
136,800 |
Inactive |
| Click button on building number to access detailed information: | ||||||
|---|---|---|---|---|---|---|
| Bldg # | Vacant/Improved Land | Bldg Description | Year Built | SqFt | # Stories | |
|
1 |
Improved |
Ranch 1 Story |
1999 |
2,534 |
1 Stories |
|