|
|
|
| Larry Stein Oklahoma County Assessor (405) 713-1200 - Public Access System |
|
|
|
|
|
|
| Real Property Display - Screen Produced 4/5/2026 11:18:01 PM | ||||
|---|---|---|---|---|
| Account: R200961060 | Type: Residential | Location: |
16316 COBBLESTONE CIR |
|
| Building Name/Occupant: |
|
CHOCTAW |
||
| Owner Name 1: | CERVANTES ALICIA & OSCAR |
Parcel PIN#: |
1024-20-096-1060 |
|
| Owner Name 2: | 1/4 section #: |
1024 |
||
| Owner Name 3: | Parent Acct: |
|
||
| Billing Address: | 16316 COBBLESTONE CIR | Tax District: |
|
|
| City, State, Zip | CHOCTAW, OK 73020 | School System: |
Choctaw #4 |
|
|
Country: (If noted) |
Land Size: |
1.5200 Acres |
||
|
Land Value: 115,520 |
|
|||
|
Sect 6-T11N-R1E Qtr NW |
STONEGATE CROSSING SEC 1
Block
001
Lot
007
|
|||
| Full Legal Description: STONEGATE CROSSING SEC 1 BLK 001 LOT 007 |
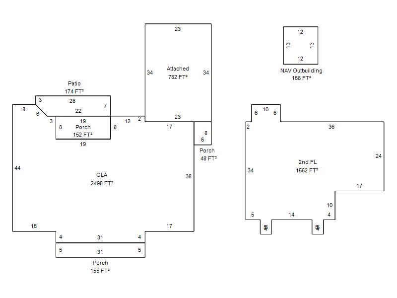
| Photo & Sketch (if available) | Comp Sales (ordered by relevancy) |
|
||||||||||||||||||
|
||||||||||||||||||||
| Value History (*The County Treasurer 405-713-1300 posts & collects actual tax amounts. Contact information HERE) | |||||||||||||
|---|---|---|---|---|---|---|---|---|---|---|---|---|---|
| Year | Market Value | Taxable Mkt Value | Gross Assessed | Exemption | Net Assessed | Millage | Est. Tax | Tax Savings | |||||
|
2026 |
641,500 |
638,925 |
70,281 |
0 |
70,281 |
117.21 |
$8,238 |
$33 |
|||||
|
2025 |
608,500 |
608,500 |
66,935 |
0 |
66,935 |
117.21 |
$7,845 |
$0 |
|||||
|
2024 |
597,000 |
597,000 |
65,670 |
0 |
65,670 |
116.35 |
$7,641 |
$0 |
|||||
|
2023 |
597,500 |
597,500 |
65,725 |
0 |
65,725 |
118.06 |
$7,759 |
$0 |
|||||
|
2022 |
571,000 |
571,000 |
62,810 |
0 |
62,810 |
116.14 |
$7,295 |
$0 |
|||||
| Property Account Status/Adjustments/Exemptions | ||
|---|---|---|
| Account # | Exemption Description | Amount |
|
R200961060 |
5% Capped Account |
0 |
| Property Deed Transaction History (Recorded in the County Clerk's Office) | ||||||||||
|---|---|---|---|---|---|---|---|---|---|---|
| Date | Type | Book | Page | Price | Grantor | Grantee | ||||
|
12/17/2021 |
|
Deeds |
$580,000 |
MACK CLIFFORD W |
CERVANTES ALICIA & OSCAR |
|||||
|
8/30/2019 |
|
Deeds |
$445,000 |
MAKO WILLIAM G & LISA |
MACK CLIFFORD W |
|||||
|
10/9/2009 |
|
Deeds |
$0 |
MAKO WILLIAM G |
MAKO WILLIAM G & LISA |
|||||
|
4/30/2008 |
|
Deeds |
$354,000 |
KUNSTER DENNIS & SANDRA C |
MAKO WILLIAM G |
|||||
|
1/26/2001 |
|
Hmstd Off & |
$0 |
IMES CHARLES W & REMA J SWM & SONS INC |
SWM & SONS INC |
|||||
| Last Mailed Notice of Value (N.O.V.) Information/History | ||||||||
|---|---|---|---|---|---|---|---|---|
| Year | Date | Market Value | Taxable Market Value | Gross Assessed | Exemption | Net Assessed | ||
|
2026 |
02/06/2026 |
641,500 |
638,925 |
70,281 |
0 |
70,281 |
||
|
2025 |
01/31/2025 |
608,500 |
608,500 |
66,935 |
0 |
66,935 |
||
|
2023 |
01/23/2023 |
597,500 |
597,500 |
65,725 |
0 |
65,725 |
||
|
2022 |
02/22/2022 |
571,000 |
571,000 |
62,810 |
0 |
62,810 |
||
|
2021 |
02/24/2021 |
432,000 |
432,000 |
47,520 |
1,000 |
46,520 |
||
| Property Building Permit History | ||||||
|---|---|---|---|---|---|---|
| Issued | Permit # | Provided by | Bldg # | Description | Est Construction Cost | Status |
|
6/1/2012 |
10441776 |
CHOCTAW |
1 |
Swimming Pool |
25,000 |
Inactive |
|
9/7/1999 |
10268322 |
CHOCTAW |
1 |
Main Dwellin |
164,640 |
Inactive |
| Click button on building number to access detailed information: | ||||||
|---|---|---|---|---|---|---|
| Bldg # | Vacant/Improved Land | Bldg Description | Year Built | SqFt | # Stories | |
|
1 |
Improved |
2 Story |
2001 |
4,060 |
2 Stories |
|