|
|
|
| Larry Stein Oklahoma County Assessor (405) 713-1200 - Public Access System |
|
|
|
|
|
|
| Real Property Display - Screen Produced 4/1/2026 5:20:30 AM | ||||
|---|---|---|---|---|
| Account: R113491205 | Type: Residential | Location: |
2908 SW 53RD ST |
|
| Building Name/Occupant: |
|
OKLAHOMA CITY |
||
| Owner Name 1: | LAZOS YESSENIA |
Parcel PIN#: |
1894-11-349-1205 |
|
| Owner Name 2: | 1/4 section #: |
1894 |
||
| Owner Name 3: | Parent Acct: |
|
||
| Billing Address: | 2908 SW 53RD ST | Tax District: |
|
|
| City, State, Zip | OKLAHOMA CITY, OK 73119-5408 | School System: |
Oklahoma City #89 |
|
|
Country: (If noted) |
Land Size: |
0.1719 Acres |
||
|
Land Value: 16,853 |
|
|||
|
Sect 24-T11N-R4W Qtr SE |
ALMONTE
Block
002
Lot
002
|
|||
| Full Legal Description: ALMONTE 002 002 |
| Photo & Sketch (if available) | Comp Sales (ordered by relevancy) |
|
||||||||||||||||||
|
||||||||||||||||||||
| Value History (*The County Treasurer 405-713-1300 posts & collects actual tax amounts. Contact information HERE) | |||||||||||||
|---|---|---|---|---|---|---|---|---|---|---|---|---|---|
| Year | Market Value | Taxable Mkt Value | Gross Assessed | Exemption | Net Assessed | Millage | Est. Tax | Tax Savings | |||||
|
2026 |
137,000 |
88,670 |
9,753 |
1,000 |
8,753 |
119.02 |
$1,042 |
$752 |
|||||
|
2025 |
136,500 |
86,088 |
9,468 |
1,000 |
8,468 |
119.02 |
$1,008 |
$779 |
|||||
|
2024 |
119,000 |
83,581 |
9,193 |
1,000 |
8,193 |
119.70 |
$981 |
$586 |
|||||
|
2023 |
113,500 |
81,147 |
8,925 |
1,000 |
7,925 |
118.33 |
$938 |
$539 |
|||||
|
2022 |
100,500 |
78,784 |
8,665 |
1,000 |
7,665 |
112.69 |
$864 |
$382 |
|||||
| Property Account Status/Adjustments/Exemptions | ||
|---|---|---|
| Account # | Exemption Description | Amount |
|
R113491205 |
3% Cap Homestead |
0 |
|
R113491205 |
Homestead |
1,000 |
| Property Deed Transaction History (Recorded in the County Clerk's Office) | |||||||
|---|---|---|---|---|---|---|---|
| Date | Type | Book | Page | Price | Grantor | Grantee | |
|
10/28/2009 |
|
Deeds |
$70,000 |
MILLER DANA JEAN DAVIS & ARTHUR |
LAZOS YESSENIA |
||
|
4/28/2006 |
|
Deeds |
$0 |
DAVIS DANA J |
MILLER DANA JEAN DAVIS & ARTHUR |
||
|
4/1/1978 |
|
Historical |
$0 |
|
DAVIS DANA J |
||
| Last Mailed Notice of Value (N.O.V.) Information/History | ||||||||
|---|---|---|---|---|---|---|---|---|
| Year | Date | Market Value | Taxable Market Value | Gross Assessed | Exemption | Net Assessed | ||
|
2026 |
02/06/2026 |
137,000 |
88,670 |
9,753 |
1,000 |
8,753 |
||
|
2025 |
01/31/2025 |
136,500 |
86,088 |
9,468 |
1,000 |
8,468 |
||
|
2024 |
01/22/2024 |
119,000 |
83,581 |
9,193 |
1,000 |
8,193 |
||
|
2023 |
01/23/2023 |
113,500 |
81,147 |
8,925 |
1,000 |
7,925 |
||
|
2022 |
02/22/2022 |
100,500 |
78,784 |
8,665 |
1,000 |
7,665 |
||
| Property Building Permit History | |||||||||||
|---|---|---|---|---|---|---|---|---|---|---|---|
| Issued | Permit # | Provided by | Bldg # | Description | Est Construction Cost | Status | |||||
| No Building Permit records returned. | |||||||||||
| Click button on building number to access detailed information: | ||||||
|---|---|---|---|---|---|---|
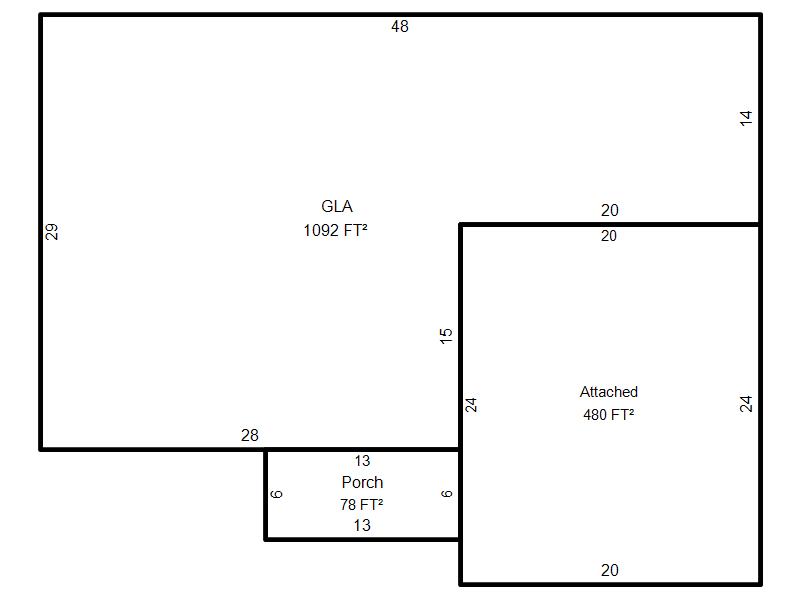
| Bldg # | Vacant/Improved Land | Bldg Description | Year Built | SqFt | # Stories | |
|
1 |
Improved |
Ranch 1 Story |
1959 |
1,092 |
1 Stories |
|