|
|
|
| Larry Stein Oklahoma County Assessor (405) 713-1200 - Public Access System |
|
|
|
|
|
|
| Real Property Display - Screen Produced 4/4/2026 1:54:39 PM | ||||
|---|---|---|---|---|
| Account: R143292125 | Type: Residential | Location: |
3309 SW MURRAY DR |
|
| Building Name/Occupant: |
|
OKLAHOMA CITY |
||
| Owner Name 1: | HONDOLERO CHERI JAN |
Parcel PIN#: |
1896-14-329-2125 |
|
| Owner Name 2: | SAUMTY BRANDON SCOTT | 1/4 section #: |
1896 |
|
| Owner Name 3: | Parent Acct: |
|
||
| Billing Address: | 3309 SW MURRAY DR | Tax District: |
|
|
| City, State, Zip | OKLAHOMA CITY, OK 73119-4338 | School System: |
Western Heights #41 |
|
|
Country: (If noted) |
Land Size: |
0.1578 Acres |
||
|
Land Value: 13,750 |
|
|||
|
Sect 24-T11N-R4W Qtr NW |
ROWLAND HILLS 2ND
Block
008
Lot
003
|
|||
| Full Legal Description: ROWLAND HILLS 2ND 008 003 |
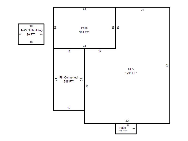
| Photo & Sketch (if available) | Comp Sales (ordered by relevancy) |
|
||||||||||||||||||
|
||||||||||||||||||||
| Value History (*The County Treasurer 405-713-1300 posts & collects actual tax amounts. Contact information HERE) | |||||||||||||
|---|---|---|---|---|---|---|---|---|---|---|---|---|---|
| Year | Market Value | Taxable Mkt Value | Gross Assessed | Exemption | Net Assessed | Millage | Est. Tax | Tax Savings | |||||
|
2026 |
134,000 |
91,891 |
10,107 |
0 |
10,107 |
117.97 |
$1,192 |
$546 |
|||||
|
2025 |
133,500 |
87,516 |
9,626 |
0 |
9,626 |
117.97 |
$1,136 |
$597 |
|||||
|
2024 |
124,500 |
83,349 |
9,167 |
0 |
9,167 |
118.45 |
$1,086 |
$536 |
|||||
|
2023 |
109,000 |
79,380 |
8,731 |
0 |
8,731 |
116.31 |
$1,016 |
$379 |
|||||
|
2022 |
94,000 |
75,600 |
8,316 |
0 |
8,316 |
117.67 |
$979 |
$238 |
|||||
| Property Account Status/Adjustments/Exemptions | ||
|---|---|---|
| Account # | Exemption Description | Amount |
|
R143292125 |
5% Capped Account |
0 |
| Property Deed Transaction History (Recorded in the County Clerk's Office) | ||||||||||
|---|---|---|---|---|---|---|---|---|---|---|
| Date | Type | Book | Page | Price | Grantor | Grantee | ||||
|
12/3/2024 |
|
Hmstd Off & |
$0 |
HONDOLERO CHERI JAN & REGINALD D |
HONDOLERO CHERI JAN |
|||||
|
12/3/2024 |
|
Hmstd Off & |
$0 |
HONDOLERO CHERI JAN |
HONDOLERO CHERI JAN |
|||||
|
9/23/2002 |
|
Hmstd Off & |
$0 |
SMITH LEO E SR |
HONDOLERO CHERI JAN & REGINALD D |
|||||
|
4/8/1991 |
|
Historical |
$19,000 |
TRANSAMERICA FINANCIAL |
SMITH LEO E SR |
|||||
|
2/6/1989 |
|
Historical |
$0 |
PERRY WAYNE E & EULA E |
TRANSAMERICA FINANCIAL |
|||||
| Last Mailed Notice of Value (N.O.V.) Information/History | ||||||||
|---|---|---|---|---|---|---|---|---|
| Year | Date | Market Value | Taxable Market Value | Gross Assessed | Exemption | Net Assessed | ||
|
2026 |
02/06/2026 |
134,000 |
91,891 |
10,107 |
0 |
10,107 |
||
|
2025 |
01/31/2025 |
133,500 |
87,516 |
9,626 |
0 |
9,626 |
||
|
2024 |
01/22/2024 |
124,500 |
83,349 |
9,167 |
0 |
9,167 |
||
|
2023 |
01/23/2023 |
109,000 |
79,380 |
8,731 |
0 |
8,731 |
||
|
2022 |
02/22/2022 |
94,000 |
75,600 |
8,316 |
0 |
8,316 |
||
| Property Building Permit History | ||||||
|---|---|---|---|---|---|---|
| Issued | Permit # | Provided by | Bldg # | Description | Est Construction Cost | Status |
|
5/20/2006 |
10323865 |
OKLAHOMA CITY |
1 |
Burn - Trip |
2,500 |
Inactive |
| Click button on building number to access detailed information: | ||||||
|---|---|---|---|---|---|---|
| Bldg # | Vacant/Improved Land | Bldg Description | Year Built | SqFt | # Stories | |
|
1 |
Improved |
Ranch 1 Story |
1960 |
1,293 |
1 Stories |
|