|
|
|
| Larry Stein Oklahoma County Assessor (405) 713-1200 - Public Access System |
|
|
|
|
|
|
| Real Property Display - Screen Produced 4/3/2026 2:56:51 AM | ||||
|---|---|---|---|---|
| Account: R260124095 | Type: Residential | Location: |
5316 HARRAH RD |
|
| Building Name/Occupant: |
|
UNINCORPORATED |
||
| Owner Name 1: | KUPCZYNSKI MARCUS |
Parcel PIN#: |
2047-26-012-4095 |
|
| Owner Name 2: | KUPCZYNSKI MIKE | 1/4 section #: |
2047 |
|
| Owner Name 3: | Parent Acct: |
|
||
| Billing Address: | 5316 N HARRAH RD | Tax District: |
|
|
| City, State, Zip | HARRAH, OK 73045-8722 | School System: |
Harrah #7 |
|
|
Country: (If noted) |
Land Size: |
3.9600 Acres |
||
|
Land Value: 35,464 |
|
|||
|
Sect 12-T12N-R1E Qtr SW |
ELK TOWNSHIP
Block
000
Lot
000
|
|||
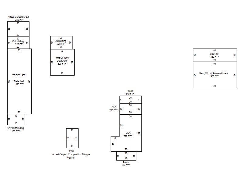
| Full Legal Description: ELK TOWNSHIP 000 000 PT SW4 SEC 12 12N 1E BEG 1252FT S OF NW/C SW4 TH S164FT E248.8FT S166FT E400FT N330FT W648.8FT TO BEG |
| Photo & Sketch (if available) | Comp Sales (ordered by relevancy) |
|
||||||||||||||||||
|
||||||||||||||||||||
| Value History (*The County Treasurer 405-713-1300 posts & collects actual tax amounts. Contact information HERE) | |||||||||||||
|---|---|---|---|---|---|---|---|---|---|---|---|---|---|
| Year | Market Value | Taxable Mkt Value | Gross Assessed | Exemption | Net Assessed | Millage | Est. Tax | Tax Savings | |||||
|
2026 |
172,000 |
172,000 |
18,920 |
0 |
18,920 |
107.54 |
$2,035 |
$0 |
|||||
|
2025 |
143,500 |
44,637 |
4,909 |
0 |
4,909 |
107.54 |
$528 |
$1,169 |
|||||
|
2024 |
118,500 |
42,512 |
4,675 |
0 |
4,675 |
110.62 |
$517 |
$925 |
|||||
|
2023 |
111,000 |
40,488 |
4,453 |
0 |
4,453 |
97.88 |
$436 |
$759 |
|||||
|
2022 |
102,500 |
38,560 |
4,240 |
0 |
4,240 |
99.50 |
$422 |
$700 |
|||||
| Property Account Status/Adjustments/Exemptions | ||||||
|---|---|---|---|---|---|---|
| Account # | Exemption Description | Amount | ||||
| No adjustment/exemption records returned. | ||||||
| Property Deed Transaction History (Recorded in the County Clerk's Office) | |||||||
|---|---|---|---|---|---|---|---|
| Date | Type | Book | Page | Price | Grantor | Grantee | |
|
9/26/2025 |
|
Deeds |
$0 |
THOMPSON DOYLE M & LEAH R |
THOMPSON LEAH R |
||
|
9/26/2025 |
|
Mult Parcel |
$205,000 |
THOMPSON LEAH R |
KUPCZYNSKI MARCUS |
||
|
2/1/1980 |
|
Historical |
$0 |
|
THOMPSON DOYLE M & LEAH R |
||
| Last Mailed Notice of Value (N.O.V.) Information/History | ||||||||
|---|---|---|---|---|---|---|---|---|
| Year | Date | Market Value | Taxable Market Value | Gross Assessed | Exemption | Net Assessed | ||
|
2026 |
02/06/2026 |
172,000 |
172,000 |
18,920 |
0 |
18,920 |
||
|
2025 |
01/31/2025 |
143,500 |
44,637 |
4,909 |
0 |
4,909 |
||
|
2024 |
01/22/2024 |
118,500 |
42,512 |
4,675 |
0 |
4,675 |
||
|
2023 |
01/23/2023 |
111,000 |
40,488 |
4,453 |
0 |
4,453 |
||
|
2022 |
02/22/2022 |
102,500 |
38,560 |
4,240 |
0 |
4,240 |
||
| Property Building Permit History | |||||||||||
|---|---|---|---|---|---|---|---|---|---|---|---|
| Issued | Permit # | Provided by | Bldg # | Description | Est Construction Cost | Status | |||||
| No Building Permit records returned. | |||||||||||
| Click button on building number to access detailed information: | ||||||
|---|---|---|---|---|---|---|
| Bldg # | Vacant/Improved Land | Bldg Description | Year Built | SqFt | # Stories | |
|
1 |
Improved |
Ranch 1 Story |
1920 |
992 |
1 Stories |
|