|
|
|
| Larry Stein Oklahoma County Assessor (405) 713-1200 - Public Access System |
|
|
|
|
|
|
| Real Property Display - Screen Produced 4/4/2026 4:22:12 PM | ||||
|---|---|---|---|---|
| Account: R120051290 | Type: Residential | Location: |
346 HARVEST HILLS RD |
|
| Building Name/Occupant: |
|
HARRAH |
||
| Owner Name 1: | WILSON DONALD A & PENNY E TRS |
Parcel PIN#: |
2139-12-005-1290 |
|
| Owner Name 2: | WILSON DONALD A & PENNY E REV LIV TRUST | 1/4 section #: |
2139 |
|
| Owner Name 3: | Parent Acct: |
|
||
| Billing Address: | 346 HARVEST HLS | Tax District: |
|
|
| City, State, Zip | HARRAH, OK 73045-9677 | School System: |
Harrah #7 |
|
|
Country: (If noted) |
Land Size: |
0.2250 Acres |
||
|
Land Value: 27,930 |
|
|||
|
Sect 35-T12N-R1E Qtr SW |
HARVEST HILLS EAST
Block
017
Lot
011
|
|||
| Full Legal Description: HARVEST HILLS EAST 017 011 |
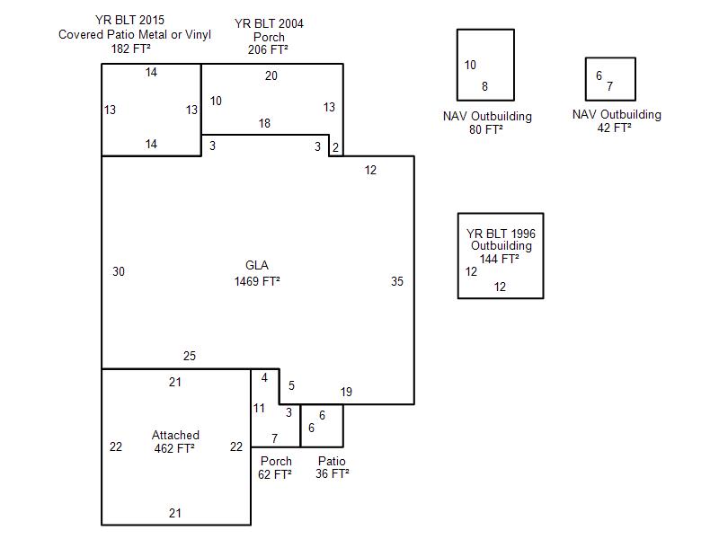
| Photo & Sketch (if available) | Comp Sales (ordered by relevancy) |
|
||||||||||||||||||
|
||||||||||||||||||||
| Value History (*The County Treasurer 405-713-1300 posts & collects actual tax amounts. Contact information HERE) | |||||||||||||
|---|---|---|---|---|---|---|---|---|---|---|---|---|---|
| Year | Market Value | Taxable Mkt Value | Gross Assessed | Exemption | Net Assessed | Millage | Est. Tax | Tax Savings | |||||
|
2026 |
237,000 |
188,477 |
20,731 |
20,731 |
0 |
107.54 |
$0 |
$2,803 |
|||||
|
2025 |
242,500 |
182,988 |
20,128 |
20,128 |
0 |
107.54 |
$0 |
$2,869 |
|||||
|
2024 |
228,500 |
177,659 |
19,542 |
19,542 |
0 |
110.62 |
$0 |
$2,780 |
|||||
|
2023 |
217,500 |
172,485 |
18,972 |
0 |
18,972 |
97.88 |
$1,857 |
$485 |
|||||
|
2022 |
183,000 |
164,272 |
18,069 |
0 |
18,069 |
99.50 |
$1,798 |
$205 |
|||||
| Property Account Status/Adjustments/Exemptions | ||
|---|---|---|
| Account # | Exemption Description | Amount |
|
R120051290 |
100% DAV Exemption |
100 |
|
R120051290 |
DAV Homestead |
0 |
|
R120051290 |
3% Cap Homestead |
0 |
| Property Deed Transaction History (Recorded in the County Clerk's Office) | ||||||||||
|---|---|---|---|---|---|---|---|---|---|---|
| Date | Type | Book | Page | Price | Grantor | Grantee | ||||
|
4/3/2014 |
|
Deeds |
$0 |
WILSON DONALD A & PENNY E |
WILSON DONALD A & PENNY E TRS |
|||||
|
4/9/2003 |
|
Hmstd Off & |
$0 |
WILSON DONALD A |
WILSON DONALD A & PENNY E |
|||||
|
3/20/1996 |
|
Historical |
$86,000 |
NORTH STAR LLC |
WILSON DONALD A |
|||||
|
10/17/1994 |
|
Historical |
$0 |
WESTWIND GAS COMPANY |
NORTH STAR LLC |
|||||
|
10/26/1990 |
|
Historical |
$0 |
AMERICAN FIRST TITLE |
WESTWIND GAS COMPANY |
|||||
| Last Mailed Notice of Value (N.O.V.) Information/History | ||||||||
|---|---|---|---|---|---|---|---|---|
| Year | Date | Market Value | Taxable Market Value | Gross Assessed | Exemption | Net Assessed | ||
|
2026 |
02/06/2026 |
237,000 |
188,477 |
20,731 |
20,731 |
0 |
||
|
2025 |
01/31/2025 |
242,500 |
182,988 |
20,128 |
20,128 |
0 |
||
|
2024 |
01/22/2024 |
228,500 |
181,109 |
19,921 |
0 |
19,921 |
||
|
2023 |
01/23/2023 |
217,500 |
172,485 |
18,972 |
0 |
18,972 |
||
|
2022 |
02/22/2022 |
183,000 |
164,272 |
18,069 |
0 |
18,069 |
||
| Property Building Permit History | ||||||
|---|---|---|---|---|---|---|
| Issued | Permit # | Provided by | Bldg # | Description | Est Construction Cost | Status |
|
9/17/2003 |
10286275 |
HARRAH |
1 |
Remodeled |
40,000 |
Inactive |
|
8/4/1995 |
10206029 |
HARRAH |
1 |
Main Dwellin |
85,250 |
Inactive |
| Click button on building number to access detailed information: | ||||||
|---|---|---|---|---|---|---|
| Bldg # | Vacant/Improved Land | Bldg Description | Year Built | SqFt | # Stories | |
|
1 |
Improved |
Ranch 1 Story |
1996 |
1,469 |
1 Stories |
|