|
|
|
| Larry Stein Oklahoma County Assessor (405) 713-1200 - Public Access System |
|
|
|
|
|
|
| Real Property Display - Screen Produced 4/4/2026 4:23:02 PM | ||||
|---|---|---|---|---|
| Account: R120051380 | Type: Residential | Location: |
500 HARVEST HILLS RD |
|
| Building Name/Occupant: |
|
HARRAH |
||
| Owner Name 1: | NATION THOMAS A |
Parcel PIN#: |
2139-12-005-1380 |
|
| Owner Name 2: | 1/4 section #: |
2139 |
||
| Owner Name 3: | Parent Acct: |
|
||
| Billing Address: | 100 INDEPENDANCE CT | Tax District: |
|
|
| City, State, Zip | UNION, CT 07083 | School System: |
Harrah #7 |
|
|
Country: (If noted) |
UNITED STATES |
Land Size: |
0.2410 Acres |
|
|
Land Value: 29,925 |
|
|||
|
Sect 35-T12N-R1E Qtr SW |
HARVEST HILLS EAST
Block
017
Lot
020
|
|||
| Full Legal Description: HARVEST HILLS EAST 017 020 |
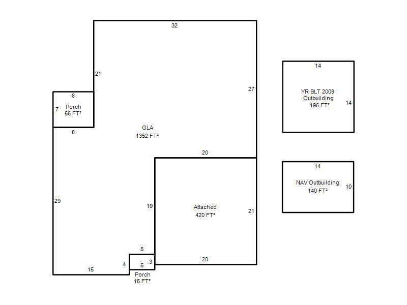
| Photo & Sketch (if available) | Comp Sales (ordered by relevancy) |
|
|||||||||||||||
|
|||||||||||||||||
| Value History (*The County Treasurer 405-713-1300 posts & collects actual tax amounts. Contact information HERE) | |||||||||||||
|---|---|---|---|---|---|---|---|---|---|---|---|---|---|
| Year | Market Value | Taxable Mkt Value | Gross Assessed | Exemption | Net Assessed | Millage | Est. Tax | Tax Savings | |||||
|
2026 |
212,500 |
206,635 |
22,729 |
0 |
22,729 |
107.54 |
$2,444 |
$69 |
|||||
|
2025 |
217,500 |
196,796 |
21,646 |
0 |
21,646 |
107.54 |
$2,328 |
$245 |
|||||
|
2024 |
203,500 |
187,425 |
20,616 |
0 |
20,616 |
110.62 |
$2,281 |
$196 |
|||||
|
2023 |
178,500 |
178,500 |
19,635 |
0 |
19,635 |
97.88 |
$1,922 |
$0 |
|||||
|
2022 |
178,500 |
178,500 |
19,635 |
0 |
19,635 |
99.50 |
$1,954 |
$0 |
|||||
| Property Account Status/Adjustments/Exemptions | ||
|---|---|---|
| Account # | Exemption Description | Amount |
|
R120051380 |
5% Capped Account |
0 |
| Property Deed Transaction History (Recorded in the County Clerk's Office) | ||||||||||
|---|---|---|---|---|---|---|---|---|---|---|
| Date | Type | Book | Page | Price | Grantor | Grantee | ||||
|
6/25/2021 |
|
Deeds |
$182,000 |
KELLEY BRENDA |
NATION THOMAS A |
|||||
|
6/3/2019 |
|
Hmstd Off & |
$ |
PRUSSEL JANET LYNN |
KELLEY BRENDA |
|||||
|
1/15/2015 |
|
Deeds |
$121,500 |
ROBERTS BILLY W & JENNIFER ROBERTS BRETT |
PRUSSEL JANET LYNN |
|||||
|
9/18/2012 |
|
Deeds |
$0 |
ROBERTS BILLY W |
ROBERTS BILLY W & JENNIFER ROBERTS BRETT |
|||||
|
5/9/2012 |
|
Deeds |
$117,000 |
THOMASON CHRISTOPHER K WARREN SALLY A |
ROBERTS BILLY W |
|||||
| Last Mailed Notice of Value (N.O.V.) Information/History | ||||||||
|---|---|---|---|---|---|---|---|---|
| Year | Date | Market Value | Taxable Market Value | Gross Assessed | Exemption | Net Assessed | ||
|
2026 |
02/06/2026 |
212,500 |
206,635 |
22,729 |
0 |
22,729 |
||
|
2025 |
01/31/2025 |
217,500 |
196,796 |
21,646 |
0 |
21,646 |
||
|
2024 |
01/22/2024 |
203,500 |
187,425 |
20,616 |
0 |
20,616 |
||
|
2022 |
02/22/2022 |
178,500 |
178,500 |
19,635 |
0 |
19,635 |
||
|
2021 |
02/24/2021 |
143,500 |
127,000 |
13,970 |
1,000 |
12,970 |
||
| Property Building Permit History | ||||||
|---|---|---|---|---|---|---|
| Issued | Permit # | Provided by | Bldg # | Description | Est Construction Cost | Status |
|
4/17/2009 |
10377629 |
HARRAH |
1 |
Storage Buil |
0 |
Inactive |
| Click button on building number to access detailed information: | ||||||
|---|---|---|---|---|---|---|
| Bldg # | Vacant/Improved Land | Bldg Description | Year Built | SqFt | # Stories | |
|
1 |
Improved |
Ranch 1 Story |
1994 |
1,352 |
1 Stories |
|