|
|
|
| Larry Stein Oklahoma County Assessor (405) 713-1200 - Public Access System |
|
|
|
|
|
|
| Real Property Display - Screen Produced 4/4/2026 4:30:25 PM | ||||
|---|---|---|---|---|
| Account: R120051390 | Type: Residential | Location: |
501 HARVEST HILLS RD |
|
| Building Name/Occupant: |
|
HARRAH |
||
| Owner Name 1: | TYLER ERIC L & STEPHANIE R |
Parcel PIN#: |
2139-12-005-1390 |
|
| Owner Name 2: | 1/4 section #: |
2139 |
||
| Owner Name 3: | Parent Acct: |
|
||
| Billing Address: | 501 HARVEST HILLS RD | Tax District: |
|
|
| City, State, Zip | HARRAH, OK 73045 | School System: |
Harrah #7 |
|
|
Country: (If noted) |
Land Size: |
0.4004 Acres |
||
|
Land Value: 44,734 |
|
|||
|
Sect 35-T12N-R1E Qtr SW |
HARVEST HILLS EAST
Block
018
Lot
001
|
|||
| Full Legal Description: HARVEST HILLS EAST 018 001 |
| Photo & Sketch (if available) | Comp Sales (ordered by relevancy) |
|
|||||||||||||||
|
|||||||||||||||||
| Value History (*The County Treasurer 405-713-1300 posts & collects actual tax amounts. Contact information HERE) | |||||||||||||
|---|---|---|---|---|---|---|---|---|---|---|---|---|---|
| Year | Market Value | Taxable Mkt Value | Gross Assessed | Exemption | Net Assessed | Millage | Est. Tax | Tax Savings | |||||
|
2026 |
236,000 |
183,046 |
20,134 |
1,000 |
19,134 |
107.54 |
$2,058 |
$734 |
|||||
|
2025 |
235,000 |
177,715 |
19,548 |
1,000 |
18,548 |
107.54 |
$1,995 |
$785 |
|||||
|
2024 |
230,500 |
172,539 |
18,978 |
1,000 |
17,978 |
110.62 |
$1,989 |
$816 |
|||||
|
2023 |
221,500 |
167,514 |
18,425 |
1,000 |
17,425 |
97.88 |
$1,706 |
$679 |
|||||
|
2022 |
190,500 |
162,635 |
17,889 |
1,000 |
16,889 |
99.50 |
$1,681 |
$404 |
|||||
| Property Account Status/Adjustments/Exemptions | ||
|---|---|---|
| Account # | Exemption Description | Amount |
|
R120051390 |
3% Cap Homestead |
0 |
|
R120051390 |
Homestead |
1,000 |
| Property Deed Transaction History (Recorded in the County Clerk's Office) | ||||||||||
|---|---|---|---|---|---|---|---|---|---|---|
| Date | Type | Book | Page | Price | Grantor | Grantee | ||||
|
7/21/1998 |
|
Historical |
$95,500 |
NORTH STAR HOMES LLC |
TYLER ERIC L & STEPHANIE R |
|||||
|
5/29/1996 |
|
Historical |
$0 |
NORTH STAR LLC |
NORTH STAR HOMES LLC |
|||||
|
10/17/1994 |
|
Historical |
$0 |
WESTWIND GAS COMPANY |
NORTH STAR LLC |
|||||
|
10/26/1990 |
|
Historical |
$0 |
AMERICAN FIRST TITLE |
WESTWIND GAS COMPANY |
|||||
|
6/10/1987 |
|
Historical |
$0 |
NORTH STAR COMPANIES INC |
AMERICAN FIRST TITLE |
|||||
| Last Mailed Notice of Value (N.O.V.) Information/History | ||||||||
|---|---|---|---|---|---|---|---|---|
| Year | Date | Market Value | Taxable Market Value | Gross Assessed | Exemption | Net Assessed | ||
|
2026 |
02/06/2026 |
236,000 |
183,046 |
20,134 |
1,000 |
19,134 |
||
|
2025 |
01/31/2025 |
235,000 |
177,715 |
19,548 |
1,000 |
18,548 |
||
|
2024 |
01/22/2024 |
230,500 |
172,539 |
18,978 |
1,000 |
17,978 |
||
|
2023 |
01/23/2023 |
221,500 |
167,514 |
18,425 |
1,000 |
17,425 |
||
|
2022 |
02/22/2022 |
190,500 |
162,635 |
17,889 |
1,000 |
16,889 |
||
| Property Building Permit History | ||||||
|---|---|---|---|---|---|---|
| Issued | Permit # | Provided by | Bldg # | Description | Est Construction Cost | Status |
|
6/20/1997 |
10206031 |
HARRAH |
1 |
Main Dwellin |
88,000 |
Inactive |
| Click button on building number to access detailed information: | ||||||
|---|---|---|---|---|---|---|
| Bldg # | Vacant/Improved Land | Bldg Description | Year Built | SqFt | # Stories | |
|
1 |
Improved |
Ranch 1 Story |
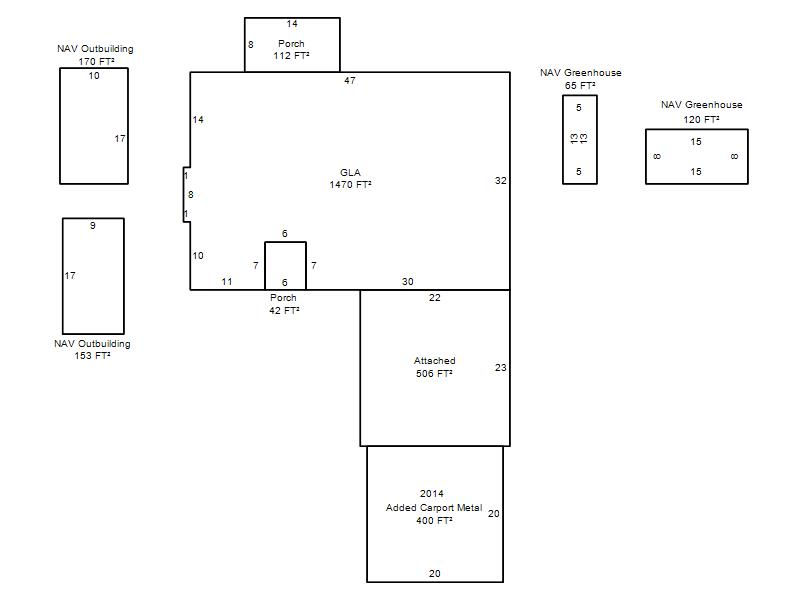
1998 |
1,470 |
1 Stories |
|