|
|
|
| Larry Stein Oklahoma County Assessor (405) 713-1200 - Public Access System |
|
|
|
|
|
|
| Real Property Display - Screen Produced 4/4/2026 4:21:42 PM | ||||
|---|---|---|---|---|
| Account: R120051530 | Type: Residential | Location: |
263 HARVEST HILLS RD |
|
| Building Name/Occupant: |
|
HARRAH |
||
| Owner Name 1: | HUFFMAN DEAN & ANN TRS |
Parcel PIN#: |
2139-12-005-1530 |
|
| Owner Name 2: | HUFFMAN DEAN & ANN FAMILY TRUST | 1/4 section #: |
2139 |
|
| Owner Name 3: | Parent Acct: |
|
||
| Billing Address: | 263 HARVEST HLS | Tax District: |
|
|
| City, State, Zip | HARRAH, OK 73045 | School System: |
Harrah #7 |
|
|
Country: (If noted) |
Land Size: |
0.3843 Acres |
||
|
Land Value: 42,938 |
|
|||
|
Sect 35-T12N-R1E Qtr SW |
HARVEST HILLS EAST
Block
018
Lot
015
|
|||
| Full Legal Description: HARVEST HILLS EAST 018 015 |
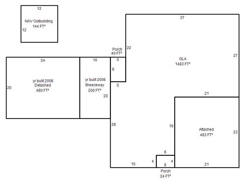
| Photo & Sketch (if available) | Comp Sales (ordered by relevancy) |
|
|||||||||||||||
|
|||||||||||||||||
| Value History (*The County Treasurer 405-713-1300 posts & collects actual tax amounts. Contact information HERE) | |||||||||||||
|---|---|---|---|---|---|---|---|---|---|---|---|---|---|
| Year | Market Value | Taxable Mkt Value | Gross Assessed | Exemption | Net Assessed | Millage | Est. Tax | Tax Savings | |||||
|
2026 |
245,500 |
191,066 |
21,017 |
1,000 |
20,017 |
107.54 |
$2,153 |
$751 |
|||||
|
2025 |
242,500 |
185,501 |
20,404 |
1,000 |
19,404 |
107.54 |
$2,087 |
$782 |
|||||
|
2024 |
238,000 |
180,099 |
19,809 |
1,000 |
18,809 |
110.62 |
$2,081 |
$815 |
|||||
|
2023 |
227,000 |
174,854 |
19,233 |
1,000 |
18,233 |
97.88 |
$1,785 |
$659 |
|||||
|
2022 |
194,500 |
169,762 |
18,673 |
1,000 |
17,673 |
99.50 |
$1,759 |
$370 |
|||||
| Property Account Status/Adjustments/Exemptions | ||
|---|---|---|
| Account # | Exemption Description | Amount |
|
R120051530 |
3% Cap Homestead |
0 |
|
R120051530 |
Homestead |
1,000 |
| Property Deed Transaction History (Recorded in the County Clerk's Office) | ||||||||||
|---|---|---|---|---|---|---|---|---|---|---|
| Date | Type | Book | Page | Price | Grantor | Grantee | ||||
|
1/21/2021 |
|
Deeds |
$0 |
HUFFMAN CORBET D & RUTH A |
HUFFMAN DEAN & ANN TRS |
|||||
|
8/9/1996 |
|
Historical |
$90,000 |
NORTH STAR HOMES LLC |
HUFFMAN CORBET D & RUTH A |
|||||
|
5/29/1996 |
|
Historical |
$0 |
NORTH STAR LLC |
NORTH STAR HOMES LLC |
|||||
|
10/17/1994 |
|
Historical |
$0 |
WESTWIND GAS COMPANY |
NORTH STAR LLC |
|||||
|
10/26/1990 |
|
Historical |
$0 |
AMERICAN FIRST TITLE |
WESTWIND GAS COMPANY |
|||||
| Last Mailed Notice of Value (N.O.V.) Information/History | ||||||||
|---|---|---|---|---|---|---|---|---|
| Year | Date | Market Value | Taxable Market Value | Gross Assessed | Exemption | Net Assessed | ||
|
2026 |
02/06/2026 |
245,500 |
191,066 |
21,017 |
1,000 |
20,017 |
||
|
2025 |
01/31/2025 |
242,500 |
185,501 |
20,404 |
1,000 |
19,404 |
||
|
2024 |
01/22/2024 |
238,000 |
180,099 |
19,809 |
1,000 |
18,809 |
||
|
2023 |
01/23/2023 |
227,000 |
174,854 |
19,233 |
1,000 |
18,233 |
||
|
2022 |
02/22/2022 |
194,500 |
169,762 |
18,673 |
1,000 |
17,673 |
||
| Property Building Permit History | ||||||
|---|---|---|---|---|---|---|
| Issued | Permit # | Provided by | Bldg # | Description | Est Construction Cost | Status |
|
9/8/2006 |
10328633 |
HARRAH |
1 |
Storage Buil |
12,000 |
Inactive |
|
3/25/1996 |
10206050 |
HARRAH |
1 |
Main Dwellin |
88,000 |
Inactive |
| Click button on building number to access detailed information: | ||||||
|---|---|---|---|---|---|---|
| Bldg # | Vacant/Improved Land | Bldg Description | Year Built | SqFt | # Stories | |
|
1 |
Improved |
Ranch 1 Story |
1996 |
1,483 |
1 Stories |
|