|
|
|
| Larry Stein Oklahoma County Assessor (405) 713-1200 - Public Access System |
|
|
|
|
|
|
| Real Property Display - Screen Produced 4/4/2026 4:22:40 PM | ||||
|---|---|---|---|---|
| Account: R120051560 | Type: Residential | Location: |
326 TIMBERIDGE RD |
|
| Building Name/Occupant: |
|
HARRAH |
||
| Owner Name 1: | CATHEY JOHNATHAN |
Parcel PIN#: |
2139-12-005-1560 |
|
| Owner Name 2: | 1/4 section #: |
2139 |
||
| Owner Name 3: | Parent Acct: |
|
||
| Billing Address: | 326 TIMBERIDGE RD | Tax District: |
|
|
| City, State, Zip | HARRAH, OK 73045-9359 | School System: |
Harrah #7 |
|
|
Country: (If noted) |
Land Size: |
0.2927 Acres |
||
|
Land Value: 36,338 |
|
|||
|
Sect 35-T12N-R1E Qtr SW |
HARVEST HILLS EAST
Block
018
Lot
018
|
|||
| Full Legal Description: HARVEST HILLS EAST 018 018 |
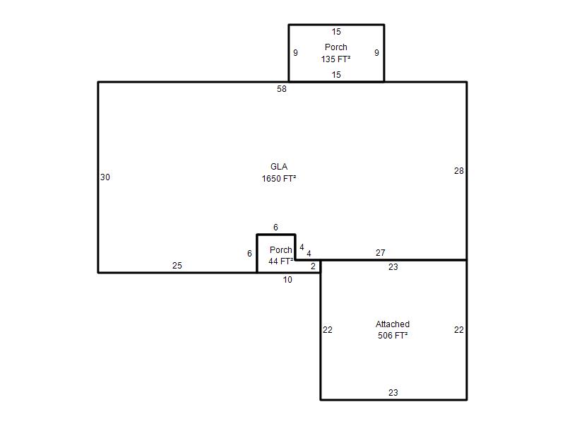
| Photo & Sketch (if available) | Comp Sales (ordered by relevancy) |
|
|||||||||||||||
|
|||||||||||||||||
| Value History (*The County Treasurer 405-713-1300 posts & collects actual tax amounts. Contact information HERE) | |||||||||||||
|---|---|---|---|---|---|---|---|---|---|---|---|---|---|
| Year | Market Value | Taxable Mkt Value | Gross Assessed | Exemption | Net Assessed | Millage | Est. Tax | Tax Savings | |||||
|
2026 |
250,000 |
195,225 |
21,474 |
1,000 |
20,474 |
107.54 |
$2,202 |
$755 |
|||||
|
2025 |
250,500 |
189,539 |
20,849 |
1,000 |
19,849 |
107.54 |
$2,135 |
$829 |
|||||
|
2024 |
245,000 |
184,019 |
20,241 |
1,000 |
19,241 |
110.62 |
$2,129 |
$853 |
|||||
|
2023 |
235,500 |
178,660 |
19,652 |
1,000 |
18,652 |
97.88 |
$1,826 |
$710 |
|||||
|
2022 |
199,000 |
173,457 |
19,079 |
1,000 |
18,079 |
99.50 |
$1,799 |
$379 |
|||||
| Property Account Status/Adjustments/Exemptions | ||
|---|---|---|
| Account # | Exemption Description | Amount |
|
R120051560 |
3% Cap Homestead |
0 |
|
R120051560 |
Homestead |
1,000 |
| Property Deed Transaction History (Recorded in the County Clerk's Office) | ||||||||||
|---|---|---|---|---|---|---|---|---|---|---|
| Date | Type | Book | Page | Price | Grantor | Grantee | ||||
|
12/24/2014 |
|
Deeds |
$155,000 |
MANRY RYAN & TAMMY R |
CATHEY JOHNATHAN |
|||||
|
11/17/2011 |
|
Deeds |
$110,000 |
HORTON CONNIE |
MANRY RYAN & TAMMY R |
|||||
|
5/30/2001 |
|
Deeds |
$127,000 |
NORTH STAR HOMES LLC |
HORTON CONNIE |
|||||
|
11/12/1997 |
|
Historical |
$0 |
NORTH STAR LLC |
NORTH STAR HOMES LLC |
|||||
|
10/17/1994 |
|
Historical |
$0 |
WESTWIND GAS COMPANY |
NORTH STAR LLC |
|||||
| Last Mailed Notice of Value (N.O.V.) Information/History | ||||||||
|---|---|---|---|---|---|---|---|---|
| Year | Date | Market Value | Taxable Market Value | Gross Assessed | Exemption | Net Assessed | ||
|
2026 |
02/06/2026 |
250,000 |
195,225 |
21,474 |
1,000 |
20,474 |
||
|
2025 |
01/31/2025 |
250,500 |
189,539 |
20,849 |
1,000 |
19,849 |
||
|
2024 |
01/22/2024 |
245,000 |
184,019 |
20,241 |
1,000 |
19,241 |
||
|
2023 |
01/23/2023 |
235,500 |
178,660 |
19,652 |
1,000 |
18,652 |
||
|
2022 |
02/22/2022 |
199,000 |
173,457 |
19,079 |
1,000 |
18,079 |
||
| Property Building Permit History | ||||||
|---|---|---|---|---|---|---|
| Issued | Permit # | Provided by | Bldg # | Description | Est Construction Cost | Status |
|
8/29/2000 |
10206056 |
HARRAH |
1 |
Main Dwellin |
120,000 |
Inactive |
| Click button on building number to access detailed information: | ||||||
|---|---|---|---|---|---|---|
| Bldg # | Vacant/Improved Land | Bldg Description | Year Built | SqFt | # Stories | |
|
1 |
Improved |
Ranch 1 Story |
2001 |
1,650 |
1 Stories |
|