|
|
|
| Larry Stein Oklahoma County Assessor (405) 713-1200 - Public Access System |
|
|
|
|
|
|
| Real Property Display - Screen Produced 4/4/2026 4:21:42 PM | ||||
|---|---|---|---|---|
| Account: R120051590 | Type: Residential | Location: |
374 TIMBERIDGE RD |
|
| Building Name/Occupant: |
|
HARRAH |
||
| Owner Name 1: | SUMAZA MICHAEL W & SANDRA K |
Parcel PIN#: |
2139-12-005-1590 |
|
| Owner Name 2: | 1/4 section #: |
2139 |
||
| Owner Name 3: | Parent Acct: |
|
||
| Billing Address: | 374 TIMBERIDGE RD | Tax District: |
|
|
| City, State, Zip | HARRAH, OK 73045-9359 | School System: |
Harrah #7 |
|
|
Country: (If noted) |
Land Size: |
0.2732 Acres |
||
|
Land Value: 33,915 |
|
|||
|
Sect 35-T12N-R1E Qtr SW |
HARVEST HILLS EAST
Block
018
Lot
021
|
|||
| Full Legal Description: HARVEST HILLS EAST 018 021 |
| Photo & Sketch (if available) | Comp Sales (ordered by relevancy) |
|
|||||||||||||||
|
|||||||||||||||||
| Value History (*The County Treasurer 405-713-1300 posts & collects actual tax amounts. Contact information HERE) | |||||||||||||
|---|---|---|---|---|---|---|---|---|---|---|---|---|---|
| Year | Market Value | Taxable Mkt Value | Gross Assessed | Exemption | Net Assessed | Millage | Est. Tax | Tax Savings | |||||
|
2026 |
236,000 |
183,261 |
20,158 |
1,000 |
19,158 |
107.54 |
$2,060 |
$731 |
|||||
|
2025 |
237,000 |
177,924 |
19,571 |
1,000 |
18,571 |
107.54 |
$1,997 |
$806 |
|||||
|
2024 |
231,000 |
172,742 |
19,001 |
1,000 |
18,001 |
110.62 |
$1,991 |
$820 |
|||||
|
2023 |
221,500 |
167,711 |
18,447 |
1,000 |
17,447 |
97.88 |
$1,708 |
$677 |
|||||
|
2022 |
187,000 |
162,827 |
17,910 |
1,000 |
16,910 |
99.50 |
$1,683 |
$364 |
|||||
| Property Account Status/Adjustments/Exemptions | ||
|---|---|---|
| Account # | Exemption Description | Amount |
|
R120051590 |
Homestead |
1,000 |
|
R120051590 |
3% Cap Homestead |
0 |
| Property Deed Transaction History (Recorded in the County Clerk's Office) | ||||||||||
|---|---|---|---|---|---|---|---|---|---|---|
| Date | Type | Book | Page | Price | Grantor | Grantee | ||||
|
3/18/2005 |
|
Deeds |
$117,000 |
HUTCHERSON BRENDA |
SUMAZA MICHAEL W & SANDRA K |
|||||
|
4/4/2003 |
|
Deeds |
$100,000 |
NORTH STAR HOMES LLC |
HUTCHERSON BRENDA |
|||||
|
9/26/2001 |
|
Other |
$0 |
NORTH STAR LLC |
NORTH STAR HOMES LLC |
|||||
|
10/17/1994 |
|
Historical |
$0 |
WESTWIND GAS COMPANY |
NORTH STAR LLC |
|||||
|
10/26/1990 |
|
Historical |
$0 |
AMERICAN FIRST TITLE |
WESTWIND GAS COMPANY |
|||||
| Last Mailed Notice of Value (N.O.V.) Information/History | ||||||||
|---|---|---|---|---|---|---|---|---|
| Year | Date | Market Value | Taxable Market Value | Gross Assessed | Exemption | Net Assessed | ||
|
2026 |
02/06/2026 |
236,000 |
183,261 |
20,158 |
1,000 |
19,158 |
||
|
2025 |
01/31/2025 |
237,000 |
177,924 |
19,571 |
1,000 |
18,571 |
||
|
2024 |
01/22/2024 |
231,000 |
172,742 |
19,001 |
1,000 |
18,001 |
||
|
2023 |
01/23/2023 |
221,500 |
167,711 |
18,447 |
1,000 |
17,447 |
||
|
2022 |
02/22/2022 |
187,000 |
162,827 |
17,909 |
1,000 |
16,909 |
||
| Property Building Permit History | ||||||
|---|---|---|---|---|---|---|
| Issued | Permit # | Provided by | Bldg # | Description | Est Construction Cost | Status |
|
9/19/2002 |
10286229 |
HARRAH |
1 |
Main Dwellin |
110,000 |
Inactive |
| Click button on building number to access detailed information: | ||||||
|---|---|---|---|---|---|---|
| Bldg # | Vacant/Improved Land | Bldg Description | Year Built | SqFt | # Stories | |
|
1 |
Improved |
Ranch 1 Story |
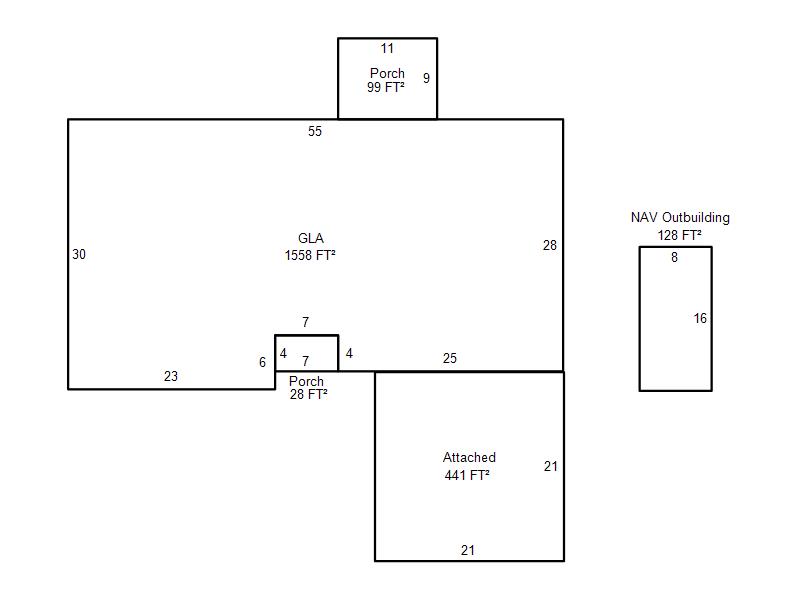
2002 |
1,558 |
1 Stories |
|