|
|
|
| Larry Stein Oklahoma County Assessor (405) 713-1200 - Public Access System |
|
|
|
|
|
|
| Real Property Display - Screen Produced 4/4/2026 4:21:41 PM | ||||
|---|---|---|---|---|
| Account: R120051730 | Type: Residential | Location: |
355 TIMBERIDGE RD |
|
| Building Name/Occupant: |
|
HARRAH |
||
| Owner Name 1: | SHERRILL REBEKAH L |
Parcel PIN#: |
2139-12-005-1730 |
|
| Owner Name 2: | 1/4 section #: |
2139 |
||
| Owner Name 3: | Parent Acct: |
|
||
| Billing Address: | 355 TIMBERIDGE RD | Tax District: |
|
|
| City, State, Zip | HARRAH, OK 73045-9359 | School System: |
Harrah #7 |
|
|
Country: (If noted) |
Land Size: |
0.2250 Acres |
||
|
Land Value: 27,930 |
|
|||
|
Sect 35-T12N-R1E Qtr SW |
HARVEST HILLS EAST
Block
019
Lot
005
|
|||
| Full Legal Description: HARVEST HILLS EAST 019 005 |
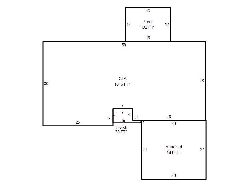
| Photo & Sketch (if available) | Comp Sales (ordered by relevancy) |
|
||||||||||||||||||
|
||||||||||||||||||||
| Value History (*The County Treasurer 405-713-1300 posts & collects actual tax amounts. Contact information HERE) | |||||||||||||
|---|---|---|---|---|---|---|---|---|---|---|---|---|---|
| Year | Market Value | Taxable Mkt Value | Gross Assessed | Exemption | Net Assessed | Millage | Est. Tax | Tax Savings | |||||
|
2026 |
245,500 |
186,866 |
20,554 |
1,000 |
19,554 |
107.54 |
$2,103 |
$801 |
|||||
|
2025 |
250,000 |
181,424 |
19,956 |
1,000 |
18,956 |
107.54 |
$2,039 |
$919 |
|||||
|
2024 |
235,500 |
176,140 |
19,375 |
1,000 |
18,375 |
110.62 |
$2,033 |
$833 |
|||||
|
2023 |
226,500 |
171,010 |
18,810 |
1,000 |
17,810 |
97.88 |
$1,743 |
$695 |
|||||
|
2022 |
190,500 |
166,030 |
18,262 |
1,000 |
17,262 |
99.50 |
$1,718 |
$367 |
|||||
| Property Account Status/Adjustments/Exemptions | ||
|---|---|---|
| Account # | Exemption Description | Amount |
|
R120051730 |
3% Cap Homestead |
0 |
|
R120051730 |
Homestead |
1,000 |
| Property Deed Transaction History (Recorded in the County Clerk's Office) | ||||||||||
|---|---|---|---|---|---|---|---|---|---|---|
| Date | Type | Book | Page | Price | Grantor | Grantee | ||||
|
5/5/2015 |
|
Other |
$0 |
SECRETARY OF HOUSING & URBAN DEV |
SHERRILL REBEKAH L |
|||||
|
12/7/2013 |
|
Hmstd Off & |
$0 |
MCGLOTHIN DAVEY W |
SECRETARY OF HOUSING & URBAN DEV |
|||||
|
9/27/2010 |
|
Deeds |
$0 |
RICHARDSON DAVID & DIANE |
RICHARDSON DIANE |
|||||
|
9/27/2010 |
|
Deeds |
$142,500 |
RICHARDSON DIANE |
MCGLOTHIN DAVEY W |
|||||
|
7/19/2002 |
|
Deeds |
$127,000 |
NORTH STAR HOMES LLC |
RICHARDSON DAVID & DIANE |
|||||
| Last Mailed Notice of Value (N.O.V.) Information/History | ||||||||
|---|---|---|---|---|---|---|---|---|
| Year | Date | Market Value | Taxable Market Value | Gross Assessed | Exemption | Net Assessed | ||
|
2026 |
02/06/2026 |
245,500 |
186,866 |
20,554 |
1,000 |
19,554 |
||
|
2025 |
01/31/2025 |
250,000 |
181,424 |
19,956 |
1,000 |
18,956 |
||
|
2024 |
01/22/2024 |
235,500 |
176,140 |
19,375 |
1,000 |
18,375 |
||
|
2023 |
01/23/2023 |
226,500 |
171,010 |
18,810 |
1,000 |
17,810 |
||
|
2022 |
02/22/2022 |
190,500 |
166,030 |
18,262 |
1,000 |
17,262 |
||
| Property Building Permit History | ||||||
|---|---|---|---|---|---|---|
| Issued | Permit # | Provided by | Bldg # | Description | Est Construction Cost | Status |
|
1/1/2002 |
10206065 |
OKLAHOMA CITY |
1 |
Main Dwellin |
2,002 |
Inactive |
|
4/3/2001 |
10206064 |
HARRAH |
1 |
Main Dwellin |
120,000 |
Inactive |
| Click button on building number to access detailed information: | ||||||
|---|---|---|---|---|---|---|
| Bldg # | Vacant/Improved Land | Bldg Description | Year Built | SqFt | # Stories | |
|
1 |
Improved |
Ranch 1 Story |
2001 |
1,646 |
1 Stories |
|