|
|
|
| Larry Stein Oklahoma County Assessor (405) 713-1200 - Public Access System |
|
|
|
|
|
|
| Real Property Display - Screen Produced 4/9/2026 9:41:58 AM | ||||
|---|---|---|---|---|
| Account: R144048000 | Type: Residential | Location: |
15620 SE 37TH PL |
|
| Building Name/Occupant: |
|
OKLAHOMA CITY |
||
| Owner Name 1: | ARMSTRONG JAMES M |
Parcel PIN#: |
1250-14-404-8000 |
|
| Owner Name 2: | 1/4 section #: |
1250 |
||
| Owner Name 3: | Parent Acct: |
|
||
| Billing Address: | 15620 SE 37TH PL | Tax District: |
|
|
| City, State, Zip | CHOCTAW, OK 73020-6046 | School System: |
Choctaw #4 |
|
|
Country: (If noted) |
Land Size: |
6.0300 Acres |
||
|
Land Value: 75,375 |
|
|||
|
Sect 13-T11N-R1W Qtr SE |
UNPLTD PT SEC 13 11N 1W
Block
000
Lot
000
|
|||
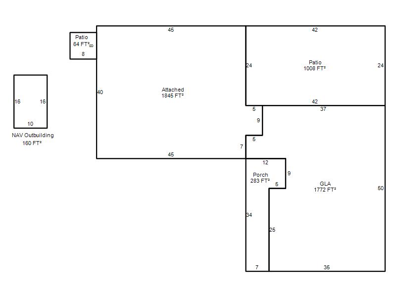
| Full Legal Description: UNPLTD PT SEC 13 11N 1W 000 000 PT OF SE4 SEC 13 11N 1W BEG 265.71FT E OF SW/C OF GOVT LOT 3 TH NELY 807.97FT SELY 110.72FT E70FT S658.48FT W600FT TO BEG CONT 6.030ACRS MORE OR LESS |
| Photo & Sketch (if available) | Comp Sales (ordered by relevancy) |
|
||||||||||||||||||
|
||||||||||||||||||||
| Value History (*The County Treasurer 405-713-1300 posts & collects actual tax amounts. Contact information HERE) | |||||||||||||
|---|---|---|---|---|---|---|---|---|---|---|---|---|---|
| Year | Market Value | Taxable Mkt Value | Gross Assessed | Exemption | Net Assessed | Millage | Est. Tax | Tax Savings | |||||
|
2026 |
394,000 |
219,475 |
24,142 |
1,000 |
23,142 |
132.37 |
$3,063 |
$2,674 |
|||||
|
2025 |
390,000 |
219,475 |
24,142 |
1,000 |
23,142 |
132.37 |
$3,063 |
$2,615 |
|||||
|
2024 |
402,500 |
219,475 |
24,142 |
1,000 |
23,142 |
131.28 |
$3,038 |
$2,774 |
|||||
|
2023 |
379,000 |
219,475 |
24,142 |
1,000 |
23,142 |
131.88 |
$3,052 |
$2,446 |
|||||
|
2022 |
332,500 |
219,475 |
24,142 |
1,000 |
23,142 |
130.63 |
$3,023 |
$1,755 |
|||||
| Property Account Status/Adjustments/Exemptions | ||
|---|---|---|
| Account # | Exemption Description | Amount |
|
R144048000 |
3% Cap Homestead |
0 |
|
R144048000 |
Freeze Senior Valuation |
0 |
|
R144048000 |
Homestead |
1,000 |
| Property Deed Transaction History (Recorded in the County Clerk's Office) | |||||||
|---|---|---|---|---|---|---|---|
| Date | Type | Book | Page | Price | Grantor | Grantee | |
|
12/20/2010 |
|
Deeds |
$220,000 |
FOERCH THOMAS E & DIANN L |
ARMSTRONG JAMES M |
||
|
11/27/1996 |
|
Historical |
$0 |
FOERCH THOMAS E & DIANN L |
FOERCH THOMAS E & DIANN L |
||
|
5/15/1996 |
|
Historical |
$23,500 |
KINARD TAEKO S |
FOERCH THOMAS E & DIANN L |
||
|
5/1/1981 |
|
Historical |
$0 |
|
KINARD TAEKO S |
||
| Last Mailed Notice of Value (N.O.V.) Information/History | ||||||||
|---|---|---|---|---|---|---|---|---|
| Year | Date | Market Value | Taxable Market Value | Gross Assessed | Exemption | Net Assessed | ||
|
2026 |
02/06/2026 |
394,000 |
219,475 |
24,142 |
1,000 |
23,142 |
||
|
2024 |
01/22/2024 |
402,500 |
219,475 |
24,142 |
1,000 |
23,142 |
||
|
2023 |
01/23/2023 |
379,000 |
219,475 |
24,142 |
1,000 |
23,142 |
||
|
2022 |
02/22/2022 |
332,500 |
219,475 |
24,142 |
1,000 |
23,142 |
||
|
2021 |
02/24/2021 |
290,000 |
219,475 |
24,142 |
1,000 |
23,142 |
||
| Property Building Permit History | ||||||
|---|---|---|---|---|---|---|
| Issued | Permit # | Provided by | Bldg # | Description | Est Construction Cost | Status |
|
6/19/1996 |
10238748 |
OKLAHOMA CITY |
1 |
Main Dwellin |
116,000 |
Inactive |
| Click button on building number to access detailed information: | ||||||
|---|---|---|---|---|---|---|
| Bldg # | Vacant/Improved Land | Bldg Description | Year Built | SqFt | # Stories | |
|
1 |
Improved |
Ranch 1 Story |
1996 |
1,772 |
1 Stories |
|