Larry Stein Oklahoma County Assessor (405) 713-1200 - Public Access System
Home Contact Us Guest Book Map Search New Search
Building Detail Results - Screen Produced   4/12/2026 3:53:41 AM 
 Account #:  R049484440 Bldg #1
Sketch

 Building #: 1
 Built As:  Triplex Multiple Story
 # of Stories:  2 Stories
 Square Feet:  3,400
 Year Built:  1936
 Remodel Year:  2024
 Building Name:   
 Alt Land Use Desc:  Platted
 Quality Desc:  Average
 Bldg Frame Description:  
 Foundation Desc:  Conventional
 Bldg Exterior:  Frame Masonry Veneer
 Roof Type:  Gable
 Roof Cover:   Composition Shingle
 Avg Floor Height:  8
 Percent Sprinkled:  0
 Bldg Interior:  Drywall
 Total Rooms:  2
 # of Units w/Bedrooms: # of units (1) with 1 Bedrooms
 # of Baths:  (3)-Full, (0)-3/4, (0)-half
 HVAC Type:  Central Air to Air
 # of Fire Places:  2
 Percent Heated:  100
 Physical Condition:  Average
 # of Res Units:  3
 # of Comm Units:  0
 Commercial Desc:   
 Occ Type:  0106
 Commercial Class:  TR
 MFG Home Length:  0
 MFG Home Width:  0
[1/2]

Photos

2023 

2015 

2012 

2007 

2004 

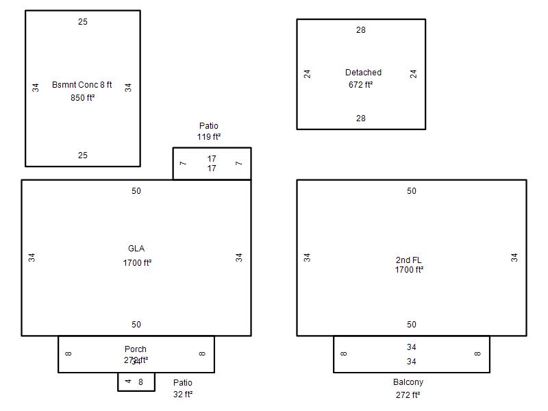
Garage, Porch, Basement, Storage, Utility etc.  (GLA=Gross Living Area    GBA=Gross Bldg Area)
Account # Feature Description Sqft/Area Number of Stories

R049484440

 GLA

 GLA

1,700 

1

R049484440

 GLA2

 2nd FL

1,700 

1

R049484440

 BsmtC8ft

 Bsmnt Conc 8 ft

850 

1

R049484440

 GarDetach

 Detached

672 

1

R049484440

 BalWd F

 Balcony

272 

1

R049484440

 PorWood R

 Porch

272 

1

R049484440

 PorOpenSl

 Patio

119 

1

R049484440

 PorOpenSl

 Patio

32 

1

Additional Details
Account #: Bldg # Description Qty # Of Units Description

R049484440

1

Allowance

1

Units

R049484440

1

Laundry Facility

1

Square Feet