Larry Stein Oklahoma County Assessor (405) 713-1200 - Public Access System
Home Contact Us Guest Book Map Search New Search
Building Detail Results - Screen Produced   4/12/2026 5:34:32 AM 
 Account #:  R049487400 Bldg #1
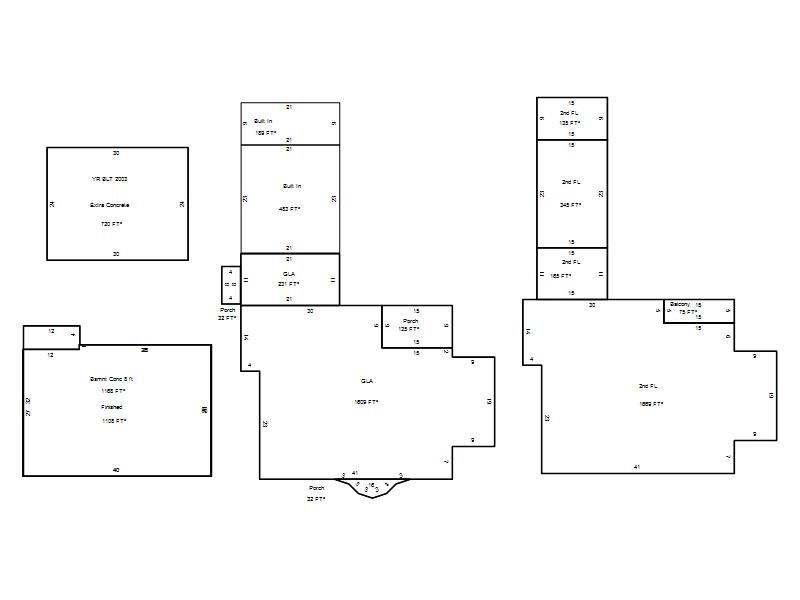
Sketch

 Building #: 1
 Built As:  2 Story
 # of Stories:  2 Stories
 Square Feet:  4,154
 Year Built:  1937
 Remodel Year:  2017
 Building Name:   
 Alt Land Use Desc:  Platted
 Quality Desc:  Very Good
 Bldg Frame Description:  
 Foundation Desc:  Conventional
 Bldg Exterior:  Frame Masonry Veneer
 Roof Type:  Gable
 Roof Cover:   Composition Shingle
 Avg Floor Height:  8
 Percent Sprinkled:  0
 Bldg Interior:  Plaster
 Total Rooms:  13
 # of Units w/Bedrooms: # of units (1) with 4 Bedrooms
 # of Baths:  (5)-Full, (0)-3/4, (0)-half
 HVAC Type:  Central Air to Air
 # of Fire Places:  2
 Percent Heated:  100
 Physical Condition:  Excellent
 # of Res Units:  1
 # of Comm Units:  0
 Commercial Desc:   
 Occ Type:  0100
 Commercial Class:  R
 MFG Home Length:  0
 MFG Home Width:  0

Photos

2023 

2019 

2003 

Garage, Porch, Basement, Storage, Utility etc.  (GLA=Gross Living Area    GBA=Gross Bldg Area)
Account # Feature Description Sqft/Area Number of Stories

R049487400

 GLA2

 2nd FL

1,669 

1

R049487400

 GLA

 GLA

1,609 

1

R049487400

 BsmtC8ft

 Bsmnt Conc 8 ft

1,168 

1

R049487400

 BsmtFin

 Finished

1,108 

1

R049487400

 GarBuiltIn

 Built In

483 

1

R049487400

 GLA2

 2nd FL

345 

1

R049487400

 GLA

 GLA

231 

1

R049487400

 GarBuiltIn

 Built In

189 

1

R049487400

 GLA2

 2nd FL

165 

1

R049487400

 GLA2

 2nd FL

135 

1

R049487400

 PorWood R

 Porch

135 

1

R049487400

 BalWd F

 Balcony

75 

1

R049487400

 PorWood R

 Porch

32 

1

Additional Details
Account #: Bldg # Description Qty # Of Units Description

R049487400

1

Allowance

1

Units

R049487400

1

Extra Concrete

1

720 

Square Feet

R049487400

1

Hot Tub

1

Units

R049487400

1

Laundry Facility

1

Square Feet

R049487400

1

Swimming Pool

1

560 

Square Feet