Larry Stein Oklahoma County Assessor (405) 713-1200 - Public Access System
Home Contact Us Guest Book Map Search New Search
Building Detail Results - Screen Produced   4/4/2026 4:25:47 AM 
 Account #:  R046601280 Bldg #1
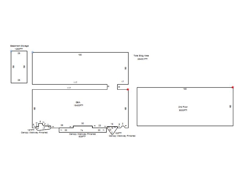
Sketch

 Building #: 1
 Built As:  Retail Store
 # of Stories:  2 Stories
 Square Feet:  25,400
 Year Built:  1926
 Remodel Year:  2016
 Building Name:  MULTIPLE TENANTS
 Alt Land Use Desc:  Platted Commercial
 Quality Desc:  Average
 Bldg Frame Description:  Masonry
 Foundation Desc:  Slab
 Bldg Exterior:  Masonry Face Brick
 Roof Type:  Flat
 Roof Cover:   Elastomeric
 Avg Floor Height:  12
 Percent Sprinkled:  0
 Bldg Interior:  
 Total Rooms:   
 # of Units w/Bedrooms: # of units ( ) with   Bedrooms
 # of Baths:  (0)-Full, (0)-3/4, (0)-half
 HVAC Type:  Package Unit
 # of Fire Places:  0
 Percent Heated:  100
 Physical Condition:  Very Good
 # of Res Units:  0
 # of Comm Units:  10
 Commercial Desc:   
 Occ Type:  0353
 Commercial Class:  C
 MFG Home Length:  0
 MFG Home Width:  0

Photos

2022 

2020 

2018 

2017 

2016 

2015 

2014 

2012 

2010 

2009 

2008 

2007 

2004 

Garage, Porch, Basement, Storage, Utility etc.  (GLA=Gross Living Area    GBA=Gross Bldg Area)
Account # Feature Description Sqft/Area Number of Stories

R046601280

 GBA

 GBA

16,400 

1

R046601280

 GBA2

 2nd Floor

9,000 

1

Additional Details
Account #: Bldg # Description Qty # Of Units Description

R046601280

1

Basement Storage

1

1,250 

Square Feet

R046601280

1

Canopy Walkway Finished

1

122 

Square Feet

R046601280

1

Canopy Walkway Finished

1

157 

Square Feet

R046601280

1

Canopy Walkway Finished

1

608 

Square Feet