Larry Stein Oklahoma County Assessor (405) 713-1200 - Public Access System
Home Contact Us Guest Book Map Search New Search
Building Detail Results - Screen Produced   4/8/2026 5:36:09 PM 
 Account #:  R038037590 Bldg #1
Sketch

 Building #: 1
 Built As:  Retail Store
 # of Stories:  1 Stories
 Square Feet:  8,616
 Year Built:  1948
 Remodel Year:   
 Building Name:  JOES PAWN BARGIN CENTER
 Alt Land Use Desc:  Platted Commercial
 Quality Desc:  Average
 Bldg Frame Description:  Masonry
 Foundation Desc:  Slab
 Bldg Exterior:  Frame Brick Veneer
 Roof Type:  Flat
 Roof Cover:   Elastomeric
 Avg Floor Height:  12
 Percent Sprinkled:  0
 Bldg Interior:  
 Total Rooms:   
 # of Units w/Bedrooms: # of units ( ) with   Bedrooms
 # of Baths:  (0)-Full, (0)-3/4, (0)-half
 HVAC Type:  Package Unit
 # of Fire Places:  0
 Percent Heated:  100
 Physical Condition:  Fair
 # of Res Units:  0
 # of Comm Units:  1
 Commercial Desc:   
 Occ Type:  0353
 Commercial Class:  C
 MFG Home Length:  0
 MFG Home Width:  0

Photos

2024 

2023 

2022 

2018 

2014 

2010 

2005 

2003 

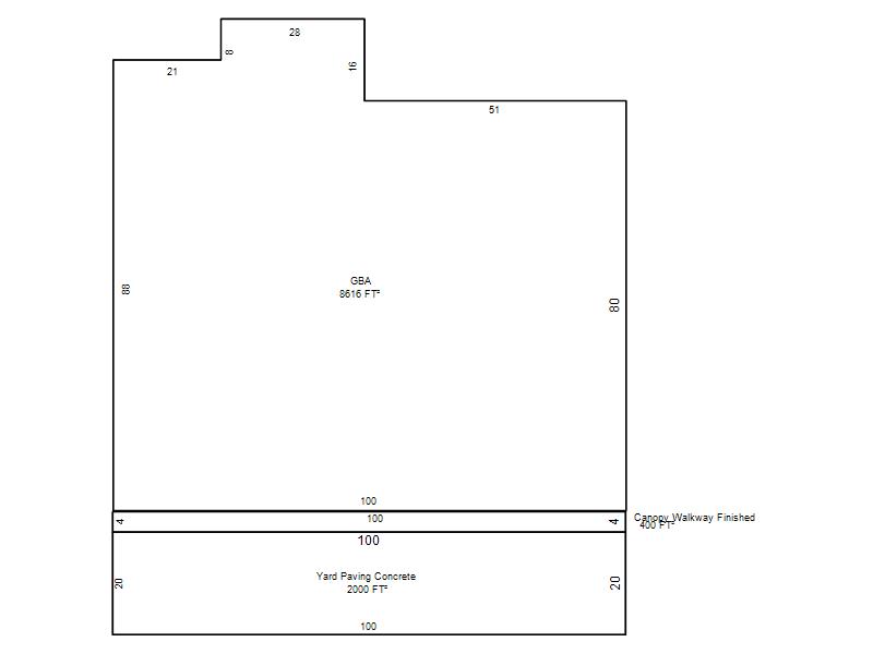
Garage, Porch, Basement, Storage, Utility etc.  (GLA=Gross Living Area    GBA=Gross Bldg Area)
Account # Feature Description Sqft/Area Number of Stories

R038037590

 GBA

 GBA

8,616 

1

Additional Details
Account #: Bldg # Description Qty # Of Units Description

R038037590

1

Canopy Walkway Finished

1

400 

Square Feet

R038037590

1

Yard Paving Concrete

1

2,000 

Square Feet