Larry Stein Oklahoma County Assessor (405) 713-1200 - Public Access System
Home Contact Us Guest Book Map Search New Search
Building Detail Results - Screen Produced   4/8/2026 5:36:10 PM 
 Account #:  R133383012 Bldg #1
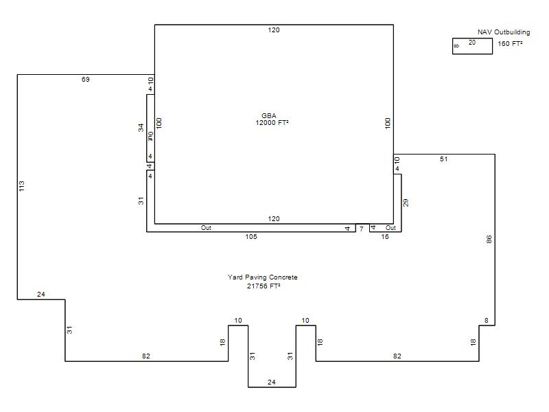
Sketch

 Building #: 1
 Built As:  Storage Warehouse
 # of Stories:  1 Stories
 Square Feet:  12,000
 Year Built:  2017
 Remodel Year:   
 Building Name:  BIG STAR TRANSPORT
 Alt Land Use Desc:  Unplatted Commercial
 Quality Desc:  Fair
 Bldg Frame Description:  Metal Frame
 Foundation Desc:  Slab
 Bldg Exterior:  Metal Siding
 Roof Type:  Gable
 Roof Cover:   Formed Seam Metal
 Avg Floor Height:  16
 Percent Sprinkled:  0
 Bldg Interior:  
 Total Rooms:   
 # of Units w/Bedrooms: # of units ( ) with   Bedrooms
 # of Baths:  (0)-Full, (0)-3/4, (0)-half
 HVAC Type:  Space Heater
 # of Fire Places:  0
 Percent Heated:  100
 Physical Condition:  Very Good
 # of Res Units:  0
 # of Comm Units:  1
 Commercial Desc:   
 Occ Type:  0406
 Commercial Class:  C
 MFG Home Length:  0
 MFG Home Width:  0

Photos

2021 

2021 

2020 

2019 

2017 

2017 

2017 

2016 

2009 

2008 

Garage, Porch, Basement, Storage, Utility etc.  (GLA=Gross Living Area    GBA=Gross Bldg Area)
Account # Feature Description Sqft/Area Number of Stories

R133383012

 GBA

 GBA

12,000 

1

Additional Details
Account #: Bldg # Description Qty # Of Units Description

R133383012

1

Dumpster Enclosure

1

Units

R133383012

1

NAV Outbuilding

1

160 

Square Feet

R133383012

1

Yard Paving Concrete

1

21,756 

Square Feet

R133383012

1

Yard Paving Gravel Unsketched

1

43,895 

Square Feet