Larry Stein Oklahoma County Assessor (405) 713-1200 - Public Access System
Home Contact Us Guest Book Map Search New Search
Building Detail Results - Screen Produced   4/15/2026 6:12:00 AM 
 Account #:  R062148720 Bldg #1
Sketch

 Building #: 1
 Built As:  Office Style Box C or D
 # of Stories:  3 Stories
 Square Feet:  24,114
 Year Built:  1910
 Remodel Year:  1965
 Building Name:  VICTORIA BUILDING
 Alt Land Use Desc:  Platted Commercial
 Quality Desc:  Average Plus
 Bldg Frame Description:  Wood Frame
 Foundation Desc:  Slab
 Bldg Exterior:  Frame Stucco
 Roof Type:  Flat
 Roof Cover:   Built Up Rock
 Avg Floor Height:  10
 Percent Sprinkled:  0
 Bldg Interior:  
 Total Rooms:   
 # of Units w/Bedrooms: # of units ( ) with   Bedrooms
 # of Baths:  (0)-Full, (0)-3/4, (0)-half
 HVAC Type:  Package Unit
 # of Fire Places:  0
 Percent Heated:  100
 Physical Condition:  Average
 # of Res Units:  0
 # of Comm Units:  9
 Commercial Desc:   
 Occ Type:  3447
 Commercial Class:  C
 MFG Home Length:  0
 MFG Home Width:  0

Photos

2023 

2019 

2015 

2011 

2010 

2008 

2007 

2006 

2002 

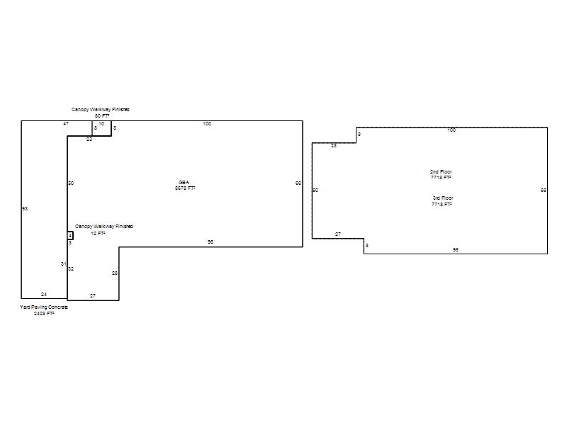
Garage, Porch, Basement, Storage, Utility etc.  (GLA=Gross Living Area    GBA=Gross Bldg Area)
Account # Feature Description Sqft/Area Number of Stories

R062148720

 GBA

 GBA

8,678 

1

R062148720

 GBA2

 2nd Floor

7,718 

1

R062148720

 GBA3

 3rd Floor

7,718 

1

Additional Details
Account #: Bldg # Description Qty # Of Units Description

R062148720

1

Canopy Walkway Finished

1

12 

Square Feet

R062148720

1

Canopy Walkway Finished

1

80 

Square Feet

R062148720

1

Yard Paving Concrete

1

2,428 

Square Feet