Larry Stein Oklahoma County Assessor (405) 713-1200 - Public Access System
Home Contact Us Guest Book Map Search New Search
Building Detail Results - Screen Produced   4/12/2026 10:28:57 PM 
 Account #:  R062226960 Bldg #1
Sketch

 Building #: 1
 Built As:  Duplex Two Story
 # of Stories:  2 Stories
 Square Feet:  2,402
 Year Built:  1927
 Remodel Year:  1994
 Building Name:   
 Alt Land Use Desc:  Platted
 Quality Desc:  Average
 Bldg Frame Description:  
 Foundation Desc:  Conventional
 Bldg Exterior:  Frame Masonry Veneer
 Roof Type:  Hip
 Roof Cover:   Composition Shingle
 Avg Floor Height:  8
 Percent Sprinkled:  0
 Bldg Interior:  Drywall
 Total Rooms:  4
 # of Units w/Bedrooms: # of units (1) with 2 Bedrooms
 # of Baths:  (2)-Full, (0)-3/4, (0)-half
 HVAC Type:  Floor Wall Furnace
 # of Fire Places:  0
 Percent Heated:  100
 Physical Condition:  Average
 # of Res Units:  2
 # of Comm Units:  0
 Commercial Desc:   
 Occ Type:  0102
 Commercial Class:  DP
 MFG Home Length:  0
 MFG Home Width:  0

Photos

2024 

2020 

2016 

2012 

2008 

2004 

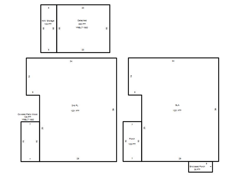
Garage, Porch, Basement, Storage, Utility etc.  (GLA=Gross Living Area    GBA=Gross Bldg Area)
Account # Feature Description Sqft/Area Number of Stories

R062226960

 GLA

 GLA

1,201 

1

R062226960

 GLA2

 2nd FL

1,201 

1

R062226960

 GarDetach

 Detached

360 

1

R062226960

 PorWood R

 Porch

105 

1

R062226960

 PorEncSld

 Enclosed Porch

36 

1

Additional Details
Account #: Bldg # Description Qty # Of Units Description

R062226960

1

Allowance

1

Units

R062226960

1

Covered Patio Wood

1

105 

Square Feet

R062226960

1

Laundry Facility

1

Square Feet

R062226960

1

NAV Storage

1

108 

Square Feet