Larry Stein Oklahoma County Assessor (405) 713-1200 - Public Access System
Home Contact Us Guest Book Map Search New Search
Building Detail Results - Screen Produced   4/14/2026 9:05:52 AM 
 Account #:  R064067200 Bldg #1
Sketch

 Building #: 1
 Built As:  2 Story
 # of Stories:  2 Stories
 Square Feet:  2,268
 Year Built:  1905
 Remodel Year:  2023
 Building Name:   
 Alt Land Use Desc:  Platted
 Quality Desc:  Average
 Bldg Frame Description:  
 Foundation Desc:  Conventional
 Bldg Exterior:  Frame Siding
 Roof Type:  Hip/Gable
 Roof Cover:   Composition Shingle
 Avg Floor Height:  8
 Percent Sprinkled:  0
 Bldg Interior:  Plaster
 Total Rooms:  8
 # of Units w/Bedrooms: # of units (1) with 3 Bedrooms
 # of Baths:  (1)-Full, (0)-3/4, (1)-half
 HVAC Type:  Floor Wall Furnace
 # of Fire Places:  1
 Percent Heated:  100
 Physical Condition:  Average
 # of Res Units:  1
 # of Comm Units:  0
 Commercial Desc:   
 Occ Type:  0100
 Commercial Class:  R
 MFG Home Length:  0
 MFG Home Width:  0

Photos

2024 

2023 

2022 

2022 

2022 

2020 

2016 

2012 

2008 

2004 

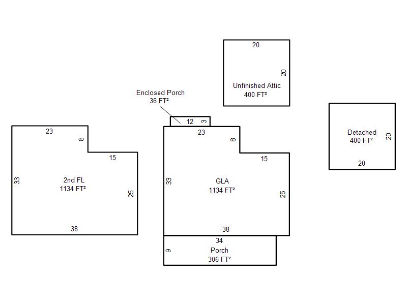
Garage, Porch, Basement, Storage, Utility etc.  (GLA=Gross Living Area    GBA=Gross Bldg Area)
Account # Feature Description Sqft/Area Number of Stories

R064067200

 GLA

 GLA

1,134 

1

R064067200

 GLA2

 2nd FL

1,134 

1

R064067200

 GarDetach

 Detached

400 

1

R064067200

 UA

 Unfinished Attic

400 

1

R064067200

 PorWood R

 Porch

306 

1

R064067200

 PorEncSld

 Enclosed Porch

36 

1

Additional Details
Account #: Bldg # Description Qty # Of Units Description

R064067200

1

Allowance

1

Units

R064067200

1

Laundry Facility

1

Square Feet