Larry Stein Oklahoma County Assessor (405) 713-1200 - Public Access System
Home Contact Us Guest Book Map Search New Search
Building Detail Results - Screen Produced   4/15/2026 10:23:58 AM 
 Account #:  R064144670 Bldg #1
Sketch

 Building #: 1
 Built As:  Duplex One Story
 # of Stories:  1 Stories
 Square Feet:  1,940
 Year Built:  1928
 Remodel Year:  1969
 Building Name:   
 Alt Land Use Desc:  Platted
 Quality Desc:  Fair
 Bldg Frame Description:  
 Foundation Desc:  Conventional
 Bldg Exterior:  Frame Masonry Veneer
 Roof Type:  Hip/Gable
 Roof Cover:   Composition Shingle
 Avg Floor Height:  8
 Percent Sprinkled:  0
 Bldg Interior:  Drywall
 Total Rooms:  3
 # of Units w/Bedrooms: # of units (1) with 1 Bedrooms
 # of Baths:  (2)-Full, (0)-3/4, (0)-half
 HVAC Type:  Floor Wall Furnace
 # of Fire Places:  0
 Percent Heated:  100
 Physical Condition:  Average
 # of Res Units:  2
 # of Comm Units:  0
 Commercial Desc:   
 Occ Type:  0102
 Commercial Class:  DP
 MFG Home Length:  0
 MFG Home Width:  0

Photos

2024 

2020 

2016 

2012 

2008 

2004 

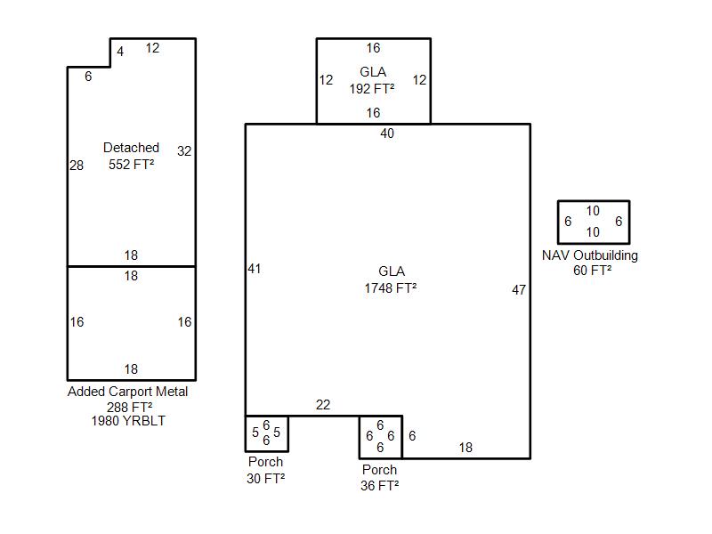
Garage, Porch, Basement, Storage, Utility etc.  (GLA=Gross Living Area    GBA=Gross Bldg Area)
Account # Feature Description Sqft/Area Number of Stories

R064144670

 GLA

 GLA

1,748 

1

R064144670

 GarDetach

 Detached

552 

1

R064144670

 GLA

 GLA

192 

1

R064144670

 PorWood R

 Porch

36 

1

R064144670

 PorWood R

 Porch

30 

1

Additional Details
Account #: Bldg # Description Qty # Of Units Description

R064144670

1

Added Carport Metal

1

288 

Square Feet

R064144670

1

Allowance

1

Units

R064144670

1

Laundry Facility

1

Square Feet

R064144670

1

NAV Outbuilding

1

60 

Square Feet